格美华庭,顶级豪宅设计、精心打造,是高净值人士自住投资的首选
格美华庭是一个全新的豪华永久产权的住宅发展项目,它位于新加坡其中最令人向往并最具盛名之一的第十邮区格兰芝路 (Grange Road) ,这里属于传统的高档住宅区,富豪集中的地方,毗邻新加坡著名的乌节路商圈(OrchardRoad) ,2016年底交房,占地面积约15,718平方米/170,000平方英尺,有2栋对称的2层高楼组成,共有174个豪华公寓单位,同时成为了与该地区大使馆和优质洋房 (Good Class Bungalows) 相媲邻的最新地标性建筑项目。

项目由国际上享有盛誉的建筑设计NBBJ公司操刀设计,2016年11月30日,在香港君悦酒店举行的 MIPIM Asia 2016 颁奖典礼上,城市发展集团的发展项目格美华庭 (GramercyPark) 斩获了"最佳住宅发展项目 (金奖) "。MIPIMAsia 奖项为房地产行业设立了优异的标杆,并旨在肯定亚太地区最优秀发展项目。经过由行内专家组成的权威评审团的筛选,和年度房地产领袖高峰会 MIPIMAsia 的代表们的投票,优胜者将被授予金、银、铜三种奖项。

NBBJ – 世界顶尖设计公司杰作
设计理念:由领先建筑设计商NBBJ设计的,采用异曲同工的雕塑形状打造,凸显现代化流线型外观的同时也将内部住户的空间视野无限放大,再将地面的绿化垂直拓展至高层,配备铝合金框架的落地窗及浅色玻璃,构建绿色生活的同时将光污染减至最小。

格美华庭在设计时就考虑可持续发展和能源高效利用,也因此荣获BCA颁发的Green MarkPlatinum Award。
被动式降温结构
双面哑光玻璃降低能量的内外交互
防太阳光玻璃减少阳光的穿透力
外侧砖石结构采用降温涂材
能源高效利用
全公寓提供高能效转换空调系统
公共区域安装运动传感器
高能效采光设备覆盖全楼
高能效变频电梯,自带睡眠模式
环境保护
采用新加坡注册的
对环境可持续发展产品,
涂材均采用有机材料,
低甲醛排放减少室内空气污染
其他绿色创新
电动汽车充电桩
大面积绿色和景观覆盖
风能水搜集及排放系统
屋顶雨水排放系统

城市发展集团/CDL首席执行官凯利先生(Mr Grant Kelley) 表示,"多年来城市发展集团致力发展多个具有代表性的项目,重塑了人们对摩天大楼的认知,更为当代都市生活立了新的指标。我们十分荣幸,格美华庭被肯定为最杰出的住宅发展项目。除了它令人羡慕的核心地理位置外,格美华庭独特的外型设计亦非常独特出众。在土地异常珍贵的新加坡,它在黄金地段第十邮区的格兰芝路占地面积约15,718平方米,仅仅建设了174个住宅单元,让每一个住户均享受到开阔的使用空间,并保障了专有的隐私,并且拥有永久产权,弥足珍贵。"
众所周知,无论买房最重要的一套原则,就是“地点,地点还是地点”,重要时期说三遍,格美华庭所处的位置就属于新加坡最核心的地段!还是永久地契,这在寸土寸金的新加坡难得珍贵,现在政府出售土地只售99年住宅地契.
格美华庭两座曲形塔的现代外观,与格兰芝路地段的尊贵气质完美融合。除了美观之外,建筑外表的高性能、低辐射双层玻璃视窗,和含有遮阳熔料的玻璃窗,大幅度降低进入室内的热量,并节约室内制冷的能源。
建筑的外表结合了细腻的流线型极简主义,和镶嵌“绿宝石”的奢华度假村风格相宜得章.格美华庭的地貌有高挺的植物和环绕的野姜花。在这个宽敞的物业中心有一块精心修剪的高档草坪,当夜幕降临时,它被照亮地美丽动人。两座大楼呈现着对称的结构,楼的旁边就是一个50米豪华泳池。眺望远方的美景,茂盛的林荫健步道隐约可见。


游泳池边上的大草坪,可以举办大型生日派对,活动等

每一个住宅单元均采用最时尚前卫、大方得体的装饰 – 客厅采用大理石,卧室地板则采用美国黑胡桃木,尊贵的主人房的浴室高档优雅的卫浴品牌,如Axor by Hansgrohe和Geberit.
对于热爱烹饪,对饮食讲究的您,配套完善、配有顶级厨房Gaggenau 的厨房一定会让您满意。个别单元内厨房的吧台可以安装爱酒之人必备的葡萄酒柜,增加日常生活的乐趣。

靠近新加坡著名的乌节路购物区,像商场义安城,Ion@Orchard,ISETAN等
喜欢购物的朋友必去之地,什么名牌包包,名牌手表,香水,珠宝,服饰等,应有尽有!

项目周围是东陵路一带的著名的大使馆区,众所周知,大使馆都位于每个国家首都的核心区域,有中国大使馆,美国大使馆,澳洲大使馆,英国大使馆,新加坡外交部等,如果有需要去大使馆办事的话,可谓相当方便!

室内设计图片一览:
宽敞明亮的大客厅,绝对配得上“豪华”两个字!

大主人房

带浴缸的卫生间

现代化厨房

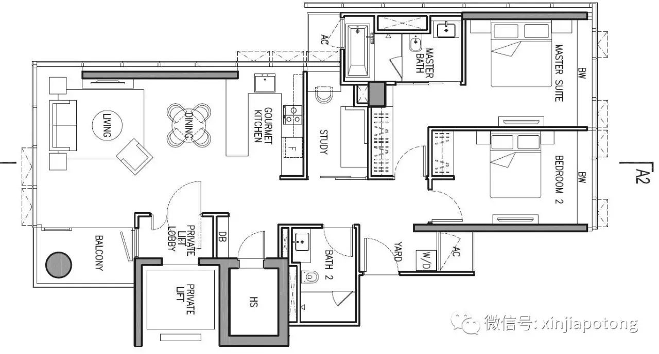
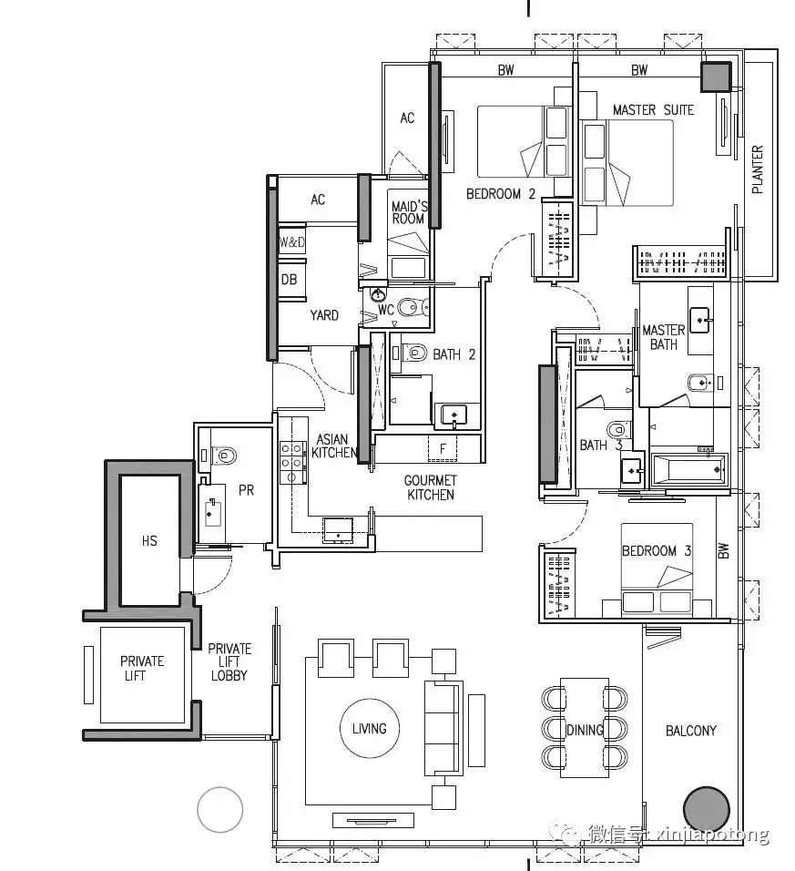
项目有2卧室+书房单位,3卧室。4卧室单位和如同贵族般的5卧室顶层跃层单位供您选择,每个单位私人电梯直接入户,以大面积户型为主.
2卧室+书房,面积110平方米/1184平方英尺

三卧室户型 ,面积175- 205平方米(不同种户型),私人电梯直接入户,厨房分干湿分区,户型方正,带保姆房和储藏室.

四卧室户型图,面积 238-295平方米(不同户型),折扣后最低价格$682万新币起,只需2596每平方英尺起,超有诱惑力的顶级豪宅单价!

价格介绍:
二卧室+书房房型:套内面积110平方米(1184平方英尺)至120平方米(1292平方英尺),整套售价350万新币起
三卧室户型:套内面积175平方米(1884平方英尺)至205平方米(2207平方英尺),整套售价491万新币起
四卧室户型:套内面积238平方米(2562平方英尺)至291平方米(3132平方英尺)整套售价682万新币起,只需2596每平方英尺
项目总结:
格美华庭,是笔者最喜欢的豪宅项目之一,开发商聘用国际知名建筑设计公司,精心设计,用心打造,绝对是高净资产人士投资和自住的首选!超有诱惑力的顶级豪宅单价,有兴趣的朋友请加我微信,我会给您做更加详细市场分析和项目相关介绍!
如果您喜欢这边文章,请分享在你的朋友圈或转发您需要的朋友,谢谢!
微信号:297264931
作者介绍 吴彪(Jack),高级营销董事,常获得公司颁发奖项,拥有丰富的房产经纪行业经验,长期定居新加坡多达15年。不跟买家收取中介费,专车接送看房,公司代理全岛各地项目,已成功服务过企业家,商人,新移民等。一个电话过来就了解全岛各地段的项目,总有一款适合您,协助您办理银行贷款(外国人可贷款),房屋推荐,律师咨询等,值得客户信赖的房屋经纪人。
总以专业的眼光推荐适合客户需求的房屋项目,始终客户优先.
欢迎需要买房或者卖房的朋友添加我的微信号(扫描以下二维码)


评论