高档公寓:完美的别墅居住体验+完善的公寓配套设施,只为最有生活品位的您
新加坡根据地理位置将全岛划分为28个邮区,作为传统私宅黄金地带的第10邮区——武吉知马、花拉路、荷兰路、东陵路、乌节路一带,现在我要介绍的LeedonResidence(丽墩苑)就坐落于新加坡黄金地段第10邮区,占地5公顷/48525平方米,却只规划了381套单位,2015年建成的大型的永久地契项目,步行距离到花拉路地铁站(黄色地铁线).
这个豪华公寓项目简直就是一款低调奢华大气的花园洋房式“有地”住宅,而公寓独有的便利设施及奢华的服务,使得LeedonResidence(丽墩苑)成为了很多住在有地住宅的富豪置业的首选,周围就是新加坡最顶级的优质洋房区(Good Class Bungalow),风水绝对是杠杠的好,难怪他在2015、2016连续两年都成为新加坡最畅销的豪宅项目之一。

第10邮区向来是高档私宅买家青睐的地区,也可以称作为名副其实的明星地段——很多名人,比如功夫巨星李连杰,新加坡国宝级歌手孙燕姿,还有全球知名的投资大师已经移民新加坡的罗杰斯、房地产大亨,知名企业家和艺人等都选择居住于这一带。

现在是进入新加坡豪宅市场好时机
据莱坊财富报告调查显示,新加坡高档房产是亚洲高净资产成功人士的首要选择,调查对象是900个来自世界各地投资银行的银行家/Banker和财务顾问,代理10000个高净资产客户掌管资产高达2万亿美元的资产.新加坡大富豪兼大华银行创办人黄祖耀最近买入凯德集团旗下豪宅项目TheNassim45个单位, 黄祖耀是精明的投资家,他选择在这个时候出手,对市场肯定有指标意义,连银行家都在买入,可见现在到了进入新加坡豪宅市场好时机了.
武吉知马俗称“新加坡富人区”
一直以来都是新加坡名人与富豪喜欢居住的地区,因为这里不仅环境清幽,靠近武吉知马山,周围以有地住宅/洋房为主,人口密度低,距离乌节路黄金购物地带和新加坡中央商业区CBD也只有不到10分钟车程。
武吉知马住宅区也是新加坡名校聚集地
如南洋女子中学、南洋小学、莱佛士女子小学、新加坡女子学校、美以美女校、华侨中学、国家初级学院,新加坡国立大学以及国际学校等,海外华人和我们中国人一样,都很重视子女教育,所以武吉知马住宅区成为新加坡住宅热门地带就不言而喻了,是新加坡人心目中最崇尚的高雅生活地之一.

来聊聊该项目设计师这哥们,曾仕乾/ChanSoo Khian
获得华盛顿大学的艺术学士学位和耶鲁大学建筑学硕士学位
参与新加坡很多高档住宅项目设计
新加坡最顶级豪宅The Marq,Twentyone Augullia Park等
曾在新加坡国立大学、巴黎大学、台北淡水大学等大学任教
师从于密斯、安藤、路易斯· 康等建筑大师
1995年在新加坡创办了SCDA建筑事务所
设计领域涵盖建筑、室内装潢和园林景观等
以平静的设计演绎现代建筑美学
赢得建筑设计界多项国际大奖

建筑外立面的线条感
时尚、简练、当代
以平静的设计传达极致的奢华



把室内景观与室外景观交互融合
便是其中一个重要方式
由此设计了超大露台
为生活提供了极为惬意的情调
家与自然也有了更为直接的交互空间
满足主人对自然返璞的追求

介绍一下整个项目户型,豪宅项目主要是大户型买家,以大户型为准
2房户型
97平方米
3房户型
194-198平方米
3房+书房
194平方米
4房
231~248平方米
5房
437平方米
3+书房带花园
352-376平方米
4房带花园
316-491平方米
5房带花园
610-748平方米
顶层阁楼/复式楼
529-717平方米
公寓设施:项目总共381个大户型单位,配置多达600个停车位,有很大机会申请到第二个停车位哦,配套公寓设施包括标准奥林匹克50米游泳池,儿童游泳池,倒影池,3个大型会所,健身房,儿童娱乐场所,休闲区花园,长达200米林荫散步走道,网球场,按摩浴缸,温泉,健身角落,让您享受六星级酒店的公寓设施.


只剩下最后28套,如果想买大面积户型的朋友,这个高档项目绝对值得您看,绝对不可以错过!
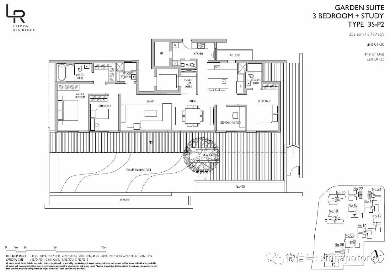
三房自带花园户型图 352平方米/ 3789平方英尺,还有最后2套,价格从648万新币起

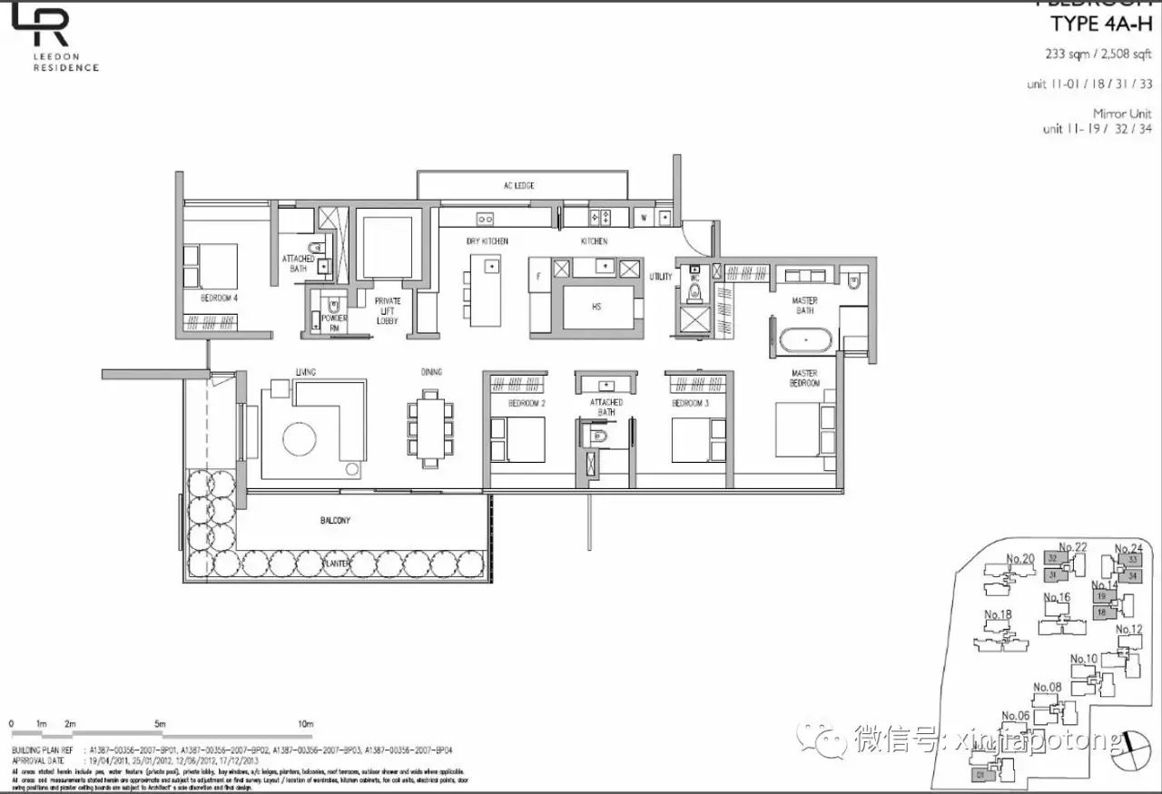
四房户型图 233平方米/ 2508平方英尺 个人见过最好四房户型,每个房间都有自己的卫生间,带超大的主人房.最后一套四房,最低价格新币603.2万

四房带花园的户型图,只剩最后五套,380平方米/4090平方英尺,价格从770万新币起

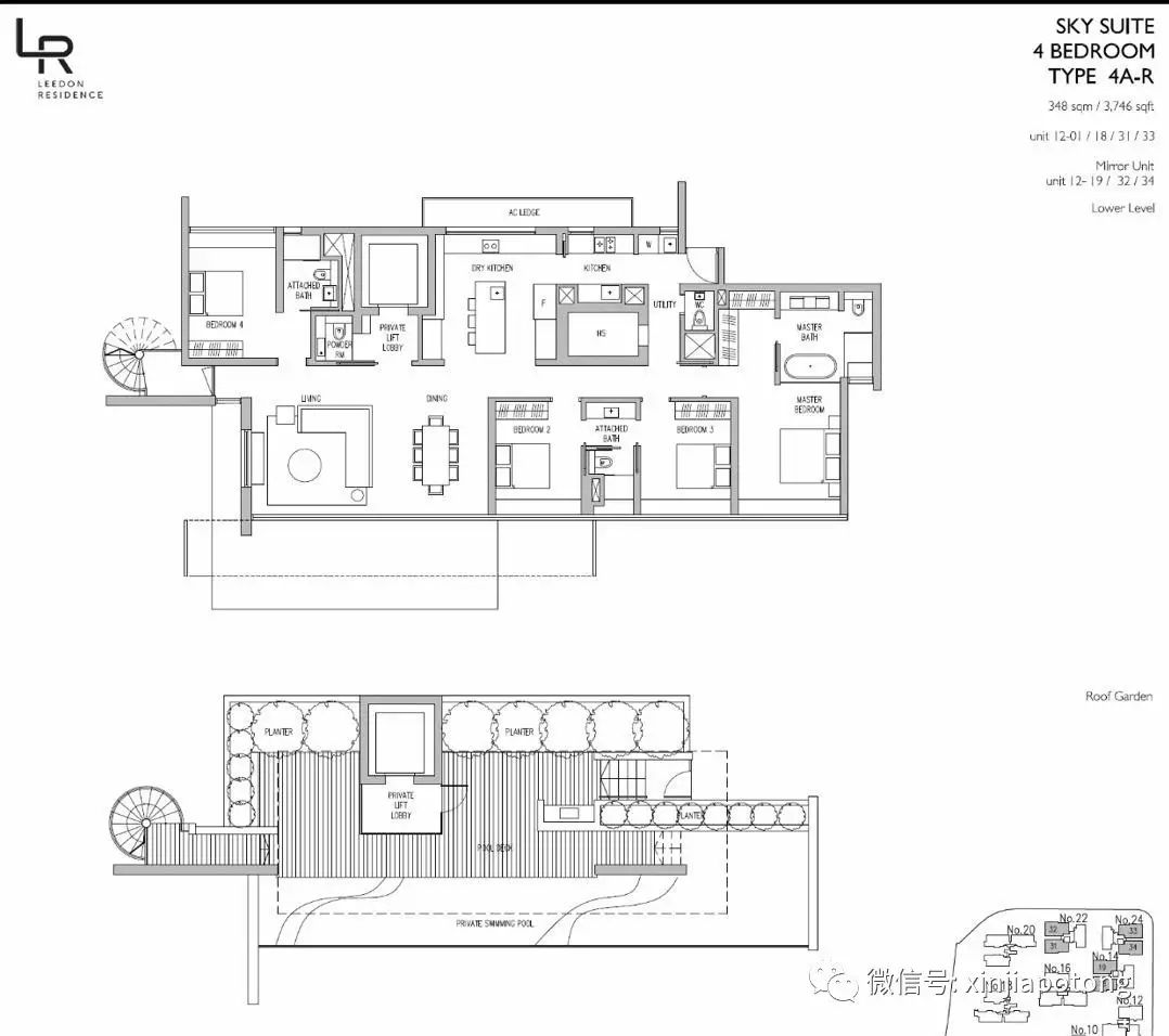
四房顶层阁楼户型图,348平方米/3746平方英尺,只剩最后4套,价格新币685万起

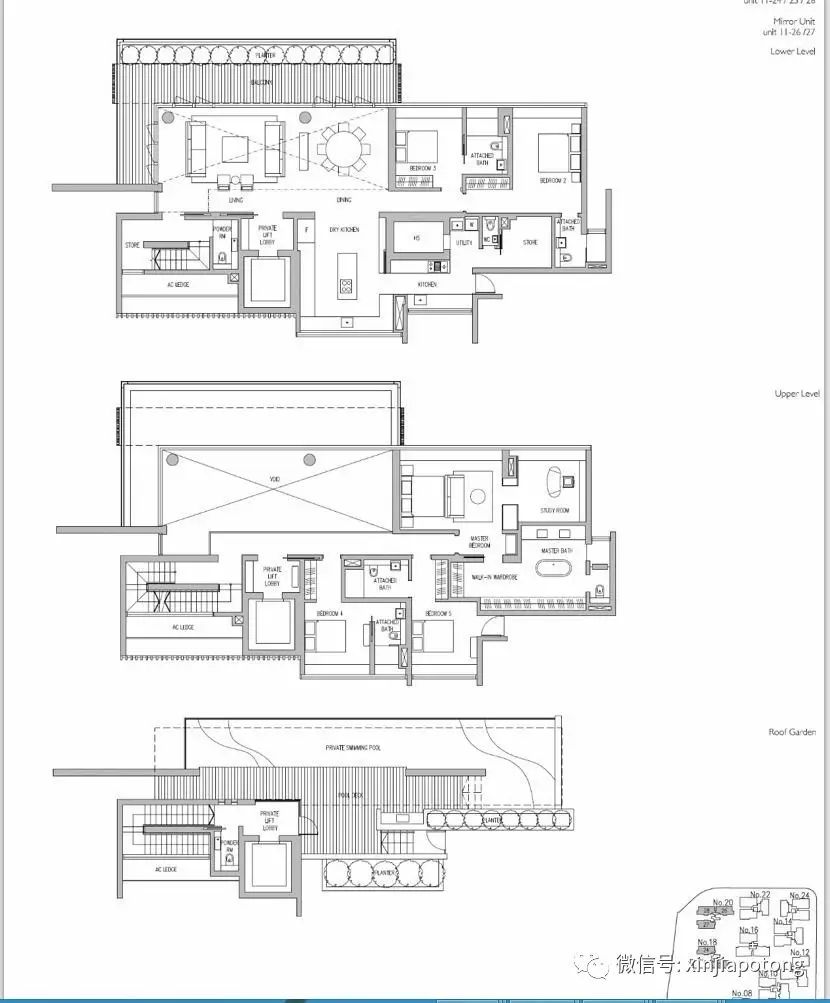
五房户型图 247平方米/ 2659平方英尺 客厅高达6米超高挑高空间
窗外美景随阳光映入眼帘
个人见过最好五房户型,带私人电梯去楼上,主人房自带一个书房,可以当书房或者家里办公室使用。

五房顶层阁楼户型图,面积从5694-7718平方英尺,还剩最后9套阁楼户型.

由于户型种类太多,只发常见的户型,其他户型,等看房时我会跟您详细介绍.
漂亮样板房照片,看起来真养眼啊
设计师给每个单位安排足够的空间,保证高档住宅应该有居住舒适性

四房和五房单位客厅特别挑高设计,高达6米的垂直空间,高端大气上档次范
大玻璃落地窗,家里直接可看蓝天白云!


客厅是这样的,就是那么酷!那么炫!

厨房分为干湿两区,既适合中式烹饪,又适合西式烘焙,足够3人同时大展厨艺

卫生间如下图,配大型浴缸,全选用高端品质材料,呈现总统套房范儿

综合点评:总体而言,新加坡作为亚洲金融城市,由于政府希望有个稳定的房地产市场,不断推出的房产降温措施,如额外印花税,QC规定有外国股东的发展商需5年内卖掉全部单位,否则会被罚款.新加坡豪宅价格却受到政府政策影响,豪宅项目发展商削价来促进销售.新加坡豪宅市场价格相比其他国际大都市香港伦敦纽约等城市低,新闻报道香港房价创历史新高,相比起来,新加坡的豪宅市场价格亲民很多,大概新币20000-35000/平方米,新加坡豪宅市场属于价值洼地,其实际价值是被严重低估的,所以现在是进场新加坡豪宅市场的好时机。
如果您喜欢这边文章,请分享在你的朋友圈或转发您需要的朋友,谢谢!
预约看房或者了解更多房子信息,请加微信
微信号:zhangqiong046456
作者介绍 张琼(Linda),新加坡最大房产经纪公司Huttons市场部董事,公司代理全岛各地项目,拥有丰富的房产行业经验,全心全意为客户考虑,以客户利益为出发点,诚信待人作为做人做事保准。不跟买家收取中介费,专车接送看房,公司代理全岛各地项目,已成功服务过企业家,商人,新移民等。一个电话过来就了解全岛各地段的项目,总有一款适合您!
协助您办理银行贷款(外国人可贷款),房屋推荐,律师咨询等,值得客户信赖的房屋经纪人。
总以专业的眼光推荐适合客户需求的房屋项目,始终客户优先.
欢迎需要买房或者卖房的朋友添加我的微信号(扫描以下二维码)

评论