西海岸公寓,近裕廊商业区,只剩最后数量不多四房户型,价格只需127.8万起

项目取名为河景园,顾名思义,项目临近河边,在可以享受河景同时,部分高楼单位可以享受海景,有2栋36层单位组成,全公寓设施,多达59项公寓设施,总共有752户单位。
公寓看点之一 紧邻政府大力发展裕廊商业区,第二个中央商业区,升值潜力大
靠近新加坡第二个中央商业区/CBD,裕廊东商业区,政府致力于打造成西部的“滨海湾”,占地面积360公顷的裕廊湖区,集中办公室,商场,医院,酒店一体的大型商业区,等建设全部完成,有超过500,000平方米的办公室,250,000平方米商铺包含零售,餐馆,娱乐设施等,2800个酒店房间等,生活购物超级方便.

新加坡政府致力打造独一无二的裕廊湖畔休闲中心,220公顷的土地面积和70公顷的水域面积重新开发进行中,裕廊湖花园将全面重新设计,崭新科幻的科学馆依湖而建,有湖畔度假村,湖畔娱乐中心,湖畔高尔夫球场等,还有小型商场,酒店,娱乐设施等.
裕廊湖花园第一阶段预计2018年完工,等建成开放公众之后,将会成为继新加坡植物园和滨海湾花园之后的第三个“国家级花园”
未来的裕廊湖科学馆是长成这样子的,带孩子游玩的好去处,培养小孩对科学的兴趣

裕廊湖畔的村庄,类似我们中国特色的“农家乐”,包括购物,餐饮,娱乐,湖畔酒店,绝对休闲娱乐好去处.

未来的裕廊湖公园,喜欢休闲和跑步朋友的好去处

公寓看点之二 将来裕廊区域地铁线开通,交通更加便利
为满足人口不断增加在交通方面需求,裕廊地区会兴建地铁线,请参考下图中虚线区域,裕廊区域线/JurongRegion Line预计2025年完工和将来的跨岛地铁线/CrossIsland Line预计2030年完工,都会经过该公寓所在区。裕廊区域线和跨岛地铁线在西海岸地铁站交汇,预计裕廊区域线上裕廊东和西海岸之间有一个地铁站会落在我们公寓河景苑附近,通常我建议买家就要买未来有新地铁开通区域,地铁开通后自然会带动周边房产增值,靠近将来开通的地铁站是房间的另外一个增长点。

公寓看点之三 新隆高铁终点站就在公寓附近
新隆高铁将于2026年通车,终点站就设在目前的Jurong Golf Course,距离公寓约2公里。新加坡到吉隆坡的高铁开通后,只需90分钟就可以往返两个城市,这将带动更多的商机,经济往来,自然就会带动就业机会,所以等新隆高铁开通后预计将进一步提高该区域的房产投资潜力。

公寓看点之四 去商场购物方便,靠近裕廊东商业区和成熟的金文泰区
如果您想去商场逛逛,有Clementi Mall/金文泰广场,裕廊东商场还有IMM,JCube,Big Box,JEM,West Gate,都是大型购物商场,经常有促销活动哦,其中BigBox是买家具好去处,物美价廉,可以抽时间去逛逛哦

公寓看点之五 名校南华小学在一公里之内,真正的学区房哦
金文泰在属于新加坡属于教育重镇,在国际上享有盛誉的新加坡国立大学/NUS就在这里,名校南华小学在一公里以内,真正学区房,还有培同小学,金文泰小学,南华中学,国大中学/NUSHigh School,还有新加坡理工学院,义安理工学院。

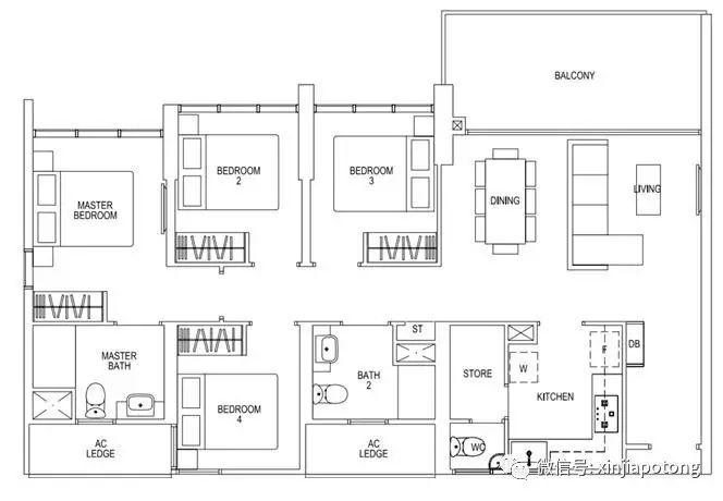
项目由新加坡著名建筑设计ADDP公司参与设计,提供一房到四房各种户型,参考样本户型图,毫不浪费的空间设计是项目的一大亮点,讲究实用性为主,现在只剩4房单位.
四房主要有两种户型,107平方米和110平方米的户型,四房最低价格127.8万新币起


公寓配套设施和全景图大放送,一饱眼福!





样板房



如果您喜欢这边文章,请分享在你的朋友圈或转发您需要的朋友,谢谢!
微信号:297264931
作者介绍 吴彪(Jack),高级营销董事,常获得公司颁发奖项,拥有丰富的房产经纪行业经验,长期定居新加坡多达13年。不跟买家收取中介费,专车接送看房,公司代理全岛各地项目,已成功服务过企业家,商人,新移民等。一个电话过来就了解全岛各地段的项目,总有一款适合您,协助您办理银行贷款(外国人可贷款),房屋推荐,律师咨询等,值得客户信赖的房屋经纪人。
总以专业的眼光推荐适合客户需求的房屋项目,始终客户优先.
欢迎需要买房或者卖房的朋友添加我的微信号(扫描以下二维码)


评论