东部公寓近在地铁口,投资自住首选您不能错过。

一通电话或微信的距离
数十个楼盘数千款房产任您挑,总有一款适合您,投资新加坡房产,首付最低仅$30万新币起。
豪佳苑是由新加坡驰名开发商CEL承建。不仅秉承了传统公寓的优点:丰富的小区设施、时尚现代的设计、高品质的户内外用材等,还引入了智能家居的概念,让您随心所欲监控管理家中的一切。真正意义上实现安全、方便、轻松的现代化生活。还值得一提的是,豪佳苑紧挨着丹娜美拉地铁站,10分钟即可抵达樟宜机场,说走就走的出国旅行变得更加轻松容易。距离CBD市中心也仅有35分钟地铁距离,日常通勤也不用长途跋涉。豪佳苑可谓是集各种优点于一身,自开盘以来就吸引了相当多的关注,两个月内所有一卧室单位就已经全部售罄!

楼盘基本信息


楼盘设计图

楼盘九大卖点
01 引入智能家居概念
可以用带夜视、运动探测和云存储功能的监控设备实时查看家里的幼儿及宠物,通过iPlus手机APP预约洗衣和家庭清扫或是宠物美容等服务。每个住户单位都嵌入了耶鲁生物学数字锁系列(Yale Biometric Digital Lockset),像开门这样简单的操作都将使用您的生物数据(比如指纹、虹膜等),以保障您的家庭安全。并且您也可以自己添加新的智能设备而无需重新整改电子线路,既简单又方便。


看到此处,如果您有些担心您宝贵的信息安全,我们将告诉您,您的生物信息或用户数据都将被加密存储,就如同iPhone的指纹一样安全。让您在享受科技带来的方便生活时,也无需担心安全问题。
02 小区自带托儿所和90多个生活设施
满足高品质居住需求,也让有小孩的家庭免除后顾之忧,放心工作,轻松娱乐。
豪佳苑小区内配备了两个商铺和一个托儿所,有小孩的家庭不用再特意接送孩子,也不用担心孩子独自在家调皮捣蛋。小区内配备有50米无边泳池、有氧水上运动、冷气健身房、SPA、蒸汽桑拿房、烧烤台等豪华公寓设施,更具备独一无二的冰疗室和喜马拉雅盐室等全新加坡仅有的特殊疗法设施。
豪佳苑真正关心您的健康,除了冰疗室和喜马拉雅盐室之外还有冥想台、瑜伽角等贴心设计。当真是物超所值,让您在小区内家门口就可以享受五星级宾馆的服务。
冰疗屋及喜马拉雅盐屋:

蒸汽桑拿房及SPA:

03 紧挨地铁站
丹娜美拉新站台建成后将进一步缩短步行距离。地铁直达CBD、樟宜商业园、樟宜机场。

豪佳苑位于新樟宜路上段(New Upper Changi Road)和南勿洛大道 (Bedok South Avenue )的交叉,两个朝向均没有高楼,半数以上住户单位都可以享有无遮挡的开阔视野。最近的丹娜美拉换乘站就在步行范围以内,在2020年的新站台修好后,步行距离将进一步缩短,可谓是下楼就到地铁站!
丹娜美拉距离EXPO仅有一站的距离,樟宜商业园(Changi Business Park)正位于EXPO地铁站,有多家投资银行(花旗、瑞士信贷等)入驻、高收入人群的强大租赁需求将会使豪佳苑极具投资潜力!樟宜机场仅有两站的距离,10分钟即可抵达,极大限度上方便了需要长期商旅出差或热爱旅游的人士。
04 紧临高速路,驾车方便
紧密衔接PIE、ECP两大高速公路,驾车人士出行更方便。
05 高校林立,便于租赁
新加坡科技设计大学(Singapore University of Technology and Design)、淡马锡理工(Temasek Poly)、淡马锡初院(Temasek Junior College)等高校环绕,租赁需求高。
众多高校都在不远的驾车距离以内,而高校的宿舍从来都是供不应求,随着新加坡教育资源声望的提高,越来越多的国际留学生也会纷至沓来。靠近高校的小区势必成为投资的大热门。
06 成熟社区与配套
成熟社区与配套,5分钟抵达Bedok Mall,餐馆用餐、购物、超市采购、看电影等应有尽有。
东部最大的商场之一Bedok Mall距离豪佳苑所在的丹娜美拉地铁站仅有一站之隔。Bedok有百余家零售、餐饮、服务等店铺,还有电影院(Golden Village cinema)和大型超市(Fairprice Finest)。Bedok Mall还整合了巴士换乘中心,连接全岛各个交通枢纽站。

07 成巴士直达东海岸公园
尽享数公里海岸线的稀缺自然资源。
若说地铁和商场都是可复制可再建的优势,那么天然的海岸线则是绝无仅有的稀缺资源。新加坡最大的国家公园东海岸公园有绵延数公里的海滩、多家海鲜饭店、平价食阁、便民服务中心等令人流连忘返的设施,是新加坡人心目中的周末娱乐好去处。豪佳苑的住户乘坐巴士即可直达东海岸公园,或看海或骑单车或矶钓或漫步沙滩,没有驾车的需要,也没有寻找停车位的烦恼,不可谓不悠闲自在啊!

08 成保持期房低价优势
保持期房的低价优势,户型多种多样,从一卧室到五卧室单位应有尽有,满足不同购房人群的需求。一卧室已经售罄,但是二卧室单位还在热销中。
09 成用材考究,装修高档
从样板间可以看出,豪佳苑的室内装修奢华大气,卫浴和厨房皆采用名牌高档材料。比如:

装修风格以简单的色调和线条为主,突出墙面和地板材质的高级感。住户可自己选择灯饰,依照自己的喜好对整体风格做微调。

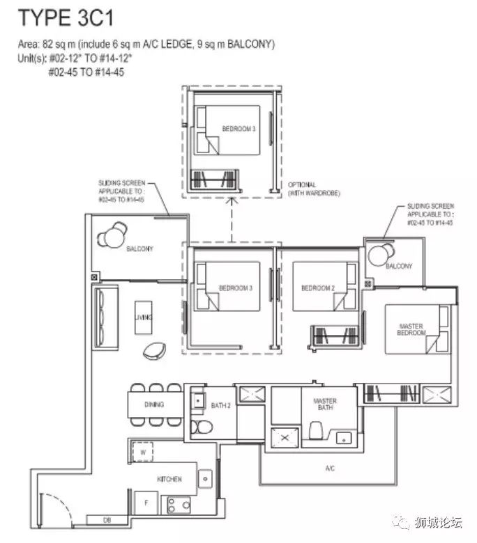
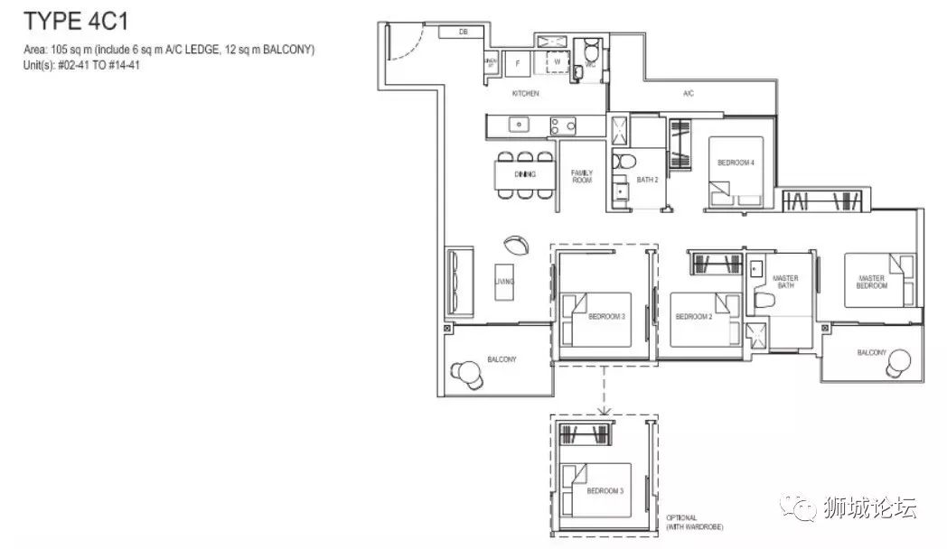
楼盘经典户型图一览
二卧室带书房单位

二卧室豪华型单位

三卧室单位

四卧室单位

结语:
豪佳苑作为智能家居的先驱项目,项目创立之后在新加坡的房地产市场就十分引人注目 。再加上方便的地理位置、潜在的投资价值、东海岸的天然环境等九大优势,豪佳苑在新楼盘中可谓是一枝独秀。两室一厅售价$96.4万起,不论您是自住还是准备出租投资,豪佳苑都会让您觉得物超所值。
若是您感兴趣,不妨联系开发商直接销售团队,他们将悉心解答您的疑问。
若您对以上房产或者其它任何新加坡房产感兴趣,请免费联系我们的特约金牌房产经纪人吴洲,常年专业买卖全岛任何产业,开发商直接销售代理,买房无经纪费,一个电话或微信的距离,数百个楼盘数万款房产任您挑,总有一款适合您,投资新加坡房产,首付最低仅$30万新币起。

关于吴洲:
金牌房产经纪人(新加坡IEA房地产经纪协会2013/2014 年度金奖得主),他从业7年,秉承专业诚信,事无巨细的工匠精神从业理念,迄今为止,成交完的产业总市值以数亿新币计算,服务过数百位中高端客户投资新加坡产业,并获得客户满意好评,服务过的客户群体有新移民,企业家,艺人,教授学者和房地产开发商等,专业提供【新加坡任何公寓楼盘和商业地产以及地皮的买卖投资服务,买私宅无任何经纪费用】,如果您有任何产业需求,欢迎买家/卖家联系我们,我办事,您绝对放心。
联系吴洲:
请加微信号:peterwu99
(或长按以下二维码图片自动添加)
新加坡:(0065)96728008
政府执照号: R009913B

点击左下角“阅读原文” 了解最新楼盘优惠折扣信息
www.65chinese.com
↓↓↓
完善自我,成就他人,如果您喜欢这篇文章,请转发给您需要的朋友。
相关阅读
乌节路豪宅+精装修+仅首付即可拎包入住或对外出租,两年后再付余款。
内幕爆料:新加坡买房选房技巧大公开
海景公寓+名校+永久地契+10分钟滨海湾仅$89万起
潜力投资:10分钟车程到乌节路,楼上生活,楼下逛街
万万没想到,东部公寓竣工在即,售价仅$68万新币起
重磅:新加坡 “国土”扩张史
干货 | 新加坡房产八大金牌投资原则
万万没想到,新公寓楼盘两室一厅仅$73.5万起
《推荐必读》新加坡房产投资潜力分析解读
房产:裕廊湖—打造“西部滨海湾”
万万想不到,首付15万,就能买到新加坡公寓啦
房产:“学区房”— 金文泰名校楼盘御品居介绍
全岛总价最便宜的一线河景公寓只要$55万起!
一个值得投资的好楼盘推荐-天木园(竣工在即)
置业新加坡★★海景公寓仅$69.7万起,买房可贷款
海景公寓仅$69.7万起,吹着海风,听着海浪声,遥望星空
房产投资:全岛永久地契楼盘大汇总
置业新加坡★★海景公寓仅$69.7万起,买房可贷款
店面:首付45万新币起坐拥永久地契店面,无额外印花税,自由买卖。
投资公寓:十分钟乌节路+三分钟地铁口+名校资源+湖景公园,竣工在即
公寓:10分钟地铁到植物园,16分钟乌节路,竣工在即$73万起
漂亮大型公寓楼盘两室一厅$73万起,外国人买房可贷款
2016年度最值得关注的公寓投资楼盘介绍,外国人买房可贷款
东部地铁口楼盘竣工在即,值得用心了解
性价比不错的公寓楼盘来啦,仅$59.8万起
乌节路豪宅仅付20%拿钥匙,免费收取租金三年,外国人买房可贷款
准备买房必看,简单明了让您一眼看懂买房宝典
新加坡商业地产投资优势汇总,外国人可贷款。
北部最便宜的公寓来啦,外国人可贷款哦
投资首选,新公民首付$23万起,外国人买房可贷款
置业:总统府旁边的房子来啦,外国人买房可贷款
西部未来成长区近水高层公寓,首付最低仅$13.5万起
置业:楼下就有商场的三室一厅公寓仅$91万起
既住得起公寓又可以买车, 最便宜的公寓来了。。。
置业:云之巅,心所往。居新加坡天地中央,拥壮阔国际人生。
永久地契现房公寓,一个2017年你不得不重点关注的投资项目。
置业:投资租赁首选楼盘,值得重点关注的楼盘解析。
经典市区公寓,Sturdee Residence公寓与您共享动静皆宜的都市生活
外国人买房可贷款,低利息,实龙岗地铁十年第一楼盘推荐
万万没想到,一房改两房,拎包即可入住的大使馆区域公寓来啦。
买房置业银河湾,为您提供宁静生活的亲水天堂


评论