“美女设计师天团” 的网红爆款设计

INTERIOR
DESIGN
看到这组INS风的图片,你第一反应觉得这是什么地方?咖啡厅?健身房?还是商场、社区的活动中心?如果不是知情者,大概很难猜到这实际上是新加坡的一所私立学校。而它完全跳脱传统校园风格,充满未来感和人性化的设计,也使之成为了新加坡私校校园中的网红爆款。
而令人更意想不到的是,这样的设计出自一个全员皆智慧与美貌并存的“美女设计师天团”——仙人掌艺术设计装修公司(Cactus Art Design & Furnishing Pte Ltd)的团队。
首席设计师兼执行董事
ANGIE LEE



(图为Angie和她的核心团队)
对于美女,在专业领域,常常会有人因固有的思维偏见而质疑她们的实力,但Angie却无惧外界的标签,带领着她的团队一次又一次地用实力赢得了客户的认可与信任。

倾听与沟通
Attentive and Commune
「好的设计师要善于倾听与沟通。」
Angie始终认为,设计归根结底是帮助客户呈现他们心中的图景,将他们的思维理念以及生活或工作方式实体化,因此听懂客户的需求是成功设计的第一步。
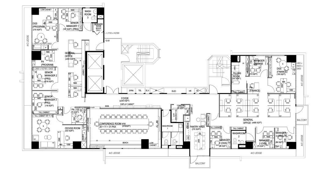
她曾经为本地一家主营证券投资、财务管理的公司做过设计,老板是日本人,感觉特别随和亲切,似乎对设计也没有什么特别的想法和要求。但以Angie的经验,她很清楚所谓“没有要求”,实则是心中有个模糊的轮廓,但不知道怎么表达。
因此Angie和她的团队有针对性、技巧性地与老板进行了沟通,了解到老板平时的审美偏简洁、大方的风格,喜欢白、灰的经典色,担心自己的办公区域仅200多平方米,空间不够,并且希望办公室有一点绿色。
掌握这些信息后,Angie和她的团队经过反复讨论,最终确定了整体设计基调:经典、精致的设计概念,以白、灰为主色调,在地毯、摆设以及组合柜上加入一些绿色的元素,大量使用落地玻璃做隔断,尽可能地少占用空间并保证良好的采光。





考虑到公司主营业务是证券投资,Angie和她的设计团队还在落地玻璃上加入了一些小设计:玻璃上凸起的小方块象征着股市的波动变化。

PIXEL BLOCK

此外所有如图示意的部分,原来均为承重柱,为了美观且更好地利用空间,设计师将它们改作设置了隐藏门的储物空间,里面可以储存文件、杂物等,外面可以摆放书籍、小装饰品等。

这样的设计虽然看起来非常简约,却完美地契合了客户的需求,该公司的老板看了设计图之后,直呼这就是他想要的设计,几乎没有任何修改意见就直接拍板定案。

留住美的设计
Retaining the beauty of design

STARLIGHT PAVILION
「如果当时贝聿铭没有坚持他的审美与创新理念的话,那么“卢浮宫院内巨大的宝石”将不会熠熠生辉于世界建筑史。」
开篇我们提到的私校校园,是与Angie合作了20年的辅仁国际学校。校长李威向来非常喜欢Angie的设计,但当她看到设计图时,她和她的同事们都有些迟疑,因为虽然设计很棒,也满足了她所有的需求,但却不免让人有些疑虑:这会不会看上去不像个学校?
面对李校长的疑虑,Angie非常理解,但她更加认为负责任的设计师有时就是需要有自己的坚持,帮助客户留住美的设计。
她对校长说,您要做的教育本就不同于政府学校和其他私校,那为什么校园要和其他学校一样,为什么不可以定义您自己心目中的学校是什么样的呢?
于是,充满未来感的12星座主题学术讨论区便留了下来;


CLICK TO PLAY 请点击


星巴克风的学生Cafe便留了下来;

CAFE


绿意盎然的CAFE也留了下来;
ABBY CAFE




学校还有了可随意变化格局的教室;

装满各种百科全书的开放性图书馆;

LIBRARY


以及坐着摇椅慢慢摇的休闲区……
ACTIVITY AREA



设计装修一体
Design Intergration
「很多设计公司设计出来的作品很美,但装修出来却呈现出买家秀与卖家秀的巨大落差。」
为避免这种情况的发生,Angie坚持与有品质的供应商长期合作,以确保装修后呈现的效果与设计图基本一致。
“我们与装修团队有默契,他们很清楚我们想要什么。每当将设计图纸交到他们手中,他们在工程中都会严格按照实际的要求选购正确的材料,在施工中不偷工减料,严把质量关。而我们为了确保工程进度及质量水准,还会派出专门人员进行监督,对原材料的品质进行验收。严格的工程管理,为圆满完成设计做好了最后一道保护伞。”
Angie是这样说的,她也确实做到了。
设计稿 VS 实景图 – THEORIA


设计稿 VS 实景图 – BEIJING 101


设计稿 VS 实景图 – CWM


Angie接过一家名为CWM的教会活动组织机构的设计装修项目。原址是7个独立的小单位,走廊上还有很多不美观的消防门。
这样的格局限制太多,无法满足客户的需求,因此在征求了客户同意后,他们大刀阔斧地将几个小单位打通,进行整体格局的重新布局,还将所有消防门改为了隐藏门。
之前

之后

之前 VS 之后



女性的细腻
Feminine Touch
「女性的细腻,有助于设计师更准确地洞察客户的内心需求,最大限度地提供平衡设计的美感与功能性。」
在CWM的项目中,Angie和她的设计团队想要营造出平安喜乐的感觉,于是他们采用了崇尚质朴自然的“北欧风”设计风格,力求让置身其中的人们有种温馨、舒适、和谐感。
此外他们还加入了很多细腻的小巧思,例如将CWM公司的文化标志以立体白鸽鸟的元素设计在天花板和墙壁上,寓意着 “向世界分享神的爱” ;又如会议室的天花板设计成波浪音阶的样子,寓意来自天堂的音乐悠扬,生命的旋律不止。



为了满足客户双用的需求,他们设计了一块可以写字的玻璃拉门,并把智能电视安装在拉门后。




CLICK TO PLAY 请点击
而在她们给知名餐饮品牌 4 Fingers 办公总部设计的项目中,她们的设计保留了该公司饮食行业的特点。设计了可以既作为餐厅又作为会议室的开放空间。
整体风格也与4 Fingers店面设计的风格相呼应,强企业文化,工业风。





初心
Passion For Design
「看到客户发自内心地喜欢你的作品,自己也会有满足感。」
Angie从事设计行业也有28个年头了,凭着好口碑和过硬的实力,早就有了非常固定的客户群,其中不乏许多合作了十多二十年的老客户,例如Beijing 101合作了十多年,他们家70%以上的店面都是Angie公司设计的。


但这么多年她始终初心未变,从来不把设计当工作、当生意看待,而是当做她所珍视的艺术作品。她的公司向来都是由设计师直接与客户沟通,而不像很多设计公司,让做市场的先接触客户,再由他们做设计师与客户的对接人。
一方面因为是她们公司的设计师们都有极强的倾听与沟通能力,另一方面是Angie认为设计师与客户之间的互动关系,是设计作品成功的关键。
设计师了解客户需求,打造专属于客户的设计作品,直接向客户传达设计理念,再聆听客户的反馈,及时作出调整,这样既有工作效率,也能真正做到客户喜欢。
但现在有的公司管理层级多,往往没办法直接向公司负责人阐释设计理念,如果由中间人转述双方意见,优秀的设计师自然也能作出漂亮的设计,但这样的设计往往“美则美矣,缺乏灵魂”。
Angie希望她的设计作品不但美,还美得独特,美得有生命力,因此她在接设计项目时,更倾向能与公司负责人直接沟通。
“客户发自内心的喜欢,才是我所追求的。” 这是Angie的初心,也是她一路走来作出好设计的秘诀。

仙人掌艺术设计装修公司

成立于1993年,新加坡本地专业室内设计装修公司,设计类别涵盖商务会所、办公场所、大型公共场所、店面、学校等。多年来坚持“崇尚自由,追求完美”的设计理念公司和“以质量求生存,以信誉求发展”的经营理念,以公平合理的价格,卓越精细的施工过程,为客户量身打造每一个服务项目,让每一个项目都能充分满足美丽优雅的视觉享受,也能享有安全舒适的实用性。
主要贴心服务:
由设计师直接与客户沟通帮助客户呈现心中的图景留住美的设计
坚持与有品质的供应商长期合作,以确保装修后呈现的效果与设计图基本一致
设计风格善于空间利用,绿化环境
CACTUS ART DESIGN & FURNISHING
仙人掌艺术设计装修公司
电话:+65 67744515
网站:www.cactusart.com.sg
微信:Godbelovedangie
新加坡辅仁国际学校
电话:+65 68426001网站:www.fis.edu.sg
微信:fisandrea
– END –
(图文由仙人掌艺术设计装修公司和新加坡辅仁国际学校提供)
评论