新加坡西海岸海景公寓,尺价竟然只要12xx新币?

最近路过西海岸时,被一块广告牌吸引,仔细一看原来是一个叫做河景苑(Parc Riviera)的新项目要开盘了。目前得到的参考价格为12xx新币每平方尺!熟悉金文泰西海岸一带的老司机们肯定都知道,在金文泰地区这个价格可谓相当的优惠!

河景苑的地点位于金文泰市镇,属于一个非常成熟的社区。具体位于AYE与Pandan resivor交界处,金文泰地铁站和裕廊东地铁站之间。附近就是西海岸公园,俯瞰班丹蓄水池远眺大海。

从位置来看如果开车的话因为靠近AYE驱车到达开往市区将会非常便利。新加坡政府未来的发点对象裕廊商业区也近在咫尺,相信该区域会因此而获得更大升值空间。西海岸地区名校林立,从新加坡国立大学到南华小学到日本中学再到到英华初院,教育资源丰富。无论是家有学生还是出租相信都有一定的保障。

虽然该项目所在位置去到最近的地铁站——金文泰需要乘坐巴士,但是西海岸地区在不远的未来即将开通轨道交通,升值空间也是被看好的。


新加坡裕廊一带,也一直是新加坡西部地区,政府未来发展蓝图中的重心。

下面我们走进小区内部看看。

和新加坡所有的公寓一样,小区内绿化很赞。健身房、50米游泳池、BBQ、游乐设施等,一个都不少,生活质量节节高。

河景苑一共有752个单位,99年地契,官方交房时间是2020年。项目为两栋36层的高楼,其中一楼的单位层高高达4.5米,顶层的层高也是高达4.3米,中间其他楼层层高2.9米。4.5米层高,做loft是非常充足的,非常适合有loft情节的年轻人们。37楼还设置有观景天台。
下面来看户型图:
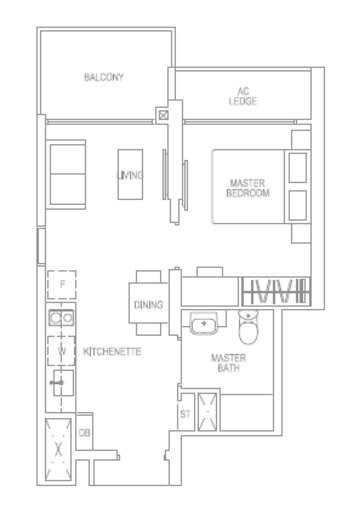
▼43平米(463平方尺)的1卧室户型

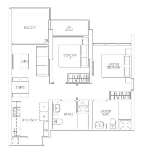
▼56平米(603平方尺)的2卧室户型

▼60平米(646平方尺)的2卧室户型:(和前者的差别就在于多了一个厕所)

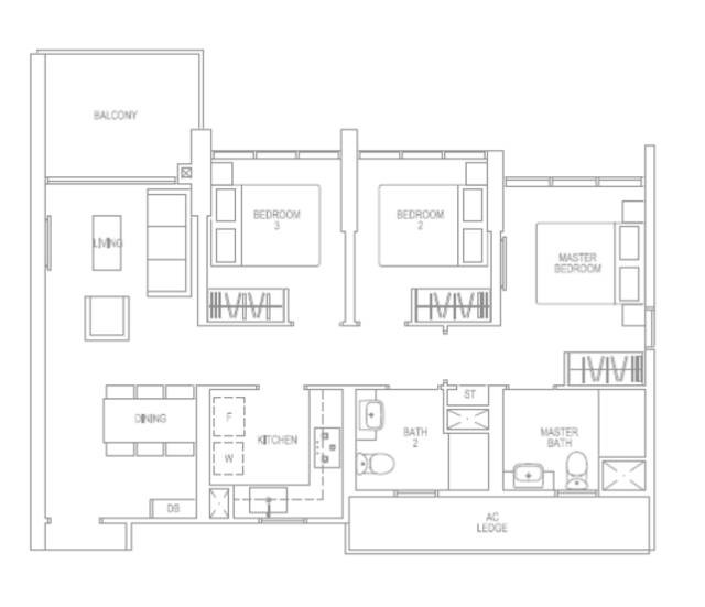
▼84平方米(906平方尺)的3卧室户型:从3卧室开始就可以做封闭式厨房啦!

▼94平米(1012平方尺)的3卧室+储藏室户型

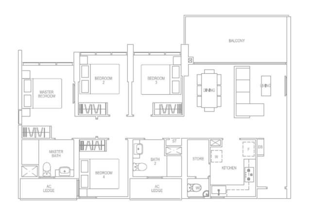
▼107平米(1152平方尺)的 4卧室户型

此处划重点,新加坡的公寓面积可都是实打实的套内面积哦!!没有公摊的!(小编表示中国的房子公摊真是尼玛巨大啊,一下子房子的20%-30%就没掉了………)
并且新加坡的公寓不仅没有公摊,而且全部是精装修拎包入住标准的现房,冰箱空调洗衣机,地板衣柜厨房甚至厕所都是装修好的。
从户型图我们可以看到,项目的户型都蛮方正的,利用率也都很好。还有一些其他户型没有全部列在这里,有兴趣的买家可加微信 xinjiapoyan6 预约去样板房踩点咨询详情。
最后再次划重点:西海岸的海景公寓,价格到底是多少呢?小编只能告诉你,目前放出来的吹风价竟然只要12XX新币/平方尺起!!西海岸这个价钱的公寓真心实惠可以来一打有木有!!相信很多熟悉西海岸、喜欢西海岸的买家们,一定已经在准备首付款的路上了……

评论