看新加坡这发展架势,以后是不是要去北部买房了?

编者按:新加坡北部的三巴旺地区,有全岛唯一的天然温泉;再过几年,著名的飞禽公园也将搬过去,助力逐渐成型的大规模万礼生态园。新加坡北部越来越宜居,去以下介绍的几个执行共管公寓看看吧,建设你的舒适家园。
EC (Executive Condominium),即执行共管公寓,是新加坡政府推出的一种介于组屋与公寓之间的物业品种。执行共管公寓的价格介于组屋和公寓之间,但基础设施和环境却可以和公寓媲美,满足购买条件的家庭还可以申请最多3万新币的政府津贴。最近新加坡北部新推出了不少EC项目,这次就给大家介绍一下。


通常来说,EC尤其是近五年来推出的EC很少有靠近地铁站的。而品尚居的位置则紧邻位于三巴旺义顺之间的19年完工的新地铁站Canberra,步行距离不到400米,交通非常便利,地铁可直达市中心。除了近地铁以外,项目附近还有很多商场如sunplaza,northpoint,以及未来建成的Canberra Plaza, north city, Sembawang Sports and Recreational Center等。衣食住行都方便,品尚居绝对是近期新加坡推出的不可错过的项目之一。

除了优越的地理位置,项目内的环境也是很养眼的。品尚居由青建开发,250米豪华中央景观带是项目最大的亮点之一。同为青建开发的Bellewater项目在去年荣获全新加坡最佳景观设计奖。下面我们就一起来欣赏一下项目的设计图。


住在这里,可以免费享受专业机构提供的多种课程,比如李思菘李伟菘音乐学校提供的歌唱和乐器课程(孙燕姿的导师有木有!),以及游泳、烹饪、烘焙、网球等各种课程。想想下班回家,接了放学的小朋友,在家楼下就可以上课,再也不用挤着地铁堵着车奔波,懒癌也瞬间就治好了呢。
我们再走进室内看看。样板间是这样的。

别忘了来体验一下智能家居,通过手机APP就可以即时控制家里的一系列智能应用设备啦!电子门锁,智能洗衣机空调调控都不在话下。(如果并不需要智能家居,也可以不要这块服务,可以省钱。)

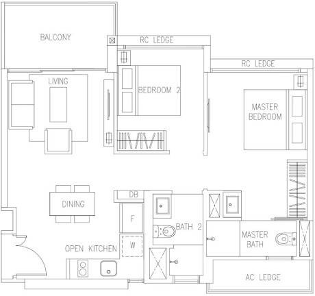
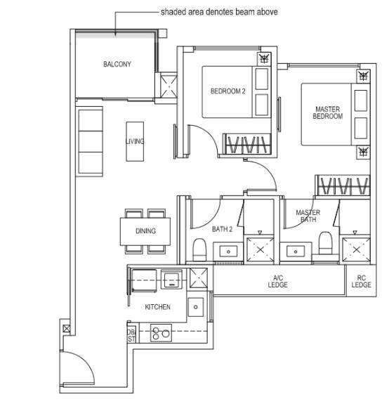
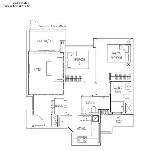
户型从2卧室到4卧室都有,面积从721平方尺到1549平方尺,大家可以根据自己的需求和喜好选择。户型都是方方正正的,而且还有青建独特的co-space设计,也就是说有一部分空间留给大家自己设计自己的户型。具体的到时候可以带大家去样板间为您介绍和展示。

(2卧室户型,721平方尺,报价60万新币起)

房型概览:
2 Bedroom (36 Units) 721 – 850 sq ft
3 Bedroom (393 Units) 839 – 1205 sq ft
3 Bedroom CoSpace (47 Units) 1119 – 1355 sq ft
4 Bedroom (138 Units) 1140 – 1581 sq ft
4 Bedroom CoSpace (18 Units) 1345 – 1549 sq ft
价格:
两卧室60万新币起,三卧室68万新币起,四卧室89万起 (参考价格)
预计交房时间:
1st October 2018

另外一个在新地铁站Canberra旁边的EC项目是雅尚苑。位置上雅尚苑距离地铁站仅仅200m,这样近地铁的优越位置在整个新加坡的公寓以及EC市场上都是非常罕见的。无论同时项目是由名誉品牌城市发展有限公司(CDL)设计开发的,是整个新加坡首个采用高效优质的工厂预制技术建造的项目。项目设施方面,不仅有50米泳池,俯瞰泳池的私人健身房,还有专门设计的轮滑场让小孩子年轻人一展身手。


如果走进室内你会发现的设计上不仅保证了宽敞的空间同时体现细节上的精致。家用电器都是国际名牌如三菱,惠而浦,汉斯格雅等。



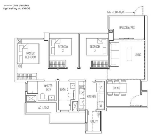
Brownstone预计建成时间为2019年一月二十九日,具体户型如下:
▼两卧室的面价68平方米,59.6万起

▼三卧室82平方米,70.6万起

▼四卧室101平方米,92.6万起


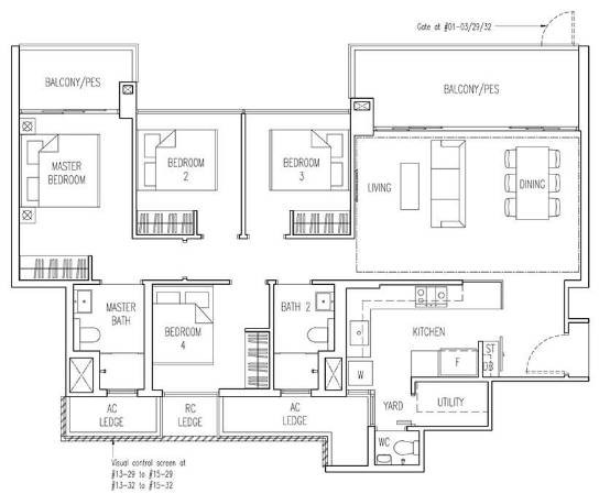
另外的一个最近正在出售的执行共管公寓是Parc Life。Parc Life位于Sembawang Cresent,靠近三巴旺地铁站步行约5分钟。整个项目共有628个单位,最高为16层,预计入住时间为2018年。发展商为狮星地产,附近义顺地铁站边大受欢迎的North Park Residences也是由狮星地产开发的。

Parc life的位置非常靠近三巴往小学和三巴旺中学,旁边就是坎贝拉公园,是一个非常亲近自然之所。再加上本身项目就设计得和花园一样,如此舒适自然的环境相信回到家里肯定是无比的轻松惬意。在享受静谧之余,走出来不远就是三巴旺地铁站以及太阳广场(Sunplaza),无论是吃饭购物一站俱全。另外还有一个三巴旺购物中心也在附近,也是另外一个便利的购物选择。

Parc Life刚刚开盘不久,选择较多。大家可以多多关注
▼两卧室753平方尺 58.5万起

▼三卧室936平方尺67.6万起

▼四卧室1270平方尺96万起

最后,还要提醒一下大家执行共管公寓EC的购买条件。要是符合的话就快下手吧。
购买新EC条件:
– 需核心家庭成员2人联名购买,至少要有1个新加坡人,即新加坡人+新加坡人,或新加坡人+永久居民(永久居民未满3年也可购买)。
– 家庭月收入不高于14000新币
– 若买家已经拥有私宅,则要卖掉30个月后方可申请EC
– 若买家已有组屋,需要满足最低居住年限要求(Minimum Occupation Period), 通常为5年。
购买超过5年的转售EC条件:
公民/PR可买,性质与买公寓一样,即一个人也可以买,PR不需要满足3年的限制。
购买超过10年的转售EC条件:
所有人可买,性质与买公寓一样。
评论