新加坡东部海景公寓70万新币起,在巴西立










![]()
1:海景房仅$69.7万新币起,在寸土寸金的新加坡,该楼盘可能是目前市场上中大型新楼盘中性价比最高的海景房啦。
2:国际学校在新加坡号称“贵族学校”,而“海外家庭国际学校”和该楼盘仅一墙之隔, 预计将有600名教职员工和4800名学生工作和就学于此,竣工后必将受到该“贵族学校”学生家庭和教职员工的亲觅。
3:宜居生活,70公顷的海景公园近在家门口,每日携手家人海边散步,,吹着海风,听着海浪声,遥望星空,享受高品质健康家庭生活。

4:东部“金融中心”
距离号称东部“金融中心”的樟宜工业园区仅8分钟车程,花旗银行,星展银行,IBM等其他跨国企业均有办公室设立于此,而该楼盘拥有海景稀缺资源以及紧挨公园,对在樟宜工业园区工作的金领人士具有一定吸引力。
5:商场&购物&娱乐
步行5分钟即可到商场Elias Mall ,同时巴西立地铁站也有商场White Sands ,投资两亿新币翻新的Downtown east 已经完工对外开放,衣食住行玩应有尽有,满足您家庭的生活所需。

6:教育:大学,小学
(I)新加坡政府重金打造的第四所公立大学-新加坡科技设计大学已经投入使用,距离本楼盘仅7分钟车程。
(II)靠近数所小学,例如:百惠小学,依莱雅园小学,美廉小学,云海小学,康岭小学,洛阳小学等,选择众多,满足您的孩子教育需求。
7:交通
十一分钟车程到达樟宜机场,高速PIE有效连接市区18分钟车程到滨海湾金融中心,同时伴随着樟宜机场四号航站楼的开工,竣工投入使用后对靠近机场的公寓租赁需求将进一步提升。
室内设计效果图参考:





户型图参考

▲一室一厅户型图(套内面积44平方米)

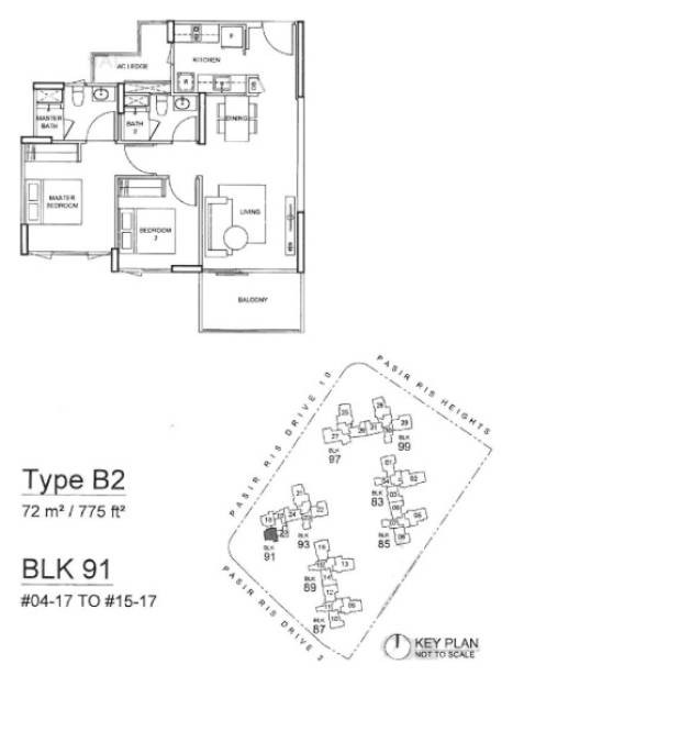
▲两室一厅户型图(套内面积72平方米)

▲三室一厅户型图(套内面积96平方米)


总体而言,以上楼盘奕景对于预算有限但是想依海而居享受海景,每天饭后闲情可携手家人在海滩边散步的买家来说是个不错的选择,周边教育设施配套齐全,靠近机场,国际学校,樟宜工业园区等给该楼盘提供了稳定的潜在租客。
但是,再美的楼盘也会有不足之处,同样该楼盘的缺点是不靠近地铁,需要搭乘小区快巴往返于地铁和小区之间,萝卜白菜,各有所爱,有兴趣的读者可以预约我们实地考察,眼见为实,选择适合自己的才是最好的。
关于作者:吴洲
高级产业董事,新加坡房地产经纪协会金牌得主,秉持事无巨细,专业诚信的从业理念,成功服务过数百位客户买卖租产业并获得好评,服务过的客户有新移民,企业家,艺人歌手及教授学者等,专业提供全岛任何公寓和商业地产的买卖租服务,协助办理买房银行贷款,买私宅无中介费。

评论