新加坡新楼盘:紫线地铁高文永久产权,20分钟到市区


新加坡的永久产权地契是英国殖民时期留下来的一个特殊历史遗留产物,新加坡政府自1965年建国后所释放出的建筑用地均为99年地契,所以当前市场上的永久产权公寓都是开发商从私人手上整体收购后重建而来的,并且主要都是以小型楼盘为主,而一般小型永久地契楼盘受制于土地面积有限,公寓设施会不太齐全,今天我们在此和大家分享一个公寓配套设施齐全的中大型永久地契楼盘—高文Trilive ,整个楼盘是高文区域最大的一块永久地契地皮,稀缺资源值得珍藏。


楼盘名:Trilive
地契:永久
建筑单位:222套公寓
最近地铁:高文
竣工日期:2018年12月或更早
价格:两卧室户型 $88万起
三卧室高级户型 $132 万起






1:稀缺资源,少见的中大型永久产权公寓楼盘,可世代传承。
2:步行即可到高文地铁站
(I)从高文地铁站搭乘地铁到多美歌地铁站约14分钟,到牛车水地铁站约18分钟车程,到市区政府大厦约16分钟时间
(II)从高文地铁到滨海湾金融中心的地铁搭乘时间约为20分钟。
3:居住在高文地铁区域的居民生活极其便利,靠近多个邻里商场,小区对面就是商场Heartland shopping mall 以及大型食阁,湿巴萨,民众俱乐部等,满足你的家庭日常所需。
4:该楼盘有效衔接高速KPE ,TPE ,CTE 和PIE ,驾车方便到主要市区区域,比方说乌节路,滨海湾,莱佛士等均在20分钟车程内。
5:优质教育设施
(I)两站地铁到美国史丹福国际学校,澳大利亚国际学校,满足国际家庭子女的教育需求。
(II)本地名校美以美女校,乐赛学校等满足年轻家庭子女教育需求
6:良好的潜在租赁需求,因地处高文成熟区域,有效衔接几条主要高速公路,交通便利,传统上高文区域一直是租金回报率比较高的区域,受到不少外国专业人士的亲觅。
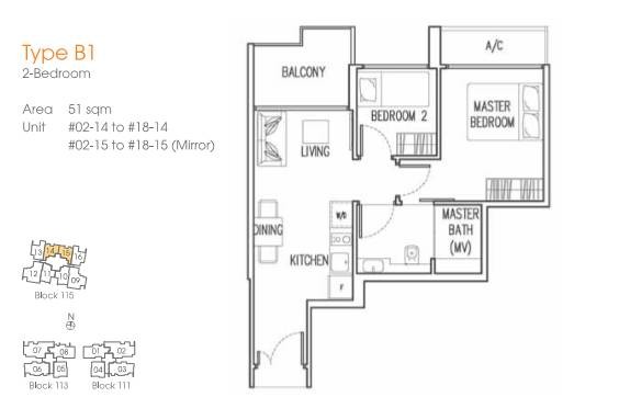
楼盘主要户型图两室一厅户型图参考(套内使用面积51平方米)

三室一厅户型图参考(套内使用面积84平方米)





优点:永久产权,地处成熟居民区域高文,该区域生活非常便利,有效衔接高速,去市区方便。
缺点:距离高文地铁站距离800米,步行距离10分钟,稍微远了点,若以后住该小区的居民,不太想走路到地铁站的,需要乘坐公寓小区内部巴士3分钟到高文地铁站。
若您对新加坡任何房产感兴趣,请免费咨询我们的特约房产经纪人吴洲,外国人买房可银行贷款。
关于作者
吴洲,高级产业董事,新加坡房地产经纪协会金牌得主,秉持事无巨细,专业诚信的从业理念,成功服务过数百位客户买卖租产业并获得好评,服务过的客户有新移民,企业家,艺人歌手及教授学者等,专业提供全岛任何公寓楼盘和商业地产的买卖租服务,协助办理买房银行贷款,买私宅无中介费,如果您有任何产业需求,欢迎买家/卖家联系我们,我办事,您放心。
联系吴洲请加微信号:xinjiapoyan6(或扫描以下二维码添加)

评论