新加坡乌节路超霸气地标豪宅 The Scotts Tower!



造型独特的乌节路霸气公寓The Scotts Tower由荷兰UNStudio创始人兼首席建筑师本·范·贝克尔(Ben van Berkel)设计,其设计建造的德国梅赛德斯奔驰博物馆荣获2009红点大奖至尊奖。而The Scotts Tower的建筑商则是在全球超过30个国家都有工程,包括吉隆坡地标建筑双峰塔和纽约地标建筑特朗普世界大厦(Trump World Tower)等等的大宇建设(Daewoo Engineering & Construction)。
全球顶尖奢华黄金地段

The Scotts Tower位于纽顿和乌节地铁站之间,史各士路和经禧路交叉处的第九邮区黄金地段,出门即是世界十大步行街之一的乌节路购物商圈。数步之内,便能享受非一般的购物乐趣及多样化的国际餐饮。乘坐地铁或驾车,10分钟即可到达滨海湾金融中心、或新加坡河畔众多娱乐场所。这里交通四通八达,可通过中央高速公路和泛岛高速公路来往全岛各处。
自由写意SOHO户型

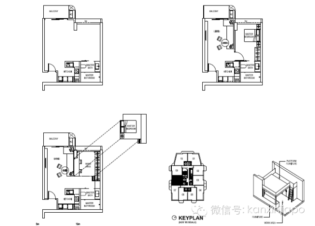
31层高的The Scotts Tower摩天大厦里面共有231间小型家庭办公室(SOHO)概念单位,建筑第二层和第二十五层拥有空中园景花园、天空廊道(sky terrace)和众多的消闲设施。


豪宅内部奢华享受
看完了外观我们再来看看如此酷炫的建筑内部是什么样:


喜欢设计的你一定会喜欢The Scotts Tower的半空白户型概念(左上),根据自己的意愿与生活方式,量身定制您的寓所,自由分配生活空间。每个单位拥有高达3.4米的高天花板、落地窗、“无边界”地面空间和前卫的艺术设计。

每套单位内均配备德国品牌家电设备及奢华气派的大理石地砖。


目前还有1房,2房,3房可供选择,面积从624平方尺到1227平方尺。
【新加坡眼推荐单位】
– 1房soho单位
– #11-03
– 61平方米(无公摊)
– 226万新币*
*外国人贷款可高达70%
评论