只有在南洋才能生长出这样一栋别墅

(新加坡眼按:只有与当地自然环境和审美风格作最帖切的设计,才是从那里“自然生长”出的建筑。鸡蛋花,中式庭院的园林山水审美哲学加上西方现代极简主义,奇怪地混搭在一起。全世界可以拷贝这样的创意,但是放在别的其他地方,都不如在新加坡这儿“长出来”的这栋房子那么自然和惬意。)

来自建筑师的描述:位于半独立住宅的中央庭院分布在两个楼层上。在首层庭院, 鸡蛋花树位于池塘的中央,池塘四周是木材饰面的框架。两倍大的客厅和餐厅围绕着这个庭院。



二层的庭院位于一层餐厅的正上方,二层主卧的前方。面向庭院的立面为通高的玻璃,玻璃外面安装有层叠咬合的垂直和水平木条。


庭院给予了住宅更多的私密性,同时也使得阳光可以射入中央的房间。此外也起到了充当隔离远处主干道噪音的缓冲区的作用 。
























↑地下室平面图

↑一层平面图

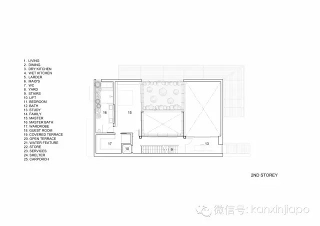
↑二层平面图

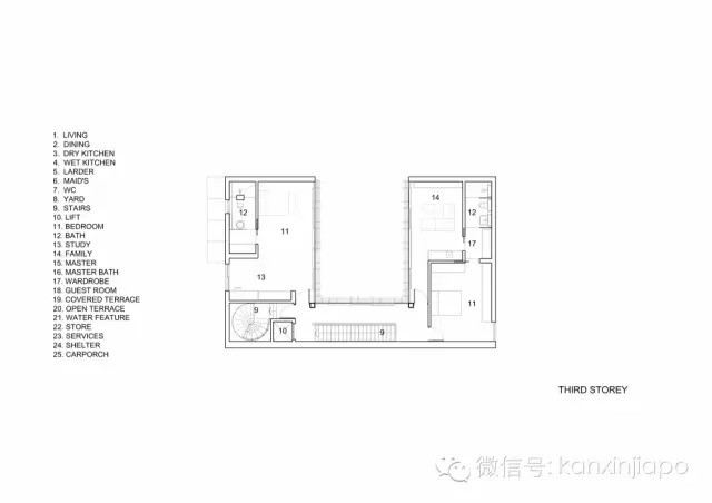
↑三层平面图

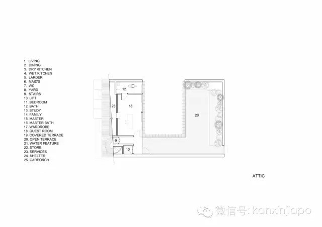
↑阁楼平面图

↑立面图

↑立面图

↑立面图

↑剖面图
项目信息设计:HYLA事务所
地点:新加坡,Greenbank Park
主创建筑师:Mr. Han Loke Kwang
助理建筑师:Yuzhe, Nicholas Gomes
建筑面积:520平方米
建成时间:2014
摄影:Derek Swalwell
主要承包人:Praxis Contractors Pte Ltd
结构工程师:GCE Consulting Engineers
场地面积:376平方米
翻译:建筑学院-李宾
校对:建筑学院-王峰
*本文来自于ArchDaily,由『建筑学院』翻译编辑,转载请注明出处。
(新加坡眼再按一下:外国护照不允许在新加坡购买有地产业,所以就算你很有钱,就“审美”地欣赏一下本文好了。不过,有一种越买越少的地产项目,长得像别墅,买卖像公寓也就是说不受别墅的限制,外国护照也可以购买。点击原文链接可以参考。)
评论