360°全方位围观新加坡垂直花园住宅,有钱真好

2001年时,阿德里安•唐曾委托Aamer事务所设计了 “唐的花园别墅”,这是业主位于第42号的住宅,将一处平房一分为二形成了两个独立又有特色的住宅,此住宅还赢得了2004年新加坡建筑设计研究荣誉奖。

十年之后,阿德里安又获得了隔壁的第40号房子,他想再建立一栋新住宅,这样他一共有了三栋住宅,一个留给他自己,另两栋分别给他的两个儿子及他们未来的家庭。

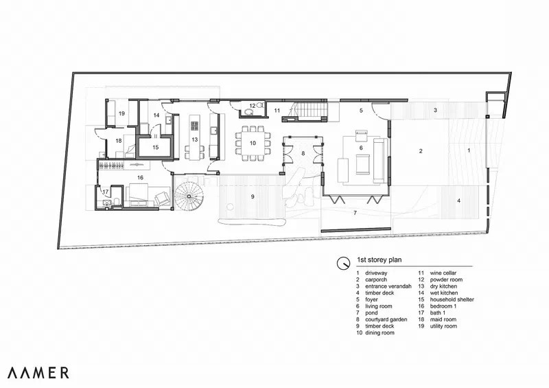
新的住宅的设计理念必须与前两栋同步但是又得不一样。阿德里安还特别要求住宅中有一个花园庭院和一个锦鲤水池,因此,建筑师将游泳池设在了房顶,这样能欣赏周边的景致,也能看到四周两层楼的平房。

他的两个儿子现在也已经十几二十岁了,他们需要更大的空间和隐私。因此建筑师在住宅的空间上进行了有趣的安排,在男孩的房间外设置了一条游廊,从地面一直延伸到屋顶,孩子们可以通过游廊直接到达屋顶的娱乐室和泳池花园平台。

这个住宅跟前两栋住宅所用材质相似,也用了非常天然的木材、大理石、花岗岩,与苍翠繁茂的垂直花园相辅相成。

另外,业主对住宅的花园和绿化一直很重视。前两所住宅中种的树已经超过木阳台了,这次在垂直的木棚架上种上了很多攀援植物,可以一直长到屋顶的游泳池。连住宅的浴室也都面向花园,能看到葱郁的花和蝴蝶飞舞,这是一个真正的垂直花园别墅。(文字来自:UED杂志)



























内容转载自:灵感日报
评论