新加坡房产迎来了报复性消费,带您揭密隐藏于闹市中心的低调豪宅
转眼间,新冠疫情席卷世界已经三年,新加坡自四月份大门开放后,大批海外买家踊跃进场,报复性消费,导致新加坡买房如“买菜”。团购氛围极其浓厚!新加坡这个“小红点”的楼市变得异常热门!
先是中国福建富豪以$8,500万新元买下克拉码头旁的综合海滨开发项目- 康宁河湾20套大户型单位!

再有中国籍永久居民(PR),斥资$3,880万新元购买中央商业区相当罕见的甲级办公楼-新达城大厦2一整层楼。

另外,印尼富豪家族也准备以$1.68亿新元的价格购买乌节路黄金地段Draycott Eight 公寓的22个单位。

由此可见,新加坡楼市仍备受海外人士投资关注。不管是住宅项目还是商业地产,都备受富豪的青睐,且销售热度还会持续。但是黄金地段加大户型的豪华公寓在各种富豪扫楼的情况下,已经缺货有一阵。
那今天我们将为大家隆重介绍一个高端、低调、有内涵而且又位于新加坡城市心脏地带,最值得入手的房产黄金项目-Eden Residences Capitol 首都御府。
项目简介
Eden Residences Capitol 首都御府坐落于市中心第六邮区的新加坡心脏位置,紧靠City Hall 地铁站,离CBD Raffles Place 仅一站地铁,而又背靠新加坡历史街区, 金融区和乌节路购物区。该项目是由Capitol Investment Holdings Pte Ltd开发,是一个集酒店、剧院、商场、住宅以及紧连地铁换站的超豪华综合开发项目。
首都御府是由10层楼高的39间顶尖私宅公寓所组成,每单位都享有至少2,100平方尺以上的宽阔奢华空间,且还配有私人电梯。而首都御府的住户在家中即可眺望及享受无遮挡和壮丽的新加坡最大的教堂 -圣安德烈座堂(Saint Andrew's Cathedral),滨海湾金融区(Marina Bay Financial District)和城市的无敌美景,而且周围都是保留建筑,无遮挡的美景将世代相传。现在我来带大家欣赏一下视频中这套豪宅的内部。
(视频为Penthouse Begonia户型) 项目风格
Eden Residences Capitol 首都御府是由著名“建筑学诺贝尔奖”之称的普利策克奖得主Richard Meier亲自操刀设计。其设计灵感来自于新加坡“花园城市”的美誉,并希望将首都御府打造为新加坡市中心一片郁郁葱葱的城市绿洲。

首都御府是Capitol Singapore 综合开发项目的一部分。该综合项目是将史丹福大厦、首都大厦和首都剧院这三座历史悠久的建筑保留,并把高端商业和餐饮中心(Capitol Piazza),五星级酒店The Capitol Kempinski Hotel Singapore(新加坡凯宾斯基)以及奢华豪宅Eden Residences Capitol(首都御府)融入其中。这历史与现代的结合方式,打造出具奢华与历史文化积淀的下榻之处。

而该项目前因是新加坡最大的教堂 -圣安德烈座堂历史建筑,以致所有住户可以享受无任何高楼建筑遮挡,直接把市政区、金沙酒店和滨海湾的无敌美景尽收眼底。

地理位置
Eden Residences Capitol 首都御府拥有优越的地理位置,毗邻主要高速道路如中央高速公路(CTE),亚逸拉惹高速公路(AYE)和东海岸公园大道(ECP)。

此外,其地处新加坡中央商业区的中心地带,被3条地铁线路包围着,从项目的底层步行 4 分钟路程就可以连接到City Hall MRT。该地铁转换站营运着地铁东西线(MRT East West Line)和地铁南北线(MRT North South Line),是新加坡最重要的地铁线。而从项目出发至Bras Basah MRT与Esplanade MRT也仅需9分钟的步行路程即可抵达。

其四通八达的交通网络,让居民不管是驱车还是乘搭公共运输前往全岛各地都十分便利。而首都御府优异的地理位置也让其具有极高的投资潜力。

该项目周围一至两公里内也拥有许多名校林立,其中包含School Of The Arts, River Valley Primary School, St. Margaret's Primary School, Stamford Primary School等名校,绝佳的地理位置不仅适合商业人士投资,也适合家庭人士自居。
周边设施
地铁站
City Hall – 0.2km
Bras Basah MRT – 0.6km
Esplanade MRT – 0.7km
商场
Capitol Piazza – 0.1km
Peninsula Plaza – 0.1km
Peninsula Shopping Complex – 0.2km
Excelsior Shopping Centre – 0.2km
The Adelphi – 0.2km
Raffles City Shopping Centre – 0.3km
Raffles Hotel Shopping Arcade – 0.4km
Citylink Mall – 0.5km
Esplanade Xchange – 0.5km
Bras Basah Complex – 0.5km
幼儿园
Rosemary Hall Montessori Kindergarten – 0.7km
Kampong Kapor Methodist Church Kindergarten – 1.6km
PCF SPARKLETOTS PRESCHOOL @ KAMPONG GLAM Blk 462 – 1.7km
Foochow Methodist Church Kindergarten – 1.8km
Chinese Kindergarten – 1.9km
小学
Saint Margaret ‘s Primary School – 1.3km
Stamford Primary School – 1.4km
River Valley Primary School – 1.7km
中学
School of The Arts – 0.8km
Outram Secondary School – 1.7km
初级学院
Catholic Junior College – 3.9km
大专
Singapore Management University – 0.5km
Nanyang Academy of Fine Arts – 0.6km
University of Nevada Las Vegas – Singapore – 0.6km
Nanyang Institute of Management – 0.7km
SHRM College – 0.9km
The University of Chicago Booth School of Business – 1.1km
Lasalle College of The Arts – 1.1km
国际学校
Dimensions International College (City Campus) – 1.2km
Swedish Supplementary Education School – 1.7km
Chatsworth International School (Orchard Campus) – 1.8km

Azalea 杜鹃花 - 4室+书房
Azalea(1)户型: 317平方米 / 3,412平方尺
新币 S$12,966,350 起

Camellia 山茶花 - 3室+书房
Camellia户型: 279平方米 / 3,003平方尺
新币 S$11,313,750 起

Daffodil 水仙花 - 3室+书房
Daffodil(1)户型: 285平方米 / 3,068平方尺
新币 S$11,800,000 起

Daffodil 水仙花 - 3室+书房
Daffodil(2)户型: 284平方米 / 3,057平方尺
新币 S$11,764,200 起

Edelweiss 雪绒花 - 4室+书房
Edelweiss(1)户型: 316平方米 / 3,401平方尺
新币 S$13,201,050 起

Edelweiss 雪绒花 - 4室+书房
Edelweiss(2)户型: 313平方米 / 3,369平方尺
新币 S$13,081,950 起

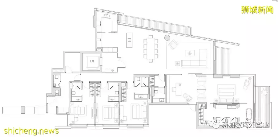
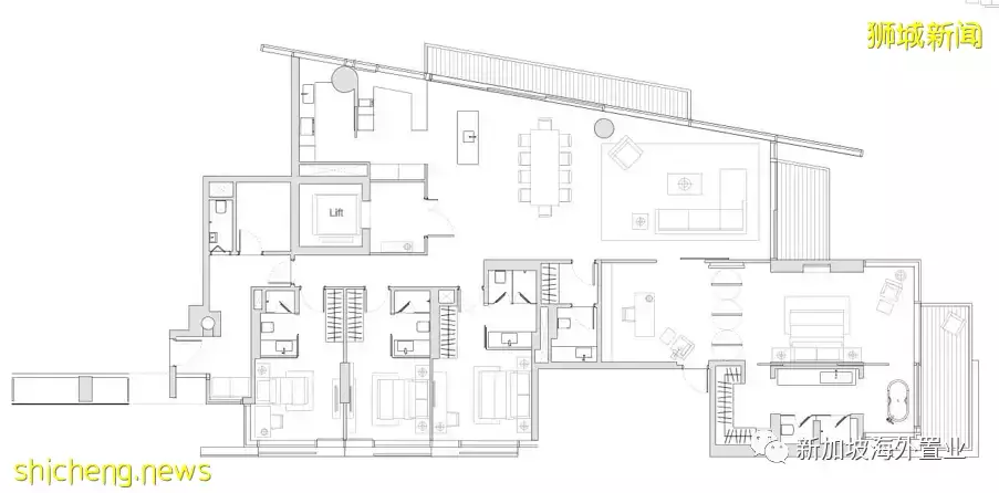
Penthouses - 3室+书房(复式)
Penthouse Begonia户型: 382平方米 / 4,112平方尺
新币 S$17,948,600 起
二楼

一楼

Penthouses - 4室+家庭房+书房(复式)
Penthouse Camellia户型: 539平方米 / 5,802平方尺
新币 S$24,257,900 起
二楼

一楼

小编总结
首都御府处于新加坡的市中心,其稀缺性和超大的室内居住空间及步行可达商业中心的便利性,为该项目带来非常大的投资潜力。尤其是全无遮挡的城市美景和历史建筑造成很强视觉冲击,且作为限量版的超豪华私宅公寓,其舒适的环境,壮丽的景观,也大大的为居住者提升其高贵的身份,这样的豪宅真的是卖一套少一套,且买且珍惜。不管是自居还是投资,首都御府皆是您的不二之选!
置业顾问 Cathy 李小姐
评论