中国富豪一口气买下20套新楼盘!康宁河湾到底拥有怎样的魅力
就在几天前,房地产业内更爆出了一个重磅消息, 来自中国福建的一名神秘富豪一口气买下了康宁河湾(Canninghill Piers)的20个三卧房和四卧房的大户型单位,总交易额估计超过8,500万新元!仅缴付的税金就达到了3,000万新币,据业内人士透露,这名富豪还打算购置多10套单位,使其总交易额恐超过1亿新元!
那么,康宁河湾(Canninghill Piers)究竟有着怎样的魅力,能吸引中国富豪顶着$3,000万印花税还要购买呢?
01 项目简介
康宁河湾拥有99年产权,是由本地最知名的两家开发商Capitaland 和City Development Limited联合开发。预计于2025 年完工。
项目包括了两栋豪华住宅楼,共696个单位,一栋紧邻新加坡河畔,共48层,为新加坡河畔最高的住宅开发项目;另一栋则面向福康宁山,共24层。

02 丹麦建筑师的杰作
康宁河湾由世界著名的丹麦建筑公司BIG-Bjarke Ingels Group 精心打造、当代最具灵感创意的建筑师之一Bjarke Ingels领导。整体的设计灵感是来自几何格子图形,将艺术美感与实用主义融为一体,塑造出了外墙如“薄纱”于不同楼层欣然掀开的艺术性视觉效果,格外惊艳。

整个项目除了由两栋豪华住宅楼组成外,还将拥有由万豪国际以Moxy品牌运营的新概念酒店、盛捷服务公寓(Somerset Serviced Residence)及以超市、餐饮与零售店为特色的康宁(CanningHill Square),成为将住宅、商场、酒店、娱乐等功能集于一体的综合海滨开发项目!

03 优越的地理位置
新加坡河畔的住宅开发一直受到新加坡政府的管控,尤其是克拉码头区域。整条新加坡河畔的现有加上规划中的所有单位,目前共16个楼盘,约3,310套住宅单位,且已无多余的土地可再开发。
康宁河湾(Canninghill Piers)正是处于D06邮区,是克拉码头(Clarke Quay)区域内的一块宝贵的大型商业及住宅用地,土地的有限性赋予了它无可置疑的市场竞争力。

毗邻克拉码头,去乌节路购物街、中央商务区(CBD)等任何地方,仅需10分钟内车程。康宁河湾也建有地下通道直接连接市中心线的福康宁地铁站,距离东北线的克拉码头地铁站,走路也仅8分钟即可抵达。
开车人士,一出项目即可抵达中央高速公路 ,还有多条巴士服务,立体环绕式交通,一站到达全岛。除此之外,该项目也临近多所学校及公园,绝佳的地理位置不仅适用于商业人士投资,同时也适合家庭形式的自住。

04 周边设施
学校
Cambridge @ Robertson - 3分钟
EtonHouse Pre-School Robertson - 3分钟
River Valley Primary School - 5分钟
Outram Secondary School - 4分钟
DIMENSIONS International College (City Campus)- 3 分钟
Singapore Management University – 7 分钟
商场
UE Square – 2 分钟
The Central – 3 分钟
The Central Mall – 2 分钟
Funan The Digital Mall – 3 分钟
公园
福康宁公园 - 4 分钟
银禧公园 - 2 分钟
山麓 - 1 分钟
05 高档的公寓配置
康宁河湾拥有多种户型供其选择,从441平方英尺的1-卧室单位,到1,130平方英尺的3-卧室单位,甚至到2,788平方英尺的5-卧室优质单位,都深受大众喜爱。而所有单位都配备了意大利设计与制造的Ernestomeda厨房橱柜、Miele和De Dietrich的高级品牌厨房电器以及Gessi和Laufen的知名品牌浴室设备。

此外,康宁河湾为每一户都设有智能家居系统,让您轻松使用手机就可远程遥控设备,轻松就能体验科技所带来的无限便利,享受美好生活。

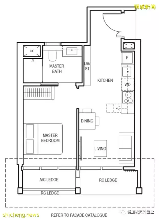
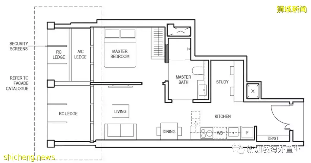
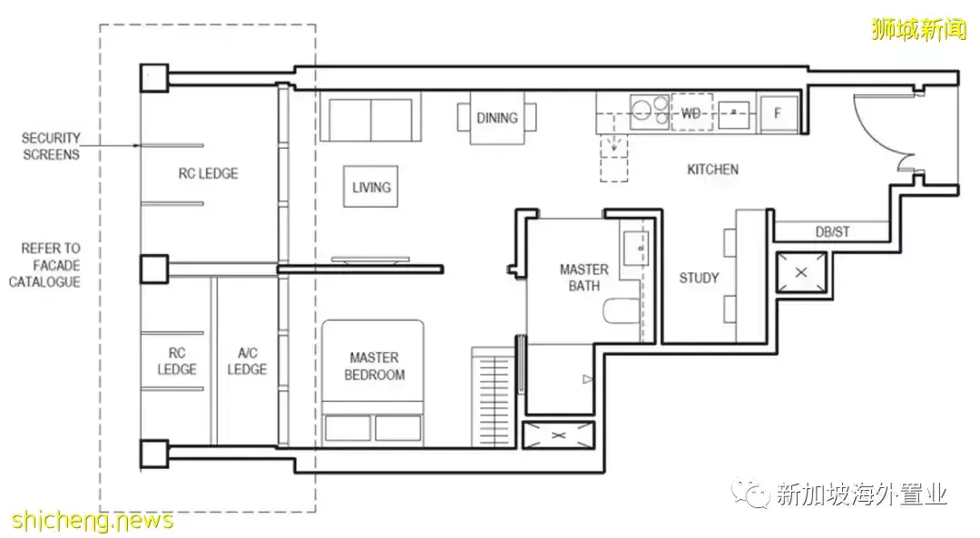
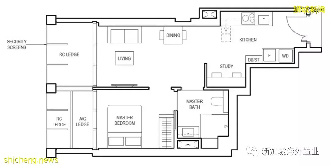
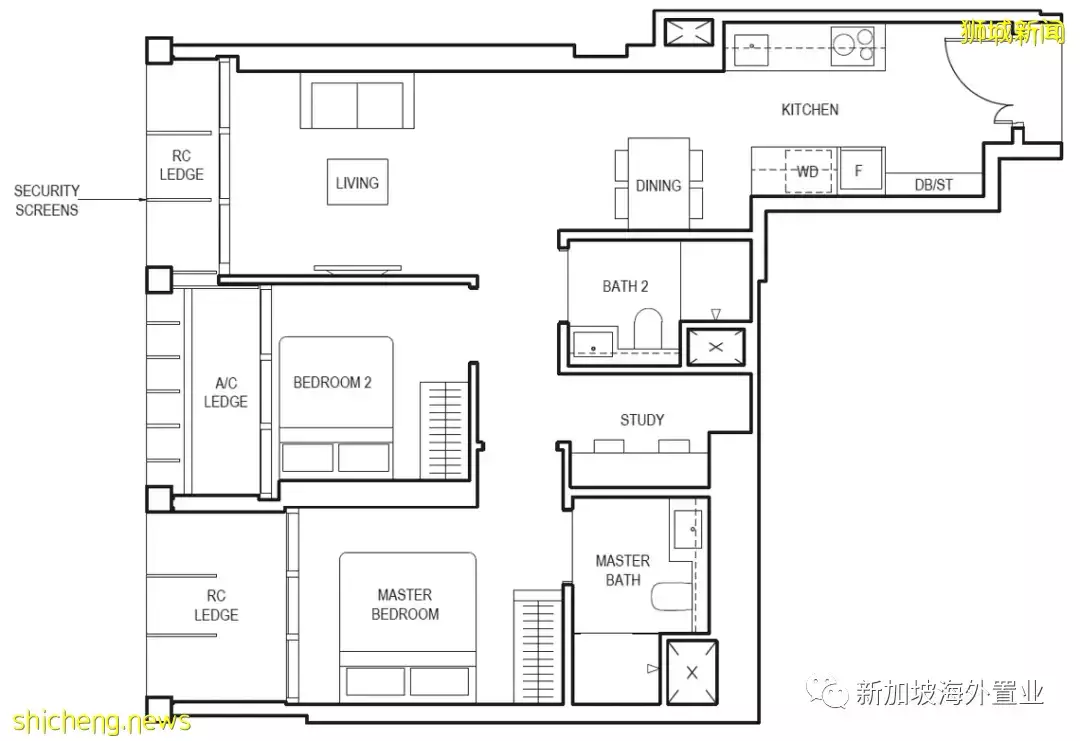
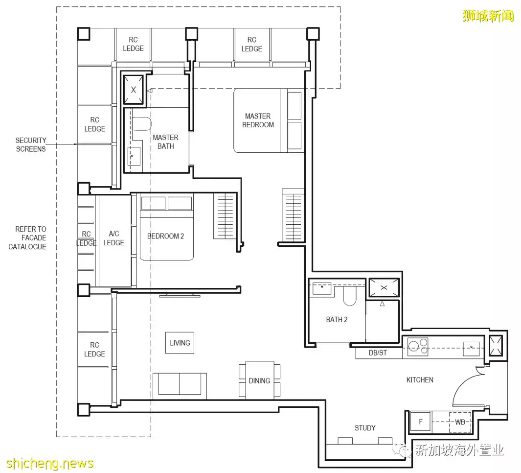
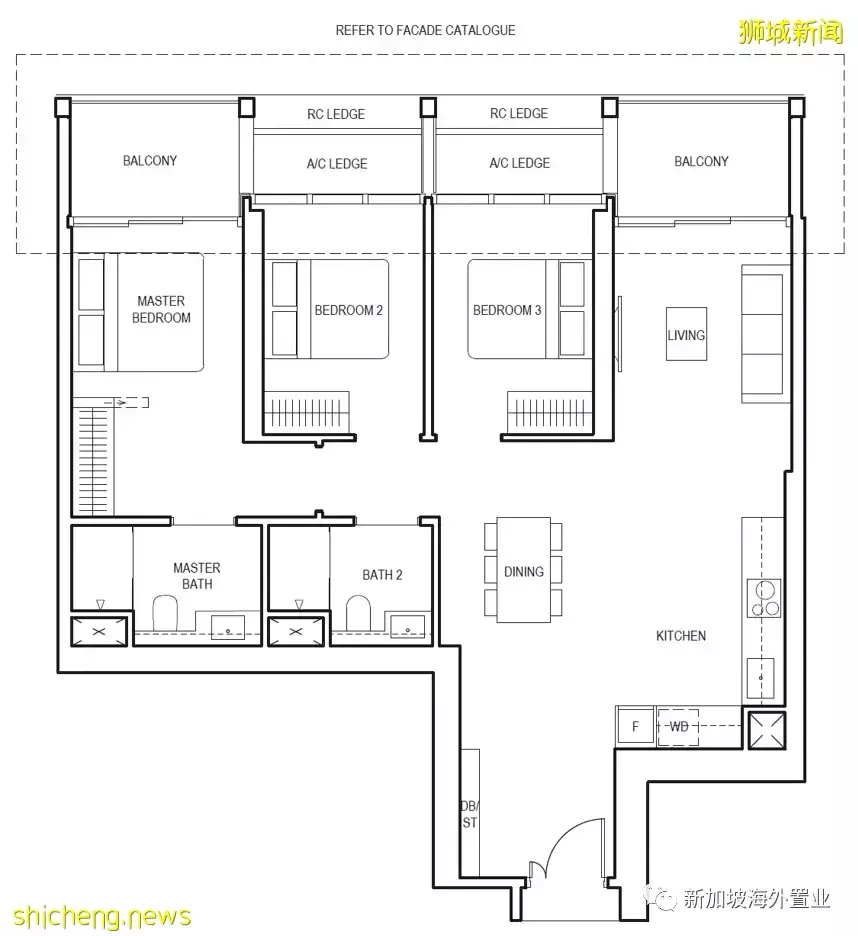
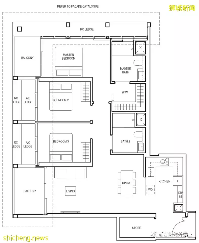
06 现有户型
数 量 有 限
综合项目在市场上供应非常有限,且好的项目大家有目共睹,目前康宁河湾的696个住宅单位中仅剩54单位(约8%), 数量有限!错过将不再复返。

1室
新币 S$1,538,400 起
A2户型 1室 441平方英尺/41平方米
25%首付:S$384,600 / 75%贷款:S$1,153,800
30年贷款,2%利息,月供:S$4,265

1室+书房
新币 S$1,670,400 起
AS2户型 1室+书房 484平方英尺/45平方米
25%首付:S$417,600 / 75%贷款:S$1,252,800
30年贷款,2%利息,月供:S$4,631

1室+书房
新币 S$1,678,400 起
AS3户型 1室+书房 484平方英尺/45平方米
25%首付:S$419,600 / 75%贷款:S$1,258,800
30年贷款,2%利息,月供:S$4,653

1室+书房
新币 S$1,763,200 起
AS4户型 1室+书房 506平方英尺/47平方米
25%首付:S$440,800 / 75%贷款:S$1,322,400
30年贷款,2%利息,月供:S$4,888

2室+书房
新币 S$2,305,600 起
BS1户型 2室+书房 732平方英尺/68平方米
25%首付:S$576,400 / 75%贷款:S$1,729,200
30年贷款,2%利息,月供:S$6,391

2室+书房
新币 S$2,383,200 起
BS2户型 2室+书房 797平方英尺/74平方米
25%首付:S$595,800 / 75%贷款:S$1,787,400
30年贷款,2%利息,月供:S$6,607

2室+书房
新币 S$2,305,600 起
BS2a户型 2室+书房 829平方英尺/77平方米
25%首付:S$576,400 / 75%贷款:S$1,729,200
30年贷款,2%利息,月供:S$6,391

3室
新币 S$3,392,000 起
C2户型 3室 1,130平方英尺/105平方米
25%首付:S$848,000 / 75%贷款:S$2,544,000
30年贷款,2%利息,月供:S$9,403

3室
新币 S$3,520,000 起
C3户型 3室 1,259平方英尺/117平方米
25%首付:S$880,000 / 75%贷款:S$2,640,000
30年贷款,2%利息,月供:S$9,758

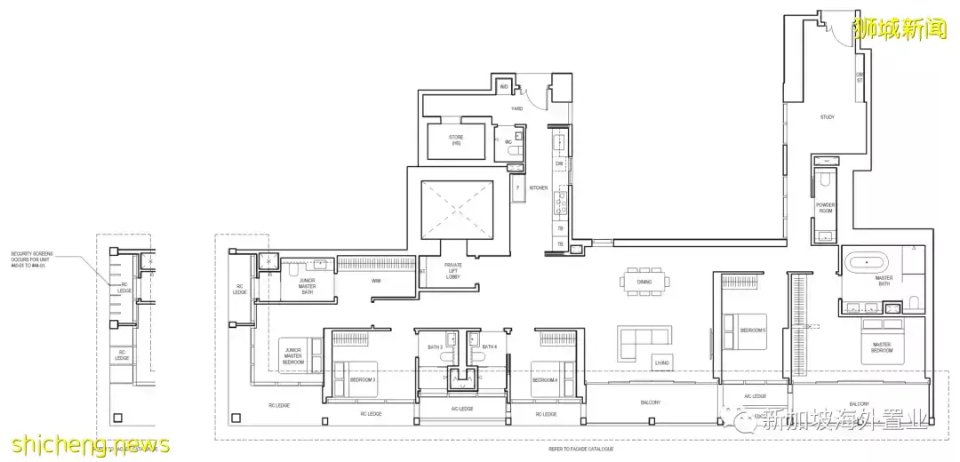
4室高级
新币 S$5,600,000 起
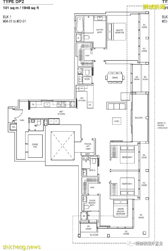
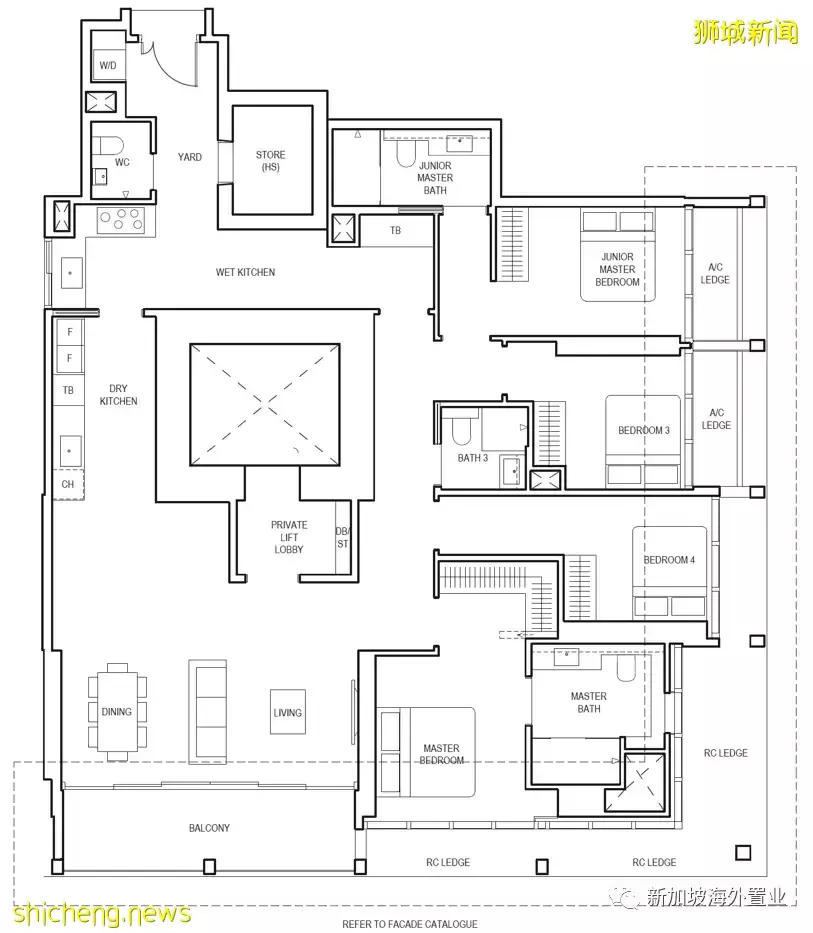
DP2户型 4室 1,948平方英尺/181平方米
25%首付:S$1,400,000 / 75%贷款:S$4,200,000
30年贷款,2%利息,月供:S$15,524

4室高级
新币 S$5,432,000 起
DP3户型 4室 1,959平方英尺/182平方米
25%首付:S$1,358,000 / 75%贷款:S$4,074,000
30年贷款,2%利息,月供:S$15,058

5室高级
新币 S$8,528,000 起
EP1户型 5室高级 2,788平方英尺/259平方米
25%首付:S$2,132,000 / 75%贷款:S$6,396,000
30年贷款,2%利息,月供:S$23,641

天空套房5室
新币 S$12,800,000 起
SS1户型 5室 2,874平方英尺/267平方米
25%首付:S$3,200,000 / 75%贷款:S$9,600,000
30年贷款,2%利息,月供:S$35,483

天空套房5室
新币 S$17,800,000 起
SS2户型 5室 3,972平方英尺/369平方米
25%首付:S$4,450,000 / 75%贷款:S$13,350,000
30年贷款,2%利息,月供:S$49,344

小编总结
康宁河湾(Canninghill Piers)具备了黄金地段,景色绝佳,智能设备,时尚奢华,务实便利等优越条件,且能吸引到中国富豪一次豪买20个单位,可见其魅力所在。
最后,引用网络的一句名言:有些东西,错过了就是一辈子!而康宁河湾也是如此!别让未来留下任何遗憾!
置业顾问 Cathy 李小姐
评论