荷兰村大转型,第10邮区永久地契,永久地契只需99年地契价格
项目介绍:
让人触动心弦的精品高档私宅,位于中央核心区第10邮区,属于稀缺的永久地契,8-10分钟步行到荷兰村地铁站,距离乌节路购物街只需约5-6分钟车程,设中央商业区滨海湾约15分钟车程。总共319个精心设计单位供您选择,分布于6栋12层楼高的住宅大楼,其中5栋楼每层只有4户,每层两个电梯服务四个单位,通常要豪宅大户型项目才会有这样设计,拥有自然通风的厨房和卫生间,宽敞的横向客厅和餐厅,保证客厅采光佳的同时,让美景尽收眼底。

Hyll on Holland延续了新加坡植物园的风格,营造了绿意盎然的园林景观设计,让您如处于静谧花园的豪宅,把房子融入山水之中。既让您感受心灵的安逸自在,温馨中弥漫着低调的奢华。

户型分布:

卓越的地段的永存价值
项目位于荷兰村的优质洋房区GCB附近,作为新加坡最高等级的别墅区,住这一代的人非富即贵,居住于这一带是财富和身份的象征。新加坡寸土寸金,政府只售99年地区的住宅地块,永久地契地块属于稀缺品,市场上供应越来越少,物以稀为贵,永久地契项目就如股票中的蓝筹股(如苹果、腾讯、阿里巴巴等),长期保值增值,值得您长期持有,可以传承给您下一代。
第10邮区向来是高档私宅买家青睐的地区
荷兰村,武吉知马-富人聚集区所在地,就是我们常说的“富人区”,周围是新加坡最高等级的别墅区优质洋房为主(GCB),住这一带的名人如发展商大亨、政商界人士、功夫巨星李连杰、全球知名投资家罗杰斯(携妻女已移民新加坡)、新加坡国宝级歌手孙燕姿、新加坡的名牌包收集女王蔡欣颖等,周围环境清幽,低密度住宅区,喜欢注重隐私的朋友们最爱的地点之一,特别受来自我们国内的高净资产人士欢迎。荷兰村是外籍人士喜欢逗留的地方,聚集各类传统和现代美食、酒吧等。


政府规划大转型荷兰村
除了荷兰村地铁站现有熟食中心、菜市场、银行分行、餐馆林立、酒吧等,市区重建局2019年重新规划荷兰村地铁附近地块的土地用途,荷兰村地铁站一带大型地块打造为综合项目,包括公寓、写字楼、商场、服务型公寓等,集娱乐、工作、餐饮、购物等功能于一体,等项目建好后,进一步提高这一带居民生活便利性、舒适性,带给这一带的住户们更丰富活跃的社区生活。

靠近新加坡首个世界文化遗产-植物园,植物园可以是您的后花园,里面的景点有天鹅湖、小白亭、国家胡姬园、学习森林、交响乐湖、亚洲最大儿童花园等,新加坡植物园是网红打卡地,连亲民的李显龙总理有时都带孙子来游玩,周末遛娃、朋友聚会、小孩户外锻炼、户外徒步的好去处。


邓普西山是约朋友们喝下午茶和晚餐聚会的好去处,有很多特色的餐馆、咖啡馆和歌手驻唱酒吧,如中餐、西餐、日本餐、意大利餐、知名的PS咖啡馆和知名海鲜餐馆等,如果您想远离新加坡生活的忙碌喧嚣,想要以非常特别的方式庆祝这个特殊的日子,我绝对推荐您考虑去邓普西山Dempsey Hill,约朋友们一起去酒吧喝点小酒,听听驻唱歌手的美妙音乐,特别有气氛,懂得享受慢节奏生活。

平面图介绍:
设计师大胆采用大柱子加高的设计,住宅楼挑高11米多,2楼的实际高度有16米多,也就是说,2楼相当于5~6层的层高
每栋之间巧妙的错开,5栋是每层四户单位,很少有项目可以做到这样设计哦,无阻挡,确保每个单位视线好,隐私更好,多达41个公寓配套设施,让您下班之余或周末可享用公寓设施

客厅采用大理石地板和房间实木地板黄金组合,厨房器具均来自德国高端品牌美诺Miele,而厨具和卫浴采用德国高端品牌汉斯格雅Hansgrohe和德力菲Duravit等大牌,为您提供更高的生活品质保障。

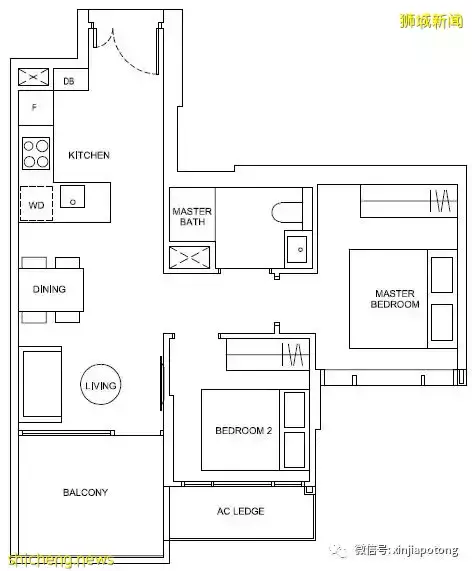
户型图介绍:
2卧室,57平方米/614平方英尺,价格161.8万新币起(低总价)

2卧室,53平方米/570平方英尺,价格162.6万新币起,12楼高层(低总价)

2卧室,65平方米/700平方英尺,价格181.2万新币起,层高达2.9米,哑铃户型(节省走廊空间),两个房间分居客厅两侧,居然是明厨明卫,户型设计高效

3卧室,87平方米/936平方英尺,层高达2.9米,现在价格248.8万新币起,哑铃户型(节省走廊空间),节省出房间走廊面积,明厨明卫,户型设计高效

3卧室+书房,98平方米/1055平方英尺,原价287.04万,促销价263.4万,哑铃户型(节省走廊空间),节省出房间走廊面积,干湿厨房分区,透明玻璃厨房,有效保障厨房采光,户型设计高效

大量的储藏收纳空间



豪华大气的会所,上下车停靠点带遮盖屋顶,方便下雨时上下车,细节到位

漂亮的流水瀑布设计

50米无边游泳池

大客厅享受无阻挡优质洋房美景



项目点评:
由于该地块是荷兰村一带买地成本最低的,预计发展商会给出合理的定价,吸引有兴趣的买家们进场,小区漂亮绿化园林设计,高效的户型设计,采用清一色德国高品质的品牌,中央核心区新项目价格在$2700~4500/平方英尺,现在最新促销活动价2478/平方英尺起,对于一个中型永久地契项目来说,会是非常好的入场价格
评论