新加坡东海岸又开新楼盘,与历史洋房为邻!值得入吗
新加坡的富豪们都在哪里买房?武吉知马?
其实,东海岸一带的蒙巴登 (Mountbatten),早在19世纪50年代,就深受富商和种植园主青睐。

他们在这里修建海边别墅,形成了新加坡首个百万富翁海滨别墅群(Millionaires' Row) 。其中还有几栋标志性的一直保留至今,成为历史保护建筑。

如果有机会住在这样的福地,会是什么感受?
最近,新加坡知名开发商万国公司(Bukit sembawang estates)就在这里打造了一个新楼盘——[email protected],又叫丽福苑。

[email protected]位于新加坡东部第15邮区,蒙巴登路和阿德路的交界处,拥有99年产权。

占地140,000平方英尺的土地上,其中80%是绿化,20%才是住宅楼。
一共打造了298套住宅,户型主要有1房到4房豪华等多种,适合各种大小家庭。

话不多说,先来看个视频了解下吧!
交通便利
住在[email protected],最便利的出行方式便是加东公园 (Katong Park) 地铁站,预计2023年开放使用,走路3分钟就能到。

到时候可以搭乘汤申-东海岸线(TEL),5站就能到滨海湾 (Marina Bay),6站地铁就能到中央商务区的珊顿道 (Shenton Way)。

然后还有地铁环线的蒙巴登 (Mountbatten) 地铁站,距离900米,也可以搭乘公寓旁边的巴士,2站就能到。
如果是有车一族,就更方便了,旁边就有快速路KPE、ECP以及MCE。
环境与设施
到底是花园城市的豪华公寓,占比80%的绿化,从平面图上就能感受到这满眼的绿。

[email protected]的会所,打造了5个独特的凉亭,灵感来自于附近沿着海岸线的“别墅群”。


蒙巴顿厅是其中的主要场馆和多功能厅,结合餐厅和按摩泳池使用,就能随时开一场派对。

除了主泳池以外,20楼还有一个屋顶泳池,可以一边畅游,一边欣赏壮阔的城市天际线。


如果想要外出,2分钟车程就是东海岸公园,可以与家人朋友沿着海岸线骑骑自行车。

4分钟车程就能到新加坡体育中心,7分钟就能到滨海湾公园,所有的地标建筑都在附近,仿佛成了你家后花园。
便利
日常生活购物,你可以去百汇广场(Parkway Parade)、加东村(Katong V)以及Kallang Wave Mall等。

对于有孩子的家庭,[email protected]周围的学校资源非常充足。1公里范围内光华小学、丹绒加东小学、中正中学 (总校)和德明政府中学等。稍微再远一些,还有道南小学、义安小学和圣婴女校(加东)等。

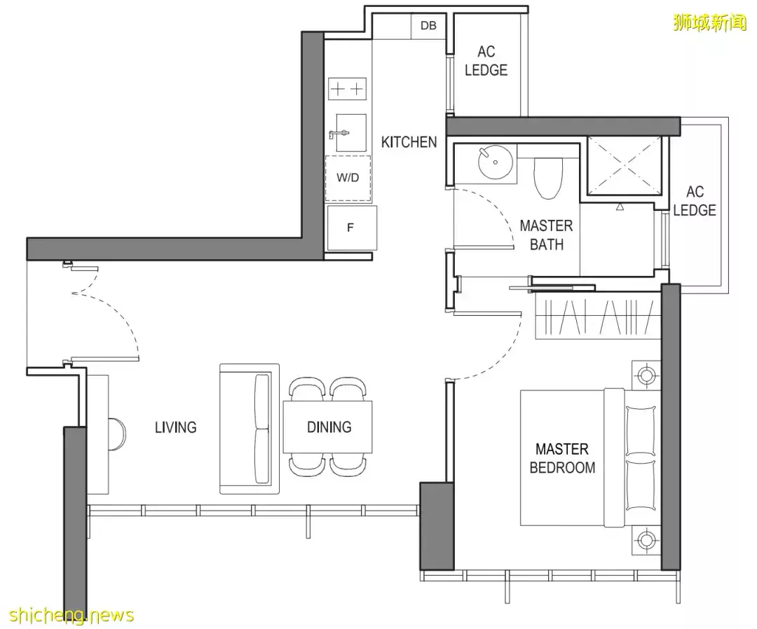
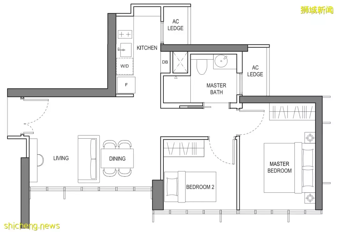
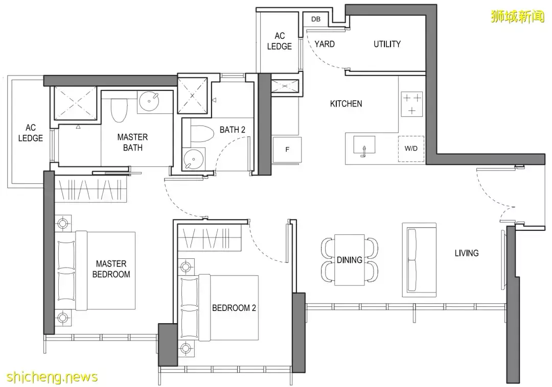
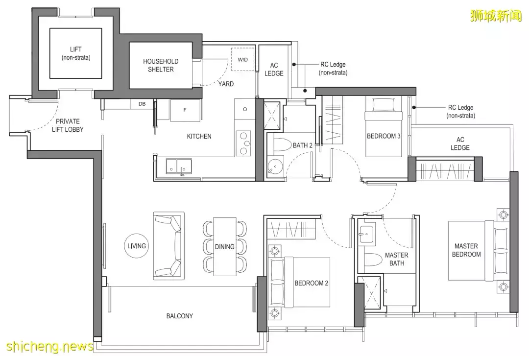
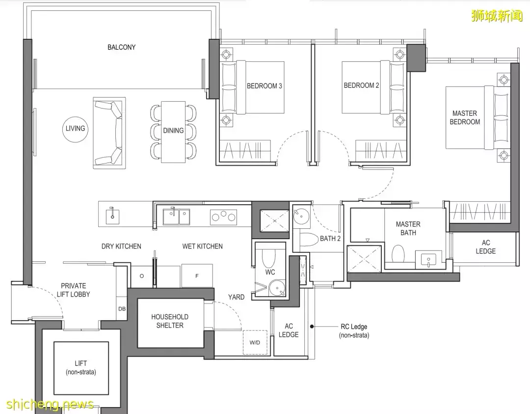
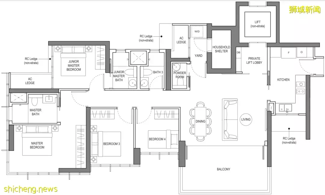
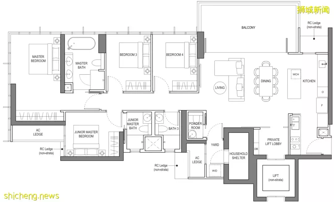
最后再来看看这个楼盘有哪些户型:
1卧房单位

2卧房单位

2卧房豪华单位

3卧房单位

3卧房豪华单位

4卧房单位

4卧房豪华单位

这个楼盘最近已经开放预览,目前给出的指导性售价是从一卧房单位的108万新币到四卧房豪华单位的363万新币不等。
东海岸黄金地段的豪华公寓,你心动了吗?
评论