房产信息 Piccadilly Grand (鑫丽嘉园) 介绍
Piccadilly Grand (鑫丽嘉园) 是由城市发展(CDL)和 MCL地产(MCL Land)联合发展的99年地契住宅项目。它位于诺森伯兰路(Northumberland Road),新加坡第8邮区。项目有三座各23层楼高的公寓大楼,共407个单位。项目还包括1万6146平方尺的餐饮和零售商场鑫丽坊(Piccadilly Galleria),同时还有衔接花拉公园地铁站的通道。其地理位置位于新加坡市中心,步行即可到达各种生活便利设施,开车到中央商业区和乌节路都很近。
项目资料
地址:诺森伯兰路1号(1 Northumberland Road),新加坡邮编 219568
地契:99年(2021年8月2日起)
占地面积:约 8732 平方米
开发商:城市发展(City Developments Limited)和 MCL地产(MCL Land)联合发展
单位数量:407个单位
楼盘描述:三座各23层楼高的公寓大楼
户型:1卧房至5卧房
公寓设施:游泳池、健身房、会所等
预计2026年8月2日取得临时入伙证
公寓位置
地铁站
花拉公园地铁站(0.3公里)

徒步4分钟至花拉公园地铁站
花拉公园地铁站营运的是东北线
从花拉公园地铁站, 住户只需往港湾地铁转换站乘搭1个地铁站就可以抵达小印度地铁转换站,该地铁转换也有营运滨海市区地铁线
往同样方向,两个地铁站就可以抵达位于乌节的多美歌地铁转换站, 住户可以在那里转搭到环线和南北线
驾车
中央高速公路(CTE)
4分钟车程抵达城市广场/慕斯达法购物中心
8分钟车程抵达劳明达地铁站
9分钟车程抵达乌节路/武吉士地铁站/白沙浮商业城
12分钟车程抵达来福士城购物中心/风华南岸/新加坡体育城
13分钟车程抵达新达城
15分钟车程抵达滨海湾金沙
17分钟车程抵达中央商业区
20分钟车程抵达滨海湾高尔夫球场
附近的马里士他路可以轻松连接到中央高速公路(CTE)
商场
慕斯达法购物中心(0.4公里)
城市广场(0.5公里)
The Verge (0.7公里)
森林商业中心(0.8公里)
雅柏中心(0.9公里)
大华广场(1.2公里)
武吉士村(1.2公里)
Bugis+购物中心(1.2公里)
PoMo购物中心(1.3公里)
诺维娜广场(1.4公里)
教育机构
小学
华苑小学(0.2公里)
史丹福小学(0.9公里)
圣玛格烈小学(1.1公里)
圣若瑟书院(附小)(1.1公里)
宏文学校(1.3公里)
英华学校(附小)(1.3公里)
博理小学(1.9公里)
明智小学(1.9公里)
中学
新加坡艺术学院(1.3公里)
明智中学(1.7公里)
博理中学(1.8公里)
初级学院
圣安德烈初级学院(2.7公里)
大学
南洋艺术学院(1.2公里)
国际学校
英仕学院(0.7公里)
采士华国际学校(乌节校园)(1.7公里)
环球印度国际学校(马里士他校园)(1.9公里)
公寓规划图


鑫丽嘉园有三座各23层楼高的公寓大楼,共407个单位。户型包括1卧房(45平方米),1卧加书房(45平方米),2卧房(60平方米),2卧加书房(63平方米),3卧房(82平方米),3卧加通用房(100平方米),4卧加通用房(131平方米),4卧房双钥匙(128平方米),5卧房(147平方米)和5卧房优质(156平方米)。
鑫丽嘉园的整体环境设计属于现代与自然结合的风格,致力于让每个住户都能在家就享受到非同一般的景色的氛围。来自 5 个精心策划的生活方式区,3 个层次的活动,3 个俱乐部会所以满足各种生活方式。
公寓的内部设施也一应俱全,为住户们提供了能健身、放松、小聚等多种休闲娱乐的场所,包括无边泳池、水疗休息室、健身房、花园、多功能室和烧烤区。园区内自然景观丰富,绿植、花卉和水景错落有致,完美地诠释了都市绿洲的设计概念。
公寓设施包括:无边泳池、水疗休息室、健身房、花园、多功能室、烧烤区等

餐饮和零售商场-鑫丽坊
(包括500平方米的托儿中心)

会所

水疗泳池

社交会所、家庭泳池

户外烧烤亭、泳池

餐厅
公寓单位




宽敞空间
现代落地窗设计让室内采光充足又明亮
房间内也配备整套的绿色功能和智能家居设施(智能空调遥控、智能数码锁等),不仅环保节省能源
装修的色彩搭配也美观舒适
平面图
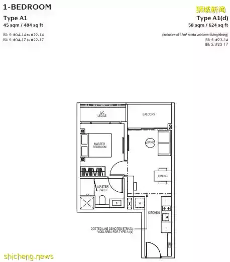
1卧房(Type A1 484平方尺)

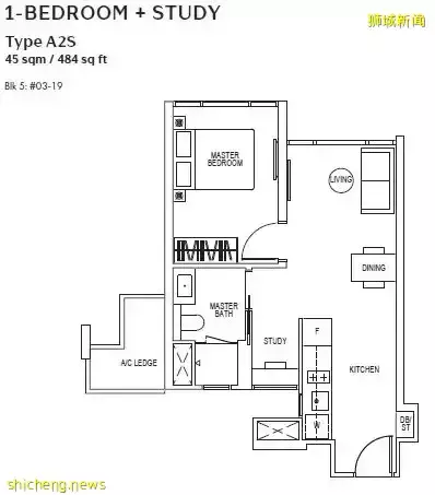
1卧+书房(Type A2S 484平方尺)

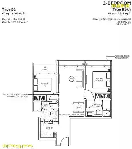
2卧房(Type B1 646平方尺)

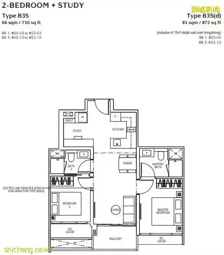
2卧+书房(Type B3S 710平方尺)

3卧房(Type C1 883平方尺)

3卧+通用房(Type C2 1,076平方尺)

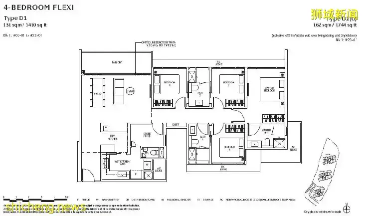
4卧+通用房(Type D1 1,410平方尺)

4卧房(双钥匙)(Type D2DK 1,378平方尺)

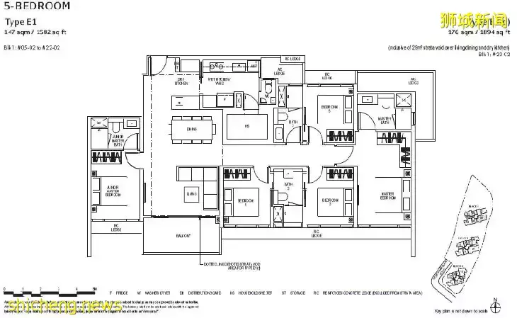
5卧房(Type E1 1,582平方尺)

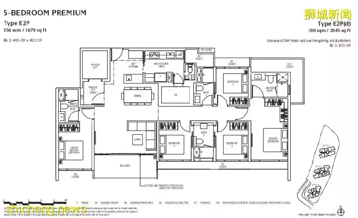
5卧房(优质)(Type E2P 1,679平方尺)

*更多平面图请参阅项目官网
公寓价格


*价格以官方发布为准
预约看房

鑫丽嘉园5月7日正式推出
已经卖出77%单位
为什么选择 Piccadilly Grand (鑫丽嘉园) ?

地处新加坡黄金地段
著名开发商CDL与MCL联合开发,品质保证
一楼商业空间(零售/餐饮/幼儿中心)
交通极为便利,与花拉公园地铁站直接相连
9分钟车程抵达乌节路
短车程内到达滨海湾金沙和中央商业区
名校林立
完整的公寓设施
智能家居
豪华名牌电器用品与装置
良好的租赁潜力
适宜投资及自住
微信联系我们
评论