新加坡版凡尔赛,超级豪宅项目 柏皓,高净资产人士选择,稀缺大平层永久地契,花园和建筑融为一体
地理位置介绍
柏皓(Park Nova)位于汤林生路18号,坐落新加坡黄金地段,第10邮区乌节林荫道,新加坡最尊贵的三大街区之一,毗邻新加坡著名乌节路购物街,各种餐饮、名牌旗舰店应有尽有, 靠近兴建中地铁站Orchard Boulevard MRT,预计2023年开通,步行只需3分钟,等地铁开通后,将会更近一步提高交通便利性。共21层,独立式户型极好的保证每个单位的隐私,同时让每个屋主270度欣赏城市景观。

国际著名武打巨星李连杰、金融大鳄罗杰斯Jim Rogers、英国首富戴森(Dyson老板)、著名歌星孙燕姿、新加坡爱马仕一姐Jamie Chua等,很多新加坡本地知名企业家都以公民身份购买第10邮区的优质洋房(最高等级洋房GCB),价格范围2000万到上亿新币不等,可见第10邮区受很多国内外富豪和社会名流欢迎,很多来自国外富豪和新加坡本地富豪喜欢定居新加坡第9和第10邮区,新加坡最好的两个邮区,就是高净资产人士们和地产经纪们常说的中央核心区。

Facebook脸书创始人萨维林、明星赵薇、阿里创始人之一孙彤宇 都在阿摩园买了豪华顶层单位

毗邻乌节路商圈
步行距离就可到达乌节路购物街,乌节路购物街是全球10大购物街之一,如商场[email protected],义安城(Ngee Ann City),董厦(Tangs),伊势丹(ISETAN),威士玛(Wisma),喜欢购物的朋友必去之地,也是很多来自国外游客必经之地,什么名牌包包,名牌手表,名片香水,珠宝,时尚潮流名牌服饰等,应有尽有!可以随时享受逛街给您带来的快乐,女性朋友的最爱的逛街购物,买买买…

项目介绍:
柏皓的项目定位为超豪宅项目,发展商大胆的采用的稀缺大平层户型设计,户型包括2+书房,3+书房,4+书房,总共54个单位,有3个顶层复式单位,250米步行到2022年初开通的乌节林荫道地铁站(Orchard Boulevard MRT),700米步行到乌节路地铁站/购物街。
指导价格:
发展商给的指导价格为$4050/平方英尺起,旺旺集团主席蔡衍明与儿子以将近3亿新币,支付大数目的额外印花税(ABSD),在乌节路地段住宅区,一口气买下整栋20层豪华公寓(EDEN)的全部20个单位,单价$4827/平方英尺,2007年开盘的[email protected] Hill成交单价是$5000/平方英尺,到2011年成交单价超过$6000/平方英尺,新加坡的豪宅市场价格明显比伦敦、香港、上海低,香港的豪宅价格超过$10000/平方英尺,

设计理念:
柏皓是由屡获殊荣的伦敦PLP建筑事务所和新加坡著名的P&T建筑事务所联合设计,景观设计由ICN Design量身打造,参与的豪宅项目如风华南岸府,滨海盛景豪苑、地标项目星耀樟宜等,主体设计概念旨在让业主更接近大自然,项目采用了宽阔的户外空间,采光天然充沛,每一层公寓都设有花园,花园部分不计算在房子面积里,让您的房子在花园里,加上高级奢华的私人会所。每个单位都有独立的墙面,不用担心隔壁邻居噪音、装修房子事情,让每个业主有更好的隐私。

柏皓将自然景观融了21层高的楼宇,垂直花园设计有助于空气流通,避免过度使用空调和灯光,阳台采用弧度设计,让业主270度欣赏壮丽广阔的新加坡城市景观。

信德行政主席兼董事长何超琼表示,非常高兴集团首次在新加坡引入一种崭新的住宅概念,该项目荟萃了信德集团在旅游方面的经验,打造住宅和绿化为一体的超豪宅项目,为购房者在大都市生活谱写新的定义。
根据了解,信德集团在新加坡先后购入了两个住宅项目和一个商业发展项目,其中包括卡斯加登路的一座五星级酒店,投资彰显信德集团对新加坡的房地产市场的信心,也为集团未来在该地区的发展奠定了坚实的基础。

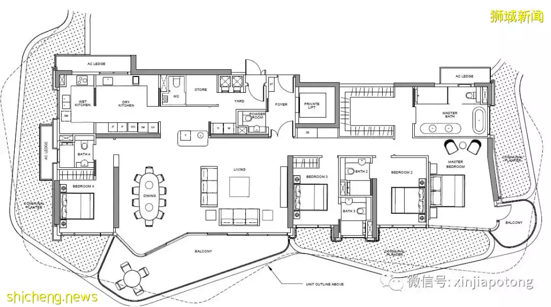
户型介绍:
2+书房,133平方米,大气横厅设计配大阳台,客厅餐厅分区,私人电梯入户,价格586.8万新币起

3+书房,205平方米,大气横厅设计,客厅餐厅分区,私人电梯入户,每个房间配独立卫生间,主卧配衣帽间和浴缸,U型大厨房,价格976.6万新币起

4+书房,270平方米,大气横厅设计,客厅餐厅分区,私人电梯入户,每个房间配独立卫生间,主卧配U型衣帽间和浴缸,U型大厨房,价格1349.3万新币起(只剩最后2套)

宽敞大气的小区入口

豪华的大堂,从预订私人公寓设施到米其林餐厅预订,全方位提供优质礼宾服务

25米游泳池

厨房配备世界一流的品牌电器,让喜欢烹饪的屋主大展厨艺

空中健身房,让您享受先进设施同时,欣赏城市景观
空中休息室,举办社交私人晚宴的理想场所

大玻璃窗设计让您欣赏新加坡广阔的城市景观,保证客厅采光佳




评论