新加坡八大类型精品设计考察
景观邦设计考察自2016年至今,已成功出行百余期,涵盖全球主要城市及地区,国际路线如英国、法国、新加坡、泰国、越南;国内有台湾、重庆、成都、杭州、苏州、北京、上海、广州、深圳、宁波、贵阳、昆明等城市;其中国内及新加坡平均每三周出行一次;泰国除随机公开招募行程,几乎每周都有接待定制团体,是国际设计考察公认做得最好的平台。欢迎大家参与支持!

景观邦部分游学合影
新加坡是赤道上唯一的发达国家
因其高效的规划与闻名遐迩的地标景观
成为各国 “设计人” 学途上的必经之地
豪宅、建筑、酒店
设计风格独树一帜
让我们再次出发
去感受设计带给这个城市的美好
新加坡顶级设计考察
时间:
2019年10月18日—20日
(周五-周日)
行程特点:
2019最新建筑景观项目+10大顶级豪宅参观考察

现在报名享更多优惠
详情请见文末
报名咨询请联系师先生 18620307654(微信同号)
更多项目考察欢迎定制
行程亮点一
十大最新豪宅公寓参访
Meyer House(预约中)
景观:戴水道 | 建筑:WOHA | 室内:雅布
打造Meyer House的三大设计机构分别是:建筑设计由新加坡WOHA公司负责,其联合创始人为著名建筑师Wong Mun Summ;室内设计由纽约和多伦多公司Yabu Pushelberg担纲;景观设计则由德国跨国设计和工程公司Ramboll Studio Dreiseitl(RSD)承揽,打造的是“热带风情英伦景观花园”。











琥珀斯公寓售楼处 Amber Park
建筑:SCDA
琥珀斯公园位于新加坡东海岸是新加坡新建住宅项目中少数永久地契项目,SCDA秉承建筑、景观和室内一体化的设计原则对项目以及售楼处进行全方位覆蓋。





Nouvel 18 (名筑)建筑:让.努维尔


Nouvel 18 (名筑) 是由新加坡城市发展集团(CDL)所开发的永久地契住宅项目。

Nouvel 18 (名筑) 是由荣获普利策建筑大奖的法国建筑名师努维尔(Jean Nouvel)所设计。秉承高度原创又具有强烈自我风格,名筑绝对是时尚与多元的经典典范。项目包括2栋36层高的建筑,共有156套豪华私宅单位,是融合自然与都会脉搏的时尚活力建筑。



八个瞩目的空中露台花园坐落在两栋住宅大楼之间,形成了一系列主题的生活花园:

10楼的绿荫瞭望台,11楼的养心轩、健身房,14楼的休闲水上乐园、健身泳池和美味餐厅,19楼的天台植物园,24楼的静思园,提供住户极致奢华的休闲康乐设施。

其他设施包括:网球场、烧烤亭、游泳池、按摩池、儿童游乐场等等

The Riviere豪宅
建筑:SCDA
The Riviere(瑞雅嘉苑)公寓集现代与传统风格于一体,在保留整体性的同时也实现了个性化居住,使居民不仅能享受到市中心便捷、现代的生活方式,还能体验到大自然的静谧。

The Riviere是一个罕见的混合开发项目,两座36层高的住宅楼、服务式公寓和3大仓库形成一个整体。

FCL新加坡最大的房地产公司,邀请了世界级新加坡本土事务所SCDA完成整个项目的塑造,这里原先是克拉码头最负盛名的zouk俱乐部!

创意表现

空中规划

项目总规划



木饰面幕墙

左右摆动的木格栅

豪宅的入户大堂

大堂内的阅读区

空中泳池
SCDA的室内一直也是业界争相学习的标杆,在The Riviere的室内表现中,可用“惊艳”二字形容,内敛的精致感自有一股雍容华贵的气质。



The Crest(嘉御苑)
景观:STX 建筑:伊东丰雄
嘉御苑所在地段傲视新加坡东陵区与大使馆区域。小区建筑由普利策克建筑设计大奖获得者伊东丰雄操刀设计而成,小区由3栋23层高的塔楼和4栋5层高的低层建筑组成。花开盛放的设计概念是将周围自然环境的完美诠释,小区外部河道步道直通新加坡滨海湾,为小区内部打造以水景观为概念依托的同时也意在为居住者营造健康的生活理念。









Twenty One Angullia Park 安哥烈园21号
景观/建筑/室内:SCDA




Twenty One Angullia Park在高层住宅中引入了空中露台这一做法,使地面景观得以摆脱来自地面层公共空间的限制。

入口区域内绿色景观的增加,为到访客人营造出一种更正式的景观体验。



除了高层住宅内建立的公共区间,塔楼内部的空隙也进一步引入了自然绿色景观。


新加坡吉宝湾丽珊景住宅
景观:ICN 建筑:Daniel Libeskind
吉宝湾丽珊景位于新加坡岛屿南部海岸中心与圣淘沙岛隔海相望,这里是吉宝集团在吉宝湾中最新的一组低密度住宅。Daniel Libeskind 再次受邀为吉宝集团这一珍贵地块操刀,延续他对空间与自然的独特理念将建筑形态和立面与周围自然景观相融合。小区后门的滨海步道分别连接VIVO City 、圣淘沙岛和拉柏多自然保护区,住户同样免费享受吉宝湾俱乐部会员制和私家游艇的尊贵停泊服务。







3 Orchard by the park
建筑/室内:安东尼奥.奇特里奥
3 Orchard by the park 位于新加坡乌节路林荫大道上,比邻新加坡乌节路和大使馆区。这也是宝格丽集团的御用设计师奇特里奥在东南亚第一个住宅项目,不仅整体设计实现了他对于“天空之城”的设想而且每个单位的家具全部使用意大利品牌,同时也将他自己的产品设计融入其中,对空间方位、自然采光、动线等都进行严格把控,让住户置身艺术氛围。




圣淘沙涛源湾Seascape海景住宅
景观:TROP建筑:ICN
Seascape(涛源湾)是由知名开发商Ho Bee Group(和美集团)和IOI Properties联合打造的顶级公寓,共151个豪华的精品单位。涛源湾濒海而建,将迷人的自然海景尽收眼帘。高雅的楼宇外观,与四周的风景线和谐统一,充分体现出独特的建筑风格。其无与伦比的设计理念,傲视升涛湾的整体发展蓝图,巧妙地融合了水云间般的仙境。













行程亮点二
特色商业综合体
星耀樟宜 | Jewel Changi Airport
建筑:摩西.萨夫迪 景观:Peter Walker + ICN
星耀樟宜位于新加坡樟宜机场第1/2/3三个航站楼中间,17亿新币的造价和40米高的世界室内最高瀑布吸引著世界各地的过境旅客。公园、游乐园、商场、餐饮和住宿多功能集一身同时做到与各航站楼零衔接。在地面与地下层共10层的商场中有60%的品牌第一次进入新加坡市场,其中不乏国际知名品牌的旗舰店。星耀樟宜在设计、运营、品牌策划等各项指标中都凸显了国际一流机场的巨大实力。

播放





项目详情请点击查阅
Design Orchard
建筑:WOHA
楼高“两层半”的“Design Orchard”由本地建筑事务所WOHA设计,由里到外展示了红点创意和设计亮点。商场以只卖本地设计为重,一楼零售空间就汇集了61个新加坡原创品牌。建筑师企图为设计者与消费者创造崭新的商场文化体验,整体建筑设计与空间运用,更为繁华的乌节路注入新气象。

嵌入混凝土墙中的圆洞,有的是镜面,有的是玻璃窗,能望见里头的风景。





行程亮点三
混合体建筑景观
丹戎巴葛中心 | Tanjong Pagar Centre
建筑:SOM 景观:Cicada
丹戎巴葛中心这座276米唯一一幢突破全岛建筑限制高度的建筑位于新加坡最大的历史建筑保护群与政府办公区域的转换地带,为营造区域活力建筑将酒店、办公、商业和居住这四大板块集于一身加之地铁站和其它主要交通干道的支撑使得丹戎巴葛中心再次重塑核心区天际线的同时成为新加坡新的地标性目的地和城市门户。






风华南岸府 | South Beach Residences
景观:Peter Walker + ICN 建筑:诺曼.福斯特
项目位于滨海湾、中心综合办公区和历史文化区之间。作为新加坡填海发展的沿地区,此地记载着新加坡武装部队成立的历史。地块内四栋军事历史建筑与后期规划建设的地铁站是风华南岸府项目的重要考量。建筑师诺曼.福斯特将建筑形态与功能进行周密考虑的同时对建筑空间面对新加坡独特的热带气候而产生的影响给予了完美的答复。









滨海盛景豪苑 | Marina One
建筑:Ingenhoven Architect 景观:Gustafson Porter
滨海盛景豪苑(Marina One Residences)位于新加坡寸土寸金的滨海湾新金融区,在建筑组群中央奢华的创造了一片比标准足球场还大的绿色空间。Christoph Ingenhoven 和Gustafson Porter 两大世界顶级设计事务所的强强联合浑然天成的将梯田式景观与超混建筑融为一体,成为世界一体式建筑设计的典范。












行程亮点四
经典绿色建筑景观
海军部老年社区 | Kampung Admiralty
景观:安博戴水道(RAMBOLL) 建筑:WOHA
海军部老年公寓位于新加坡北部海军部居住社区,马来语“Kampung” 译为村落的意思,而基地片区前身是英殖民时期的英国海军基地故此命名海军部。为应对新加坡面临的老龄社会问题,新加坡政府委派WOHA建筑公司对老年人未来居住进行一次试点试验。建筑以老年人居住为核心结合老年人普遍关心的就医、吃法、买菜和交流活动等问题将其众多功能在建筑中进行三明治式的分层编排,以最简单最有效的方式将满足老年人的需求最大化。












项目视频
播放
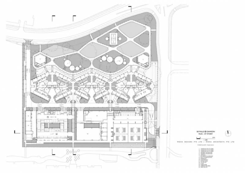
杜生庄 | Skyvile @ Dawson
建筑:WOHA
杜生庄是一个拥有960户居住单元的新加坡政府组屋项目,是新加坡建屋发展局对普通群众负担得起的公共住宅模式的一次大胆探索。新加坡的政府组屋系统致力于为国民提供物美价廉的公共住宅设施,整个系统和国家的养老金体制紧密结合,确保了广大民众居者有其屋。“空中村落”的概念增强了整个区域内的社区感和整体认同感,营造出和谐的社会氛围。









杜生阁 | SkyTerrace @ Dawson
建筑:SCDA
获得设计奖最高荣誉的杜生阁组屋,是政府在杜生区展开的“再创我们的家园”计划下的项目之一。该项目由SCDA建筑事务所设计,有五座40至43层楼高的组屋,通过多层停车场屋顶的天台花园相连。这个项目的许多设计元素在新加坡可谓首创。








行程亮点五
公园景观
碧山公园 | Bishan Park
景观:安博戴水道(RAMBOLL)
新加坡2006年出台的ABC (Activity, Beautiful, Clean)水计划, 因碧山公园位于新加坡核心绿肺下游的第一站再加之碧山公园有足够大的面积和辐射众多人口,所以碧山公园被选为新加坡ABC水计划第一个试点地点。戴水道公司运用其强大的水工程经验和公共景观设计经验,通过计算机对水的各项指标的多次推演和在试点地区对植物、土质和水文的前期试验最终花费4500万欧元打造了新加坡最具出名的水敏感体验公园。









行程亮点六
网红酒店建筑景观
Oasia酒店
景观:STX 建筑:WOHA
Oasia酒店位于商务办公区之中,建造前的最大课题是怎样在周围10栋玻璃幕墙的办公和酒店大楼中脱颖而出。WOHA建筑公司运用红色为基调在玻璃幕墙的办公大楼之间打造了一个垂直绿化建筑不仅仅为此区域增加了生机更为动物与昆虫营造了空中住所与栖息地,在减少建筑能耗的同时做到了生物链的完全循环,成为绿色建筑之典范。






行程亮点七
校园建筑景观
新加坡南洋理工大学 | (NTU) THE HIVE
建筑:Thomas Heatherwick
与传统的教育建筑不同,这组建筑通过走廊连接起像盒子一样的教室,校方要求的更适合现代化学习方式的设计。设计呈现为一个交织著社交和学习功能空间的建筑,创造出一种动态的环境,有助于非正式的以及偶然的学生与教授间的交流与互动。十二个塔楼,逐渐向底部收拢,非常明确有序的环绕在中部巨大的中庭空间,提供了五十六个没有拐角以及前后之分的教室,灵活的体量形式使得教授可以更容易接近学生,并促进个体之间更紧密的合作。








行程亮点八
解读2019新加坡规划蓝图
新加坡重建局 | URA
新加坡重建局英文全称Urban Redevelopment Authority,是新加坡国家发展部直辖的一个机构,专门负责新加坡土地管理与利用的政府职能单位。和城市规划发展相关的同级别政府机构还包括新加坡建屋发展局、新加坡公园局、新加坡公共事业局(水务局)、新加坡陆路交通管理局和新加坡农粮局。


行程详细说明
主办机构 景观邦
行程信息
时间:
2019年10月18日-10月20日(三天两晚,周五-周日)
集合:
2019年10月18日上午09:00 酒店大堂集合(酒店待定)
2019年10月20日报名截止,以缴费为准。本次行程依照招募情况决定出发情况
优惠方案:
团队优惠:3-4人同时报名每人优惠300元;5人及以上同时报名每人优惠500元
早鸟优惠:10月10日前完成报名,每人优惠500元
(注:优惠不叠加,只可享受以上任意一种优惠)
费用包含
两晚4星精品酒店含早餐(双人间,双床或大床,如需单间需补差价,按当天房价而定)
集体出行交通费、保险费、司机导游服务费
参访空间联络费及全部门票费
景观邦原创行程研发及服务费
费用不包含
费用不含发票,开票需补4个点发票服务费
签证办理费(建议根据《经授权旅行社及机构名单》办理签证)
新加坡往返中国机票费用
所有中、晚餐
申请旅游签证需提供其他材料(财力证明)如下
在职证明:申请人若为在职员工,必须提供由就职公司出具的在职证明信原件一份。证明信中需注明公司同意其休假,并详细注明申请者在该公司任职时间、职务及工资。在职证明信必须列有公司及有关联系人的地址、电话和传真号码。信函必须加盖公章。
费用注意事项
1、参与者须服从组织方安排,部分项目会根据情况可能会有微调,改动不超过20%。
2、参与者需要和景观邦客服确认了开团后再购买机票,如果报名人数过少或其他特殊原因景观邦保有取消或延期开团权,报名后因个人原因无法参加需扣除60%成本费加20%的手续费,或自行转赠名额,主办方保有报名审核权。
3、订好酒店后需更换、或加订酒店、购买机票,接机等一切报名费用以外的服务需加30%的手续费。
4、因交通堵塞,天气等不可抗原因造成的参访点缺失,请参与者予以谅解。
报名方式
联系电话:186 2030 7654
咨询及报名请长按以下二维码添加微信

适合人群
景观设计师、规划师、建筑师、室内设计师等设计相关从业者、设计管理人员、地产开发投资人。
说明
1、上述项目皆属游学课程内容,具体课程内容将根据实际情况做相应调整(改动内容不超过10%)不影响最终行程。
2、本文部分图片来自网络,版权归原作者或来源机构所有,若涉及任何版权问题,请与我们联系18620307654(微信同号),我们会尽快妥善处理。
往期部分考察回顾
新加坡考察


泰国考察


英国考察

厦门研讨会

重庆考察

成都考察

分享交流会及茶歇





考察现场专业老师讲解


评论