东海岸超宜居高档住宅项目:丽福苑[email protected]
今年开盘的新盘里,这个项目是能让人眼前一亮的那种:

位置很靠近市区。MB指的是MOUNTBATTEN,蒙巴顿区,是新加坡久负盛名的富人区。
2024年加东公园地铁站开通后,只需步行三分钟即可到达,五站到滨海湾,六站到市中心shenton way。

周围大片的区域都是别墅区,居住密度低,再加上附近的加东公园和东海岸公园,整个区域的氛围是很休闲很放松的,和市区的繁华形成了鲜明对比。
顶级幼儿园伊顿国际和顶级名校德明政府中学都在附近,不过一公里内没有小学不得不说是个遗憾。
项目的西侧和北侧都是无遮的视野,东侧和南侧的话会被其他几个公寓项目挡住:

项目所有单位都是南北朝向,楼间距很大有54米,隐私性很好:

泳池横放+大草坪的设计会让极大提升整个项目的空间感和档次:


顶楼的天际泳池可以俯瞰半个新加坡:

居民俱乐部沿泳池一字排开,各种设施齐全,景色也好:



这个项目最大的亮点是户型设计。
之前新加坡发展商的主流设计思路是多建小户型,尺价高总价低利润高;大户型占比少,同时面积也不断缩小,控制总价让大众更容易接受。
但是自疫情以来,新加坡的买家需求发生了变化,大户型大阳台大卧室正逐渐成为自住买家的主流需求。
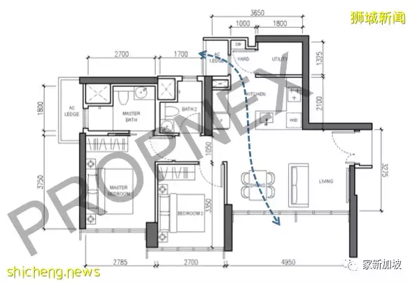
以前的项目没法改了,但是新项目的设计开始迎合这一需求了。[email protected]的一卧只有39间,而三卧有118间,最小的三卧面积也有1119sqft:

一卧的设计就很赞,面积46平方米,没有阳台,最大程度的减少了走廊面积,空间利用率高;客厅和餐厅连在一起的宽厅设计,显得明亮大气;卧室很大放得下大双人床;厕所双向开门,客人来了也方便;封闭厨房带窗户,和客厅对流通风好;

是理想中的样子,出租会非常容易。
两卧70平方米,没有阳台,比市场上绝大多数两卧都宽敞。封闭厨房,明厨明卫,还带储藏室;同样的宽厅设计,一般只有在四卧户型中才见得到;普通房也放得下双人床,真正意义上的两卧。

自住和投资的最佳选择,舒适性和增长性都很高。
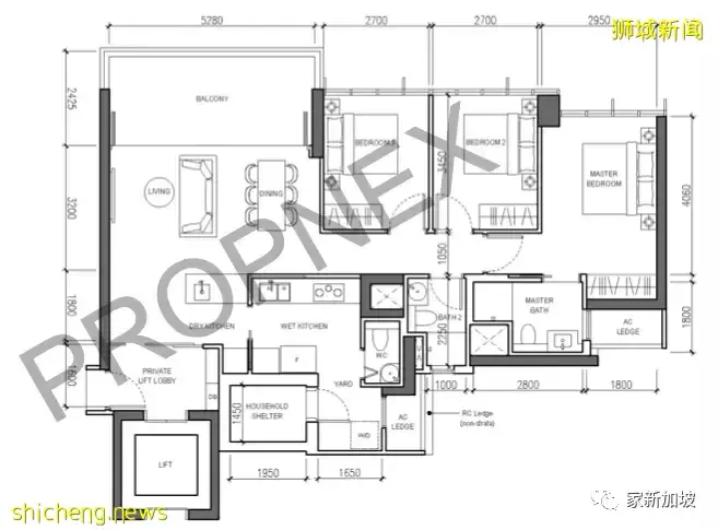
三卧118平方米,和市场上那些不到100平米的紧凑型三卧形成鲜明对比。阳台面积适中,另外这个门是可以拉开折叠起来的,比其他项目更显宽敞;私人电梯入户,高档公寓的代表性设施;干湿厨房分离,明厨明卫,储藏室和佣人厕所都有;主卧面积宽敞是应该的,两个普通房放下双人床再加一个小书桌也没问题。



这是自住买家的理想型。
四卧155平方米,当前市场上四卧里的巨无霸。
私人电梯,封闭厨房,明厨明卫,折叠阳台门,储藏室+佣人厕所,大主人房+小主人房,宽敞的普通房,都是优点。

尤其是这个长方形的厨房,比正方形的更有效率。这个岛台区域也可以选择和封闭厨房合并在一起:

主卫生间带浴缸,加上落地窗和开阔视野,太适合放松一下了。

这样的四卧谁不想要呢。
更多项目信息请浏览项目网站:

基本信息:
楼盘名称:丽福苑[email protected]
开发商:Bukit Sembawang Land
产权期限:99年
预计完工:2024年12月
住宅单位:298
占地面积:12,076.9平方米
评论