新加坡私宅设计,儒家思想的诠释

如恩设计研究室
如恩旨在将公共区域的视觉通透性最大化,包括:客厅、开放式厨房、餐厅及书房。这样,无论居住者立于何处,都能在茂密植被的环绕下,望向中央的纪念花园。在温度适宜时,居住者可移动打开大型玻璃门进行通风,亦可随时通往花园。
多代同堂的传统四合院是儒家思想在栖居空间上的诠释,“同一屋檐”隐喻了共居概念。在新加坡私宅项目中,如恩从四合院汲取灵感,使建筑成为连接家庭成员之间的情感纽带。在委托时,业主提出了一些构想:首先,原址重建的住宅空间能够容纳兄弟姐妹三人及各自组建的家庭;其次,能有一座花园,以纪念他们已故的母亲;最后,保留旧建筑中的坡屋顶设计,作为他们童年回忆的寄托。
旧建筑带有英国殖民时期独栋平房的风格,融入了维多利亚风格的装饰细节以及当地的传统马来建筑元素,其遮风避雨的深屋檐依稀可辨。鉴于当地的自然气候,坡屋顶满足了建筑的功能性,同时也是栖居者情感依恋的表达。如恩将坡屋顶的意象与四合院的建筑形式融合,为传统建筑带来新的诠释与解读。

如恩试图通过空间形式的表达来探索共同居住和集体记忆的概念。原址郁郁葱葱的植被沿着缘线形成自然绿化带,这一景致在设计中被保留了下来。新建的两层住宅围绕着中庭的纪念花园而展开,连接所有的公共空间。花园作为先母的纪念场所,占据了露天庭院。一楼的栖居空间与自然相互对话。通透的玻璃墙面使所有的空间与内外花园连接起来。

如恩旨在将公共区域的视觉通透性最大化,包括:客厅、开放式厨房、餐厅及书房。这样,无论居住者立于何处,都能在茂密植被的环绕下,望向中央的纪念花园。在温度适宜时,居住者可移动打开大型玻璃门进行通风,亦可随时通往花园。







如恩在二楼的设计上延用了坡屋顶,具有“庇护”意义的同时,或将公共与私人空间进行划分,或模糊两者的边界。卧室均位于更为私密的二楼,隐秘于屋顶的山墙之下。从外部看去,整栋楼仍然像一座四面坡屋顶的独栋平层。天窗、卧室与阳台间的大面积玻璃墙,将视野向外延伸,引入室外景观。通过剖面的相互作用,三处双层挑高空间连接了一楼的公共空间与二楼走道。这些空间相互渗透,使居住者得以在私人空间观察公共区域,创造了垂直层面的视觉联动。



步入纪念花园之前,屋顶上方的一处切空将一棵小树轻轻框入。阳台与采光井从坡屋顶的立面中雕刻而出,光滑的屋顶外部过渡到内部木板纹理的混凝土。一楼的动线基于围绕花园的环形空间,步行其中,沉静而流动,赋予纪念空间神圣的冥思。圆,无边无角,象征着身心的本源回归。纪念花园仿佛是“家”的心之所在,近在咫尺。那永远无法触及的回忆,成为集体生活记忆中不会褪去的底色。



项目图纸和模型

模型Neri&Hu Design and Research Office

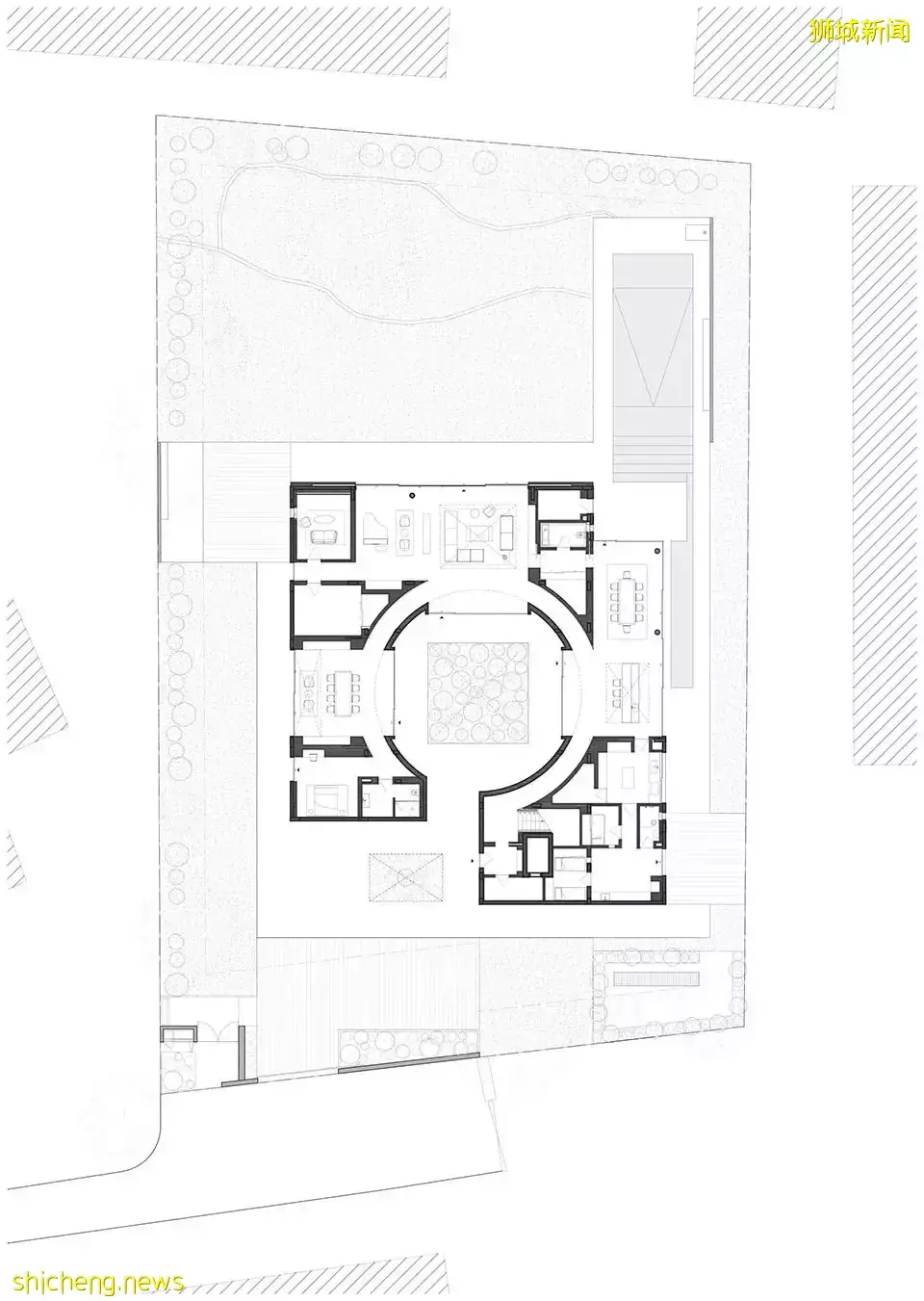
一层平面图Neri&Hu Design and Research Office

二层平面图Neri&Hu Design and Research Office

立面图Neri&Hu Design and Research Office

剖面图Neri&Hu Design and Research Office
地点: 新加坡
时间: 2021年
项目类型: 建筑, 室内, 平面
建筑面积: 1,185.20平方米
主持建筑师: 郭锡恩, 胡如珊
主持资深协理: 张堇盈
设计团队: 林世罗, 林妤儒, 詹志权, 吴佳轩, 辛海鸥, 黄惠子
建筑设计: 如恩设计研究室
当地建筑事务所: K2LD
室内设计: 如恩设计研究室
当地设计院: K2LD
评论