【新盘推荐】Piccadilly Grand 2022年度期待, 位于花拉公园站的综合项目,城市发展和香港置地联合呈现

Piccadilly Grand
RCR
综合项目
花拉公园
每次综合项目的开盘都会引起市场的一片热潮,同时带动市场上已有综合项目的热销。
位于花拉公园地铁站Farrer Park MRT的综合项目Piccadilly Grand, 即将开盘,不仅仅是综合项目,还拥有大开发商—城市发展和香港置地,学区房,以及位于新加坡二环—其他中央区RCR这些重要要素。引起广大自住和投资者的关注。
对综合项目感兴趣的朋友可以看文末的综合项目大盘点,目前位于其他中央区RCR,除了woodleigh residences,只剩下Piccadilly Grand
喜欢阅读英文的朋友也可直接到官方网站注册,等待开发商联系:
https://92364198-northumberland-residences.eraprojects.sg/s-eirmj5yr
01 项目要点

Piccadilly Grand
位于第8邮区的综合项目拥有住宅,商城,餐饮F&B,以及幼儿园。

由新加坡知名豪宅开发商城市发展CDL和香港置地MCL联合呈现

直接连接花拉公园地铁站Farrer Park MRT,两站就到市中心多美歌地铁站

一公里内三所名校:圣约瑟书院附小(St Joseph institution Jnr), 花拉公园小学(Farrer Park Primary)宏文小学(HongWen Primary)。

附近多所商城City Square 商城, Mustafa购物中心,以及各种新潮cafe.

仅407间单位,1-5房可选,满足投资和自住需求
大的医疗和酒店集团connextion 就在花拉公园地铁站

02 项目详情

项目名称: Piccadilly Grand
发展商: 知名开发商城市发展CDL和香港置地MCL
地契: 99年
区域: D08 — 花拉公园/实龙岗
建筑面积: 8,742 平方米/94,000平方尺
项目规模: 3栋23层高的大楼,一共407间
项目地址: 1,3,5 Northumberland Road
预计交房时间: 2026年8月
Piccadilly Grand是位于第八邮区的综合项目,属于其他中央区RCR, 由知名开发商—城市发展CDL和香港置地MCL联合打造。
总占地面积约为8,742平方米,由3栋高23层的建筑组成,共提供407个住宅单位,项目一楼集成了商店,餐饮店,幼儿园,其中商店和餐饮店占地面积大约1500平方米,幼儿园面积约500平方米。住宅部分户型分布从1卧至5卧(面积从45平方米至156平方米),预计将于2026年取得临时入伙证(TOP)。
03 位置及周边

Piccadilly Grand 位于花拉公园地铁站的出口,属于东北线或者紫线,从花拉公园站搭地铁两站就可以到多美歌地铁站。这里就是著名的购物中心狮城大厦所在地,也是乌节路的一部分,附近还有总统府,SOTA艺术学院,SMU新加坡管理学院等各所高校。


居住在Piccadilly Grand, 乘搭地铁出行朋友,充分享受公共运输的便利:

两站到达紫线多美歌站;
三站到达红线乌节路站;
四站到达绿线莱佛士站(金融中心 CBD);
五站到达市区线直落雅逸街站(金融中心CBD);
五站到达环线Bayfront站(金沙所在地)

购物方面,Piccadilly Grand 本身周边就有两座可以步行到达的商城City Square Mall 和Mustafa 购物中心,周边还有各种新潮的咖啡馆和和本地美食。乘搭两站地铁就可以到达狮城大厦,从这里步行到最繁华的乌节路。
喜欢开车的朋友,

5分钟就可到达Jalan Besar体育馆,
9分钟到达武吉士购物商城,
12分钟到达莱佛士金融中心CBD,
12分钟到达乌节路,
15分钟到达金沙Marina Bay financial centre。
不仅是购物和出行方便,Piccadilly Grand 周边的教育资源也很丰富。一公里内三所名校, 花拉公园小学(Farrer Park Primary)圣约瑟书院附小(St Joseph institution Jnr)和宏文小学(HongWen Primary)。

04 设计理念

Piccadilly Grand 在设计时充分考虑到住户各种不同的需求,将整个小区划分为三个区域: 宁静休闲区,活动区,以及社交区。


位于第三层的植物园区和第四层的宁静区,设置了花园和SPA,让住户置身于公园美景之中,享受SPA 的放松感觉。


位于第四层设施层的活动区,拥有50米的游泳池,可以让你在这里充分畅游,以及在岸边的凉亭小憩。


第三个区域社交区,拥有最大型的社交俱乐部,这里有两个功能房Function room 1 & 2可以预定,旁边就是健身房。多功能活动场地,家庭泳池,小孩泳池和游乐场都在这一区,满足整个家庭,以及与邻居朋友的聚会所需。
04 经典户型赏析
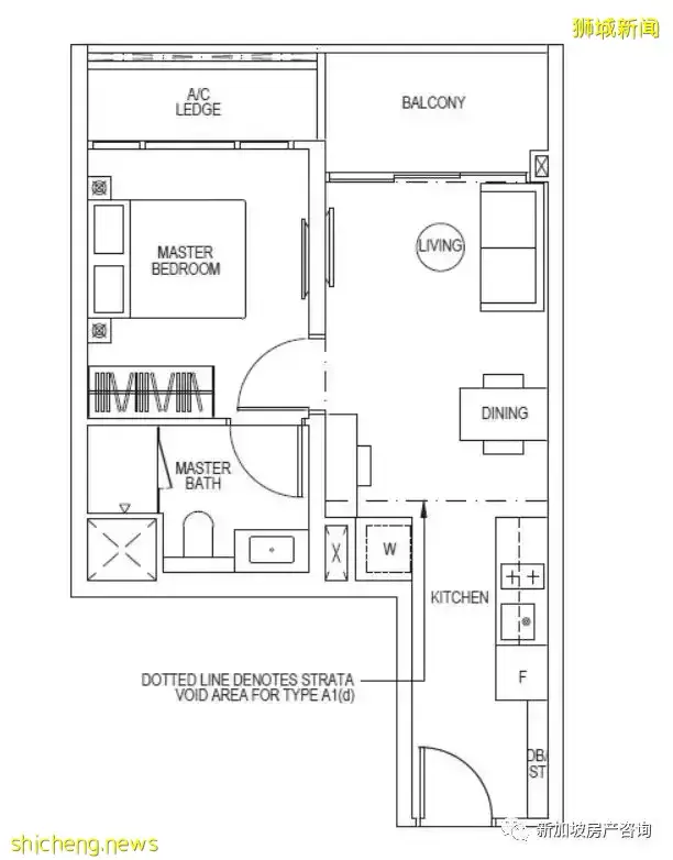
1卧 实用面积(45平方米/484平方英尺)

一房45平,拥有正规的卧室和长型厨房。
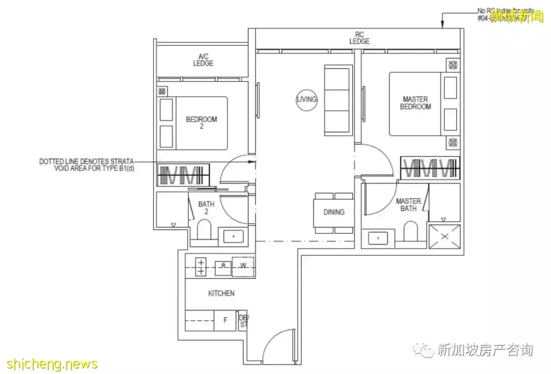
二卧 实用面积(60平方米/646方尺)

两房646尺,或者60平的户型超级亮眼,拥有哑铃形状的卧室分布,隐私性非常好。厨房也有惊喜,U 型厨房非常容易封闭。
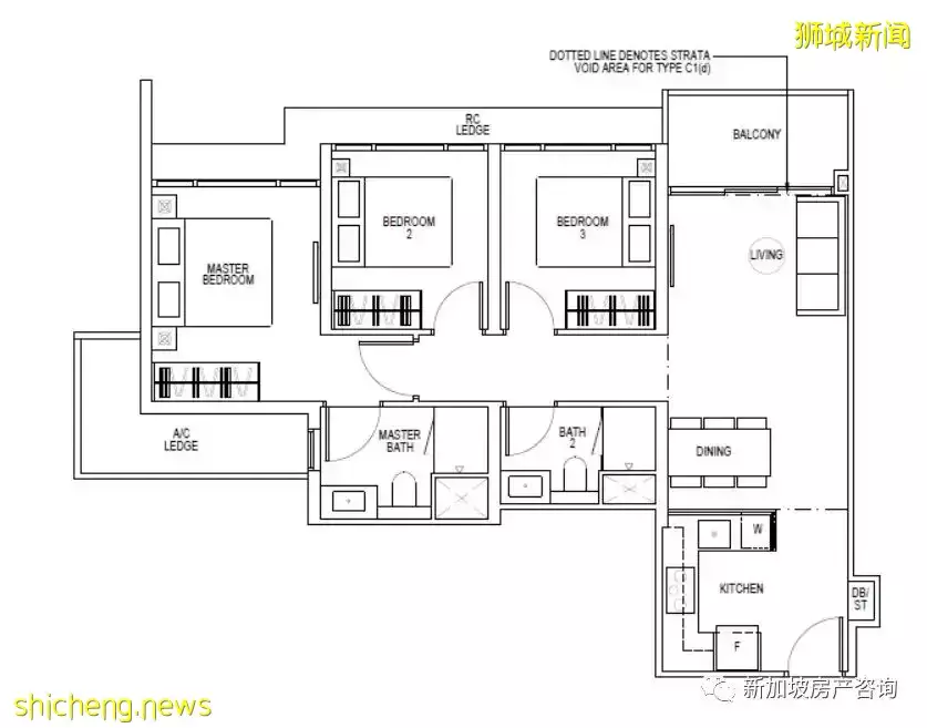
三卧 实用面积(82平方米/883平方英尺)

三房的883尺,或者 82平户型,非常适合刚需人群,U 型厨房可以稍微封闭下,一般这个尺寸都只能做开发式厨房,发展商在保证每个卧室都可放下双人床的情况下还做了U型厨房。
三卧Flexi 实用面积(100平方米/1076平方英尺)

带工人的家庭可选择三房Flexi, 储藏间有两个出入口,不仅可以做工人房也可以做书房。面积也不大100平,在价位和功用方面做到了很好的平衡。
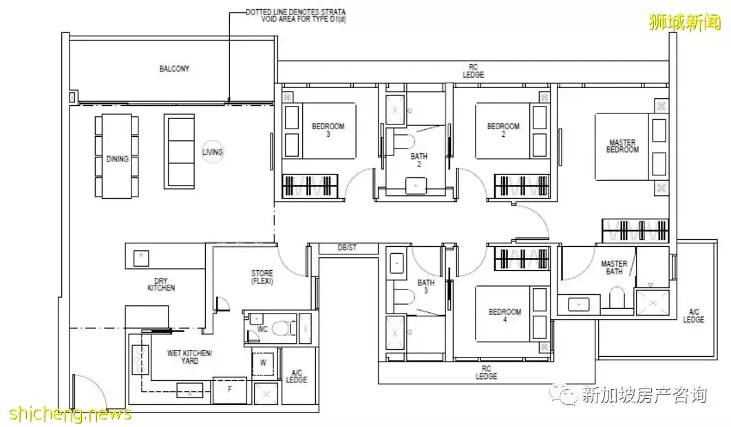
四房Flexi 实用面积(131平方米/1430方尺)

四房 Flexi 131平,长型的厅宽阔大气,满足您的会客需求。
四房双钥匙 实用面积(128平方米/1378方尺)

四房双钥匙单位是市场少有的户型,买一套房可以分成一套三房自住和一套studio 来出租。同时满足投资和自住需求。
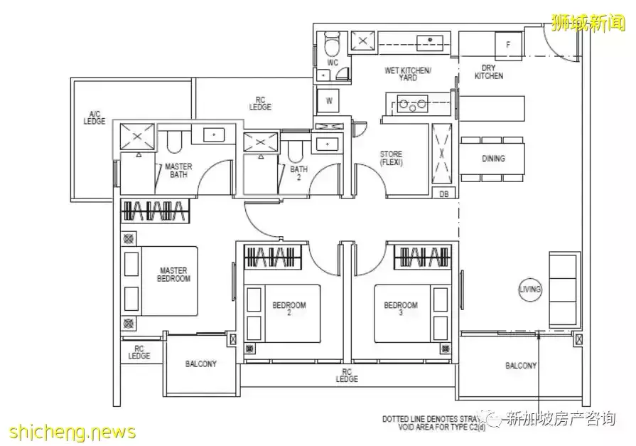
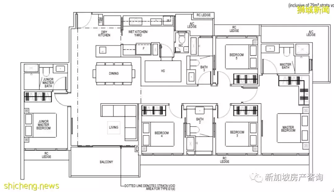
五卧四卫 实用面积(147平方米/1582平方英尺)

Piccadilly Grand

对项目感兴趣的朋友直接扫二维码预约注册样板间参观时间
RECOMMENDATION
评论