看新加坡这家购物中心用了什么新鲜的方式能使人“爱往高处逛”
高层容易成为冷区——这是一个令很多购物中心“头疼”的问题。
存量物业改造盛行的当下,业内普遍做法是在高层设置餐饮、影院等目的型业态,向上拉动人流。
除此之外,还有什么新鲜的方式能使人“爱往高处逛”?
改造过后的新加坡地标项目 Funan Mall 有些令人耳目一新的做法。

改造前
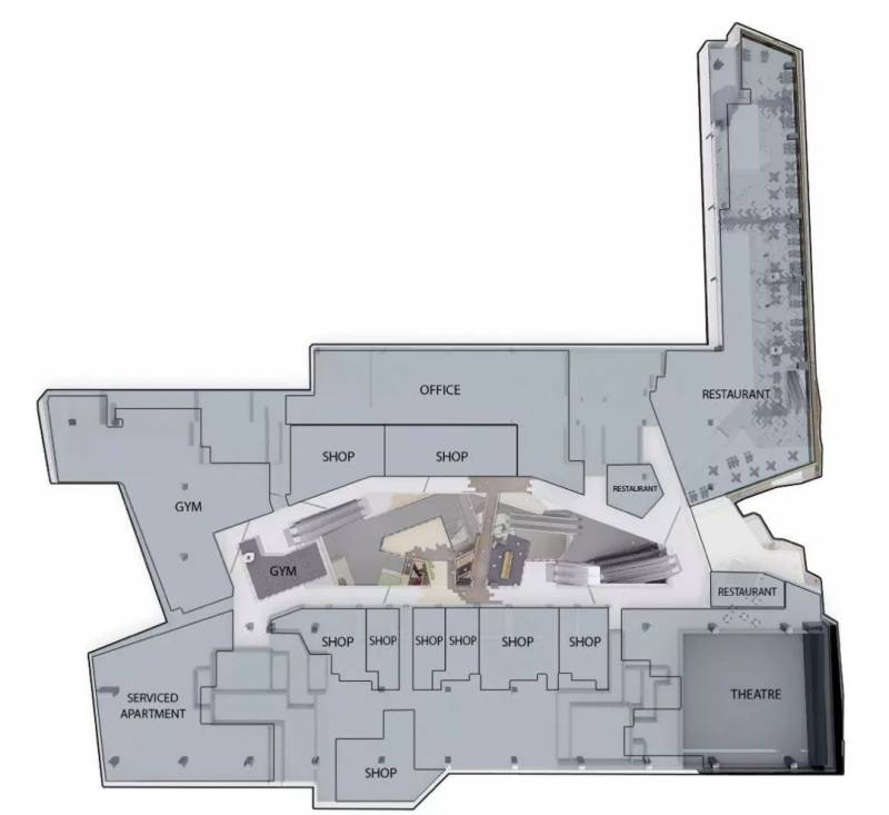
改造后的 Funan Mall 是城市综合体的一部分,有6层高,零售面积约3万平方米,购物中心之上是两栋办公物业。

改造后
如何“让人爱往高处逛”
Funan Mall 做了五个新尝试
1. 极不规则的中庭:用“冲突感”创造空间层次丰富性
Funan Mall 的内部空间乍看有些眼花缭乱,主要是因中庭的不规则设计。
这种空间设计的“冲突感”,一方面给人新奇、具有冲击力的审美体验,消解“规则感”带来的无趣,另一方面不规则的中庭设计也有助于解决冷区难题。

Funan Mall 空间层次分明,后退的部分看似牺牲了零售面积,却通过层次增加了公共区域面积,使消费者活动范围变大。这样的设计可配合营销活动提升整体客流,并将消费者导入各个楼层。
2.“生命之树”:重构店铺角色,引导人“向上看”
Funan Mall 的不规则中庭里有一棵“生命之树(Tree of Life)”,采用高度达到六层的钢木结构,搭配异形LED显示屏和美陈等共同组成,“树”上共有20个即插即用的零售吊舱。
以“生命之树”为中心,其向外伸出的“树杈”触及到各个楼层,赋予空间更多生命力。“树杈”的末端与各楼层动线相接驳,并承载着一个个方盒子空间,这些空间专门为快闪店的进驻而设置,为健身、娱乐、餐饮等各个业态的快闪店所用。

这样的设计最大化了商铺的展示性,购物中心有意营造的生活方式和独特体验也被消费者最大化地接收,将店铺像展品一样展示,并引导人的视线向上看,是利用可视性减少死角的存在。
3. 室内外无缝衔接:用花园农场打造新型“城市空间”
从 Funan Mall 的4层走出,有一段室外楼梯直接与屋顶花园相连,室内外场景无缝衔接,对于消费者来说,几步路的距离便可“移步换景”。

花园和农场具有较强的目的性,是休闲娱乐的重要空间。而花园和农场的独特性,已经使这里成为新加坡的新型“城市空间”,成为一个重要“打卡点”, Funan Mall 作为这一“城市空间”人流的承接者,可以接纳源源不断的消费者。
4. “花洒效应”:目的为主、交通为辅,让客流从高到低
Funan Mall 实际上也遵循了高区引流的传统做法,即把目的型业态置于高区,如位于最高层4层的健身房、游泳池、剧院等。

强目的型业态成为新加坡创新的“城市空间”、引来打卡人群后,以交通辅助,打造小型的步行楼梯、回廊空间及扶梯,以帮助人群能向下流动。
这样的设计下,场内人群犹如花洒,从高处流出并向下扩散。
从 Funan Mall 看
高区引流的两个新思考
从 Funan Mall 案例中,我们能发现其运用了两个高区引流的基本思考路径:
1. 逆向思维:把高区直接做成客流入口
从健身房、泳池、剧院及花园等强目的型业态的方位可以看出, 与传统的将人“从底层引入并使人向上走”的思维不同, Funan Mall 意在将消费者直接从顶层这些外部创新的“城市空间”引入,接着再通过交通动线使人向下走,而花洒式人流也易于场内人流的均匀铺开。
2. 均衡思维:用水平流动的趣味性带动垂直流动
在将人引向高处的探讨中,我们可以发现, Funan Mall 依然将水平动线的处理作为重点。
原因在于,高区引流的目的并不在于使人聚集在高区,而是在水平与垂直动线上制造平衡,实现场内客群的均匀流动。而人的水平流动比垂直流动更容易,对垂直流动有着重要的影响力。

新加坡首个可横穿购物中心的自行车道,增强水平动线趣味性。
因此,水平动线上的游逛性和趣味性,很大程度上决定着整个场内的人流是否能够良性循环。
小结
真正有趣的游逛,是曲径通幽后的豁然开朗,是柳暗花明中的移步换景,是伴随消费过程一重又一重的新奇体验。
当目的性消费轻易能被满足,商业体如何获取人们更多的注意力?
评论