靠近花拉公园地铁站的Piccadilly Grand将于4月15开盘,407单位混合项目自住投资两相宜,户型图已出,欢迎来看看
MCL更是值得期待
作为中介第一批去参观了Piccadilly Grand的样板房,就在Farrer park MRT的D出口,工地在E出口,非常方便,模型很漂亮,看得出CDL+MCL的高品质,样板房有2+S和四房双钥匙,开发商把握买家心理,产品迎合市场需求,开发商发挥稳定,应该会大卖,这是工地周边绕一圈的视频。
以下是开发商指导价
Attractive Unofficial Guide Price:
1BR fr $1.0xmil
2BR fr $1.3xmil
3BR fr $1.7xmil
4BR+Flexi $2.7xmil
4BR DK fr $2.6xmil
5BR fr $3.0xmil
我们公司大概做的尺价预测表,仅供参考


四月15日开始看房,欢迎找我


1. 问君能有几多愁,恰似清仓CDL
我对CDL的吹捧不是一两天了,有帖子为证 它之前几个项目: Penrose: Penrose开盘当天卖出七成,当之无愧的今年新盘之花 Irwell Hill Residence:CDL最近不平静,Irwell Hill Residence 3月27日开盘有望大卖,有兴趣的朋友欢迎约起看房 Canninghill Piers:康宁河湾Canninghill Piers今天选房,感谢财神保佑,接下来就是看运气能否选到房了,$2634psf起,欢迎看房约起 股票群里也一直推它的股票,朋友买它房子我股票也会起点吧

而且自己也买,可是卖了后就还冲高

原来分析师吹捧了

最近CDL大涨,之前以为是今年RCR唯一大盘Piccadilly Grand月中要开盘了市场预期向好,于是边涨边卖直到清仓,没想到是因为CDL成了拆迁户,被市场发现了他真正价值。希望利好见顶,回调到7.4以下再让我进,另外Piccadilly Grand预期价格出炉了,这个价格RCR靠近地铁站混合型学区房将成为绝版,欢迎朋友咨询约起看房,送好股一只~

我把CDL和Yanlord起码推给了5个朋友,估计能抵消鸡蛋涨价钱

而且贝壳等也让许多朋友


TVRFeExqWTFMak0wTGpNdw==

因为CDL参股的商城被卖,就能赚大钱
所以还是地产值钱抗通胀
不信看老美的数据

我感觉现在拆迁风吹到了商业地产
连野兽派代表作黄金鞋子也有人想拆迁


卖了n次的International Plaza又蠢蠢欲动了

果然是流动性充足,要把每个洼地填平

不过今年的好项目就是这么一些


而且这些热门项目又都在四月开盘

害得我们越南之行都要延期了


2. 项目简介

项目卖点:跟Midtown Modern一样地铁站直通

项目总结

Paccadilly是啥意思
新加坡地产人都知道,CDL取名喜欢用Grand,就是大的意思,有点像北方人喜欢说大中国,大北京,大张伟,楼盘在气势上就牛起来,比如Whistler Grand, Piermont Grand等。

不过Piccadilly Grand出来的时候,我发现很多人也不认识前面是啥意思,现在也不太会拼那个单词,因为这个词是伦敦一条街道的名字,著名的海德公园就在那边,说到底还是新加坡许多海峡华人的英伦情结,喜欢给房子加一点英伦风。

皮卡迪利街(英文:Piccadilly)是英国伦敦的一条主要街道,西到海德公园角,东到皮卡迪利圆环。皮卡迪利街完全属于威斯敏斯特市。这条街是A4公路的一部分,伦敦西部第二个最重要的交通动脉,伦敦地铁的干线皮卡迪利线便通过此路底下,并因此得名。皮卡迪利街东段的南侧是圣詹姆斯区,而皮卡迪利街的西段只有北侧建起了房屋,南侧是格林公园。皮卡迪利街的北侧是Mayfair区。

在皮卡迪利街上,有福南梅森食品店、皇家学院、伦敦丽兹酒店和哈查尔兹书店(Hatchards)。辛普森(Simpsons)曾经位居英国最好的服装店之列,20世纪30年代开设在皮卡迪利街。这个店在1999年关闭,原址现在是水石书店的旗舰店。这个地区拥有许多热门的夜总会,包括摄政街独家的“纸”(Paper)夜总会,和莱斯特广场好客的“声音”(Sound)夜总会。
Farrer公园作为新加坡第一个跑马场所在地,以前曾有很多有钱的英国人住那边,所以街道有许多是以英国地名来命名,所以Piccadilly也以伦敦的闹事区名字来命名,显得高大上。

楼盘下面的商铺也叫Piccadilly Galeria

3. Piccadilly Grand位置
Piccadilly Grand是政府卖地的项目,该项目由城市发展(CDL)和MCL地产(MCL Land)的合资公司发展,以60/40比例分钱,它们去年4月以4亿4589万元标到诺森伯兰路(Northumberland Road)私宅地段,相当于容积率每平方英尺1130元。

两个开发商都是江湖大帮,历史悠久,品质有保障,CDL是我文章经常聊的,不只是因为我持有不少其股票和买了他们家的房子,而是这个公司的户型和定价理念让我比较欣赏。

MCL也是不错的开发商,它2019年开的Parc Esta马上要交房了,价格从16xx卖到了21xx。

Piccadilly Grand是三栋楼高23层的商住混合项目,有407个住宅单位,一楼作为商业零售空间,且设有婴幼儿中心。

花拉公园地区处于实龙岗路(Serangoon Road)、吉真那路(Kitchener Road)和跑马埔路(Race Course Road)的交汇处,与小印度相距不远。
这里距离市中心只有15分钟车程,有地铁站连接、靠近中央高速公路,附近有多座小贩中心及小学,包括圣若瑟书院附小和英华小学等。所以开发商觉得这一块地方跟Piccadilly街的定位类似,把名字借过来。看看这个视频是否有那种繁华便利的感觉。
城市广场(City Square Mall)周围私宅项目屈指可数,估计Piccadilly Grand推出会相当受欢迎。
不过有一个让人值得期待有答案的问题是,项目是否会有一两个blk在宏文小学一公里。

不过即使不在一公里,也有另外三个小学在一公里。

小区下面有地铁站出口,不带伞也不会淋雨


4. 小区设计

小区今天有新鲜出炉的信息,项目有三栋楼,3个分区组成,这点跟啥事都喜欢3的stirling residence差不多,估计MCL的香港老板对三偏好起作用了

广东人对三的喜好是来自基因的,感谢龙光地产来新加坡开发了stirling residence使得我知道他们公司,三天前抄底居然起了70%.

3栋楼都是南北朝向,每栋23层楼

第一个分区是秘密花园区

有6米高的club house用餐区

大概6-8人可以使用的共享工作区

第二个是50米泳池区

第三个是家庭泳池区

北部离地铁站近的一楼会有商店。

会有三个Club House

最大的club house有健身房,Changing room和Function Room

入门处也很宏伟,候车区也有一个蛮舒服的lobby
5. 小区特色
作为全球可持续发展的模范企业,CDL在此项目中有带些新花样

绿色低碳和智能家居都是领先的

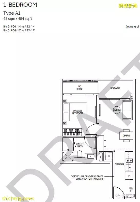
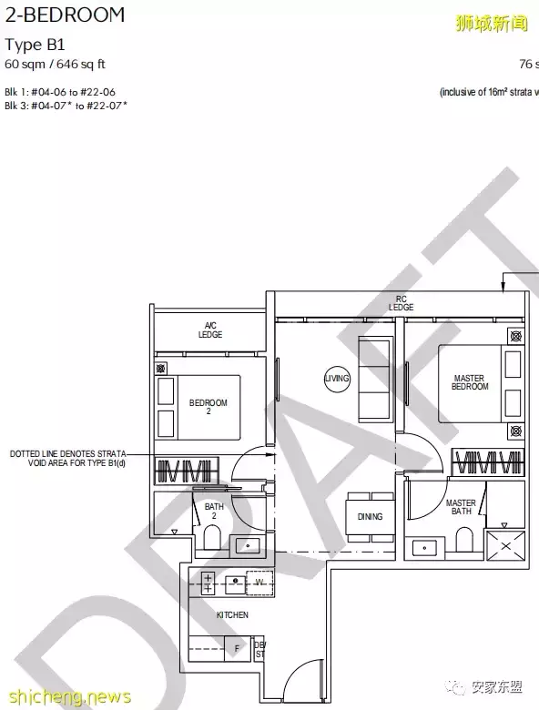
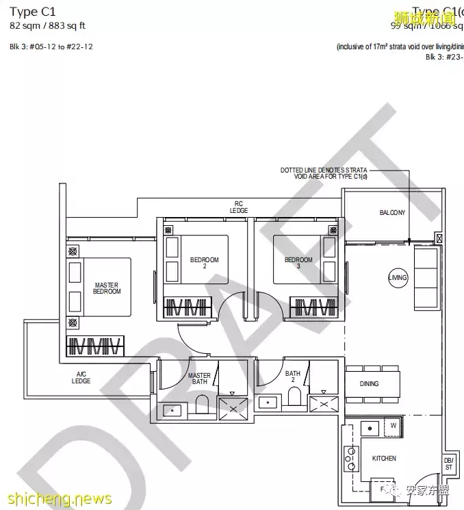
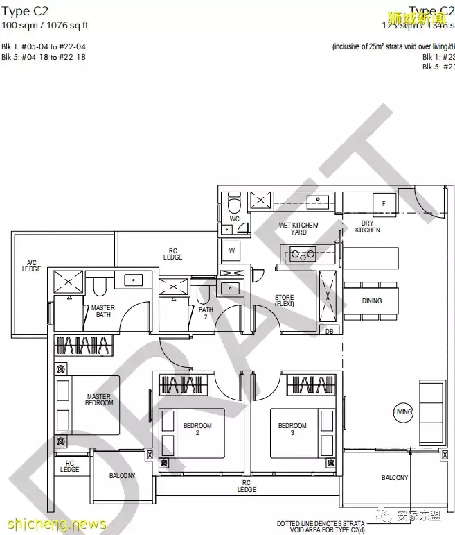
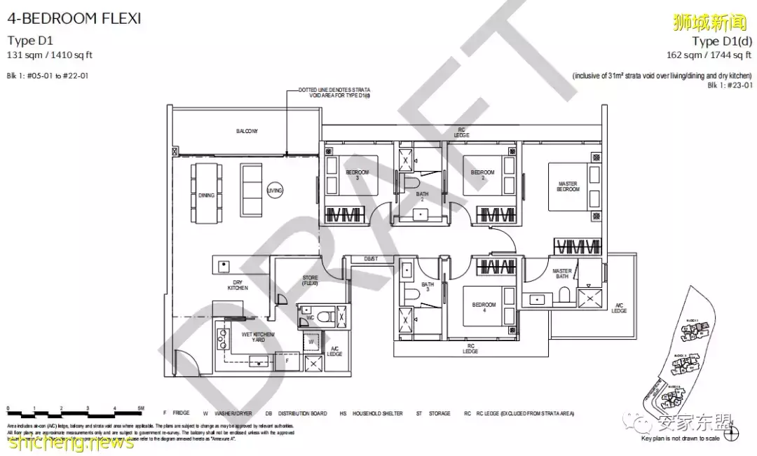
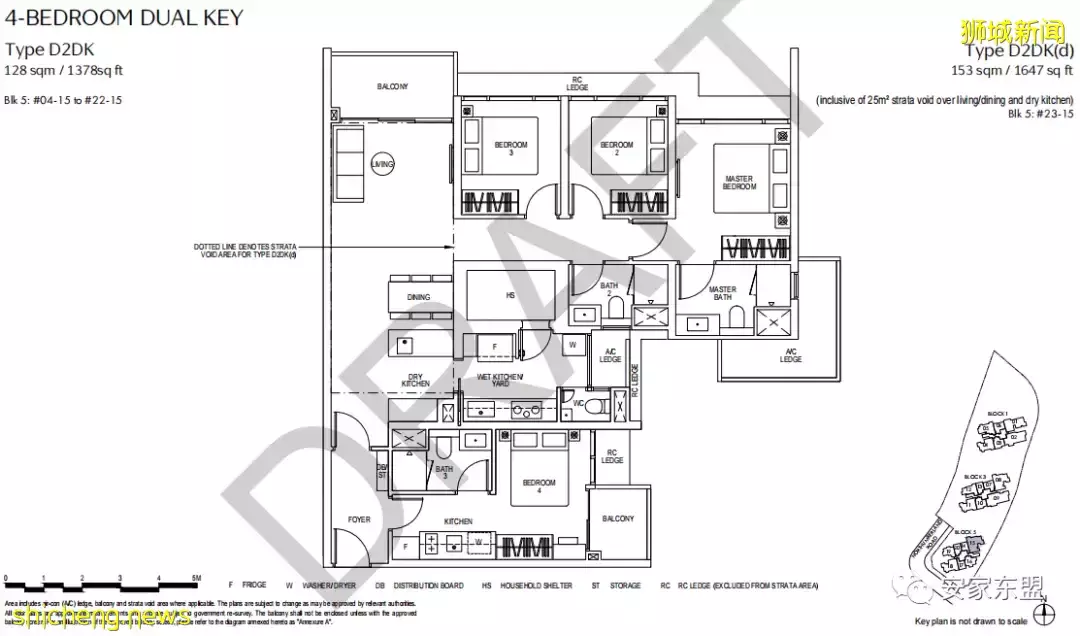
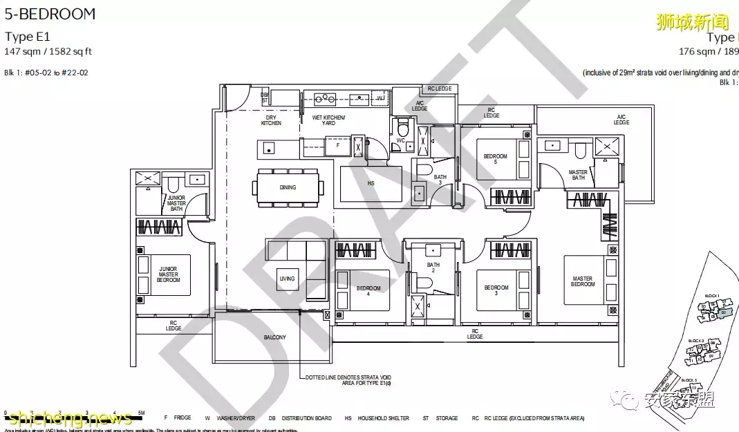
6. 户型配置
一共407个单位,1-5房都有,也有一些4房双钥匙单位。









户型超好的双钥匙四房


小户型(1-3房)以淡色为主,大户型(4-5房)以暖色为主。

用料都不错,电器基本都是Bosch

这是厨房设计样式



评论