热点:乌克兰战争对新加坡房产有影响吗
导读: 新加坡位于重要的战略地理位置,世界局势的稳定对新加坡的经济至关重要,已经持续超过一个月的乌克兰战争会不会冲击到新加坡的房产呢?
01 俄乌冲突 对新加坡房产的影响预测
01过去的危机和局部战争影响
在每次的危机后半程,都能看到新加坡房产市场有一个快速回弹阶段,甚至比上一次的峰值更高。所以短期内如果房价会跌,则是一个不错的入手时间。

但需要注意的是:房价回弹是一个综合了各方面原因的结果,并不能单纯理解为危机导致房价上涨。
02俄罗斯受到制裁,引发原油涨价
过去 20 年的历史数据显示,新加坡住宅市场似乎与油价存在一定的相关性。然而,前十年油价相对稳定而房价浮动较大,后十年油价波动非常大而房产相对稳定,甚至升温,房产投资逐渐成为资产避险的手段。
1995-2014年,URA 房地产价格指数和租金指数与布伦特/WTI 原油价格的对比

(来源:彭博、URA、仲量联行研究,2015 年 2 月)
2015年后,包括新冠疫情以来,油价大幅波动,然而新加坡房市连续升温,说明二者虽然在大趋势上有相关性,但并不紧密相关,没有绝对因果关系。
新加坡房价趋势的根本原因还是供需关系,这和油价并不直接相关。
前二十年中两次房价暴跌是因为金融危机引发房市泡沫破裂。2009年后政府开始逐渐出台多次降温措施,逐渐提高房产交易的门槛,所以 新加坡资产保值安全,不会有大的泡沫产生,抵抗金融危机更加坚挺。
02 同为小国 新加坡相比乌克兰的优势
01新加坡的国民服役制度
新加坡常住人口约550万,公民+永久居民总人口约400万,强制所有年满18岁的新加坡男性公民和第二代男性永久居民为国服役两年,成为现役军人。服役期结束之后则会成为战备军人,必须每年回营受训一次。这项制度让新加坡拥有自我保卫的能力,危时可以全民动员。
02新加坡的广泛外交
新加坡采取“小国大外交”的政策,致力于广交朋友,维护东盟等多边的全球贸易体系,为区域及国际组织出谋献策;在国际事务上,扮演诚实中间人的角色,采取大国平衡战略。
新加坡现任外交部长维文提出了小国大外交战略的先决条件之一是新加坡必须有一个成功与蓬勃发展的经济,对其他国家有实用价值。这两点新加坡已经用近几十年来稳定的经济发展证明。
03新加坡的食品安全 全球食物保障指数:2019/20年连续两年高居榜首
食品自给“30·30愿景”:到2030年,本地出产的农产品满足国人三成的营养需求(20%蔬菜水果,10%肉蛋类蛋白质)。政府加速推动农业的高科技转型,借助创新和可持续的农耕和渔业养殖等技术,减少对进口食品的依赖。
食品进口源多元化:新加坡食品局采取的主要策略是食品供应来源多元化,降低对任何单一国家的依赖,保证粮食供应的韧性,能够在国际局势不稳定时迅速转向其他食品来源地订货。
TVRFeExqWTFMamN4TGpJd09RPT0=

新加坡食物供应来源地分布(来源:8视界新闻)
每周楼盘
KENT RIDGE HILL RESIDENCES
肯特岗山住宅
新加坡极低密度生态私人住宅
全部是低层住宅建筑,舒适的隐居生活方式
背靠肯特岗山公园,面朝西海岸,邻近新加坡国立大学和科技园区
是新加坡升值潜力最大的南部滨水区
最后9个单位待出售
发展商:豪利控股 Oxley Holdings
产权:99年
地区:第5邮区
总楼层:5层
总单位:548 (最后9个待出售)
竣工:2024年12月
设施:游泳池,健身角,阳光甲板,健身房,功能房,花园烧烤亭,儿童游乐场等
山居隐士主题的设计理念,让本项目在亚洲住宅与商业房地产信息平台举办的PropertyGuru Asia Property Awards (Singapore)2019 获得了最佳新私人公寓开发大奖 The Best New Private Condo Development

项目 周边
交通便利:步行500m约6分钟即可到达巴西班让地铁站Pasir Panjang MRT。靠近多条交通主干道,包括西海岸快速公路,亚逸拉惹快速公路AYE等
名校云集:新加坡国立大学,英华自主中学、花菲卫理小学及南华小学
多所国际学校:世界联合学校Dover ,莱仕国际学校、东陵信托学校以及日本学校(小学)
美食:巴西班让美食中心
购物:拉布拉多公园地铁站Labrador Park MRT附近的亚历山零售中心,港湾地铁转换站旁的怡丰城VivoCity

极低密度山居隐士的生活方式,从阳台直接眺望西海岸

待售
户型
二卧+书房:743尺
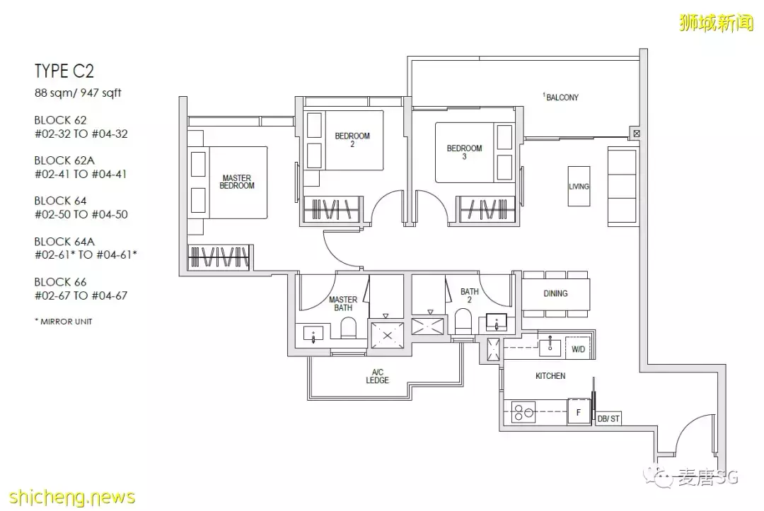
三卧:883尺 | 947尺 | 1044尺

二卧单元内景

二卧单元平面图

三卧单元内景

三卧单元平面图
评论