置业星宇轩(The Antares),靠地铁外国人也可贷款
摘要
星宇轩(The Antares)位于第D14邮区的麦波申区(MacPherson),属于新加坡的中央区。公寓坐落在玛达路(Mattar Road),位于恩典浸信教堂(Grace Baptist Church)和圣斯德望教堂(Church Of Saint Stephen)的中间,属成熟住宅区。
该公寓由FSKH Development Pte Ltd开发。该公司是由福联盛控股(Hock Lian Seng Holdings)、强枫控股(Keong Hong Holdings)和长益集团有限公司(TA Corporation Ltd)组成的联盟公司。
星宇轩(The Antares)占地约6,230平方米(67,059平方尺),拥有99年地契,将建造2栋5层楼高、1栋17层楼高和1栋18层楼高的建筑,提供265个私宅单元,户型包括
28套一卧室、7套一卧室阁楼、
150套两卧室、14套两卧室阁楼、
47套三卧室、3套三卧室阁楼、
15套四卧室、1套四卧室阁楼,
面积介于42-149平方米
(452-1603平方尺)
公寓距离滨海市区线玛达地铁站(Mattar MRT)100米,2分钟步行抵达,四周拥有大量休闲娱乐、购物用餐等设施。公寓靠近PIE、KPE、CTE和尼诰大道,7分钟车程抵达体育中心,15分钟至乌节路。
公寓附近教育资源丰富,一公里范围内就有幼儿园、小学(芽笼美以美小学)、中学(如四德女子中学)以及国际学校等,是典型的学区房。该公寓价位合理,租金回报潜力高,升值潜能大。
公寓设施齐全,摩登现代,是新加坡夜空中最辉煌、最耀眼的梦想家居。
前言
有一首儿歌,歌词是“一闪一闪亮晶晶,满天都是小星星;挂在天上放光明,好像许多小眼睛”。唱着这首歌,勾起了多少儿时的记忆、美好的憧憬。这是一个童真的世界,没有烦恼、没有忧愁,给人美好、让人向往。
宇宙的浩瀚超乎想像,包括数十亿个星系,每个都有数十亿颗恒星和行星。梦想在星空下飞翔,激励人们树立远大目标,朝理想奋进。茫茫宇宙、满天星斗,地球成为了它们的朋友,相互吸引、相互排斥,形成了多姿多彩的星空。在满天繁星中,有一颗让人亮眼,这就是心宿二星(Antares)。这是一颗著名的超红巨星,能放出火红色的光亮,是天蝎座(Scorpio)的主星。心宿二星(Antares)是银河系中最耀眼的恒星之一,在夜空中绽放光芒、气势磅礴。
星宇轩(The Antares)是地球的心宿二星,来自宇宙,化身公寓,定位于新加坡中部,是设计师对天体的理解、对宇宙的敬畏下产生的灵感驱动下的杰作,即将转化为地球人永恒的生活方式。
楼盘精华分析
距离滨海市区线玛达地铁站(Mattar MRT)100米,2分钟步行抵达;
靠近PIE、KPE、CTE和尼诰大道,7分钟车程抵达体育中心,15分钟至乌节路;
教育资源丰富,1公里范围内的小学就有3所;
靠近各种就业群,如Kallang Way、Tai Seng和Kg Ubi Industrial Estates,租金回报潜力高;
比邻多家购物商场,如Macpherson Mall、Paya Lebar Square、Singapore Post Centre和Paya Lebar Quarters;
由实力雄厚的发展商开发,有质量和信誉保障;
天人合一的设计,全景窗户,高级家私配备。

星宇轩(The Antares)公寓的效果图

星宇轩(The Antares)公寓的正门
星宇轩(The Antares)位于
中部黄金区域,新加坡的心脏地带
星宇轩(The Antares)位于第D14邮区的麦波申区(MacPherson),属于新加坡的中央区。公寓坐落在玛达路(Mattar Road),位于恩典浸信教堂(Grace Baptist Church)和圣斯德望教堂(Church Of Saint Stephen)的中间,位于成熟住宅区。如果将星宇轩(The Antares)定位于新加坡地图,您将发现,该公寓位于新加坡的心脏地带。

星宇轩(The Antares)公寓靠近滨海市区线玛达地铁站,地理位置优越
星宇轩(The Antares)就在麦波申广场(MacPherson Mall)的旁边,步行几分钟即可抵达。这是一间刚开幕不久的商场,现代摩登,设有不少的商铺、餐饮店和超市,居民可以在此购物、娱乐和享用美食。星宇轩(The Antares)也靠近巴耶利峇广场(Paya Lebar Square),这个中心聚集办公、零售、酒店和便利的公共设施于一体,是购物、娱乐、休闲、健身和餐饮的好去处。

星宇轩(The Antares)公寓附近的麦波申广场(MacPherson Mall)
星宇轩(The Antares)附近的购物场所还包括Singapore Post Centre和巴耶里巴中心(Paya Lebar Quarters)等。巴耶里巴中心(Paya Lebar Quarters)将是一个繁华的综合商业节点,拥有办公室,零售店和充满活力的公共空间;12公顷土地可供开发,相当于约500,000平方米的商业建筑面积;除了引入新的商业开发项目外,未来的Wisma Geylang Serai还将增强独特的本地特色,以及芽笼路沿线的新步行街和广场空间。星宇轩(The Antares)附近还有多家位于循环路的熟食中心(Circuit Road Food Centre),如大牌79、80和89的熟食中心等,公寓居民可以在那享受到各种各样、价廉物美的本地美食。

星宇轩(The Antares)公寓附近的大型购物商场
星宇轩(The Antares)的地理位置非常优越。公寓距离滨海市区地铁线的玛达地铁站(Mattar MRT)只有100米,步行2分钟即可抵达。这个地铁站距离位于地铁环线的麦波申地铁转换站(MacPherson MRT)只有1个站的距离。公寓附近100米范围内还有多路巴士路线,如40、61、63、65、66A、135、154、155、158、155A和155等,通往全岛各地。
星宇轩(The Antares)的驾车人士可通过附近的主要道路如阿裕尼路(Aljunied Road)、麦波申路(MacPherson Road)等连接中央高速公路(CTE)和泛岛高速公路(PIE)等,非常便利。公寓距离乌节购物商圈或中央商业区(CBD)只有约15分钟车程。

星宇轩(The Antares)公寓附近的地铁网络

星宇轩(The Antares)公寓附近的美食
区位教育多样化、质量化
近年来,报读小学的孩子有上升的趋势,许多家长都苦于为自己的孩子报读心仪的小学。一些海外朋友特别是来自中国的朋友希望将自己的孩子送到新加坡政府小学。由于名额有限,外籍孩子的入学由教育部根据孩子的居住地点统一分配。这样一来,这些孩子可能就会被分配到离家较远的小学。但如果您家附近有多所小学,被分配到离家较近的小学的机会将大大提高。
星宇轩(The Antares)附近1公里范围内的公立小学有3所包括嘉诺撒仁爱会小学(Convent Primary School)、麦波申小学(Macpherson Primary School)、芽笼美以美小学(Geylang Methodist Primary School)。二公里范围内的小学也有3suo ,它们是四德小学(Cedar Primary School)、光华小学(Kong Hwa Primary School)和海星中学(附小)(Maris Stella High School,Primary)等。星宇轩(The Antares)附近的中学包括柏盛中学(Macpherson Secondary School)、芽笼美以美中学(Geylang Methodist Secondary School)、四德女子中学(Cedar Girls’ Secondary School)、巴特礼中学(Bartley Secondary School)和海星中学(Maris Stella High School,Secondary)。此外,公寓也靠近澳大利亚詹姆斯库克大学(James Cook University)沈氏道分校。年轻的妈妈们也不用担心,附近1公里范围内就有5所幼儿园可供选择。说星宇轩(The Antares)是学区公寓是名副其实的。

星宇轩(The Antares)公寓附近的教育资源
星宇轩(The Antares)是夜空中
最辉煌、最耀眼的梦想家居
星宇轩(The Antares)项目的地段是2017年下半年的政府售地计划中推出的其中一幅,该地段拥有99年地契,由FSKH Development Pte Ltd开发。该公司是由福联盛控股(Hock Lian Seng Holdings)、强枫控股(Keong Hong Holdings)和长益集团有限公司(TA Corporation Ltd)组成的联盟公司。Hock Lian Seng(HLS)成立于1969年,为新加坡的公共和私营部门承担并完成了众多土木工程和基础设施项目,获得了多个奖项和认证,并在新交所主板上市。上市公司强康控股于1983年成立,业务遍及新加坡、越南、日本和马尔代夫等国家。TA Corporation拥有超过45年的业绩记录,是一家成熟的优质房地产和建筑集团。

星宇轩(The Antares)公寓的游泳池
FSKH Development公司在10家公司参与的竞标中以S$2.23亿新元标下这块政府售地。
星宇轩(The Antares)公寓由Consortium 168 Architects设计。该公司成立于1982年,是业内知名的建筑设计师,拥有众多获奖作品。设计的公寓包括[email protected]和Sol Acres等。
星宇轩(The Antares)的设计灵感来源于恒星心宿二星(Antares)。心宿二星(Antares)是银行系中最耀眼的恒星之一,她用美丽的红色光芒照亮夜空,打造一个壮观的景象。心宿二星(Antares)位于天蝎座区位的心脏地带,正如星宇轩(The Antares)位于新加坡的心脏地带一样。公寓采用这样的设计可谓天人合一。心宿二星(Antares)是一个巨大的星体,直径达4.8亿公里,亮度是太阳的9000倍。设计灵感来自心宿二星(Antares)意在打造一个在夜空中最辉煌、最耀眼的住宅。天蝎星座的人对互不相同的和互不相融的事物有特殊的兴趣,也喜欢探究事物的本质并加以区别。
星宇轩(The Antares)的设计也注重层次感,将相邻建筑有机结合起来。著名的美国哲学家和诗人Ralph Waldo Emerson曾经说,房屋由墙壁和横梁组成,而建造一个家需要爱与梦想(A house is made with walls and beams; a home is built with love and dreams)。星宇轩(The Antares)坚信,公寓将建造坚实的墙壁和横梁,配以豪华的装备,制造爱的氛围,让这里的居民充满爱与梦想。

星宇公寓将建造至少29个/类设施,如健身房、俱乐部、游泳池、水疗室、阅读区等供居民选用。公寓采用优质木制和大理石地板、特别设计的环形灯具、木制衣柜等打造优质家居。厨房配备齐全,如烤箱、炉灶、冰箱和洗衣机等,就连放碗筷的架子都配备好了。

星宇轩(The Antares)公寓的家私

星宇轩(The Antares)公寓的厨房

星宇轩(The Antares)公寓的厨房配备

星宇轩(The Antares)公寓的卫生间
星宇轩(The Antares)
投资升值潜能
星宇轩(The Antares)位于新加坡的心脏地带,距离地铁站只有100米距离,又位于成熟社区,周边购物、娱乐、健身和餐饮设施齐全,附近还又多所幼儿园、小学和中学。这样的位置必将吸引专业人士前来租住,提高租金回报率。公寓也靠近各种就业群,如Kallang Way、Tai Seng和Kg Ubi Industrial Estates等,提供大量的工作机会,进一步提升出租回报率。举一个例子,最近TOP的位于星宇轩(The Antares)附近的SIMS URBAN OASIS公寓,一卧室、二卧室和三卧室今年7月份的租金分别已达每月S$2,600、S$2,800和S$3,800新元,可见这一地带的公寓具有相当不错的租金回报率。
投资回报的另一个考虑因素是公寓的价位回升。这与新加坡及区域的大环境有关。但总体趋势是往升时的,这已得到专家们的论证认可。到2030年,新加坡的房产价格将翻番,这不是信口开河,是根据相关数据分析得出的结论。星宇轩(The Antares)位于新加坡的心脏地带,靠近东部地区。而东部的99年地契公寓的平均交易价在S$1700-S$1800之间。就拿附近的SIMS URBAN OASIS公寓为例,其最近的成交价已高达每平方尺S$1740。由此可见,星宇轩(The Antares)的升值潜能的明显的。
室内设计和雅居欣赏
星宇轩(The Antares)占地约6,230平方米(67,059平方尺),拥有99年地契,将建造2栋5层楼高、1栋17层楼高和1栋18层楼高的建筑,提供265个私宅单元,户型包括28套一卧室、7套一卧室阁楼、150套两卧室、14套两卧室阁楼、47套三卧室、3套三卧室阁楼、15套四卧室、1套四卧室阁楼,面积介于42-149平方米(452-1603平方尺)。
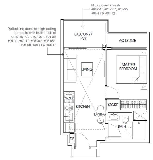
一卧室,套内面积42-56平方米(452-603平方尺),整套售价从S$789,000新元起。特点是户型方方正正,布局合理,无浪费空间,客厅配备全封闭阳台,卧室配备衣柜。这样的户型非常适合夫妻情侣享受二人世界,以及专业人士和学生。除了自住,也适合出租给高端专业人士。

星宇轩(The Antares)公寓的一卧室户型图
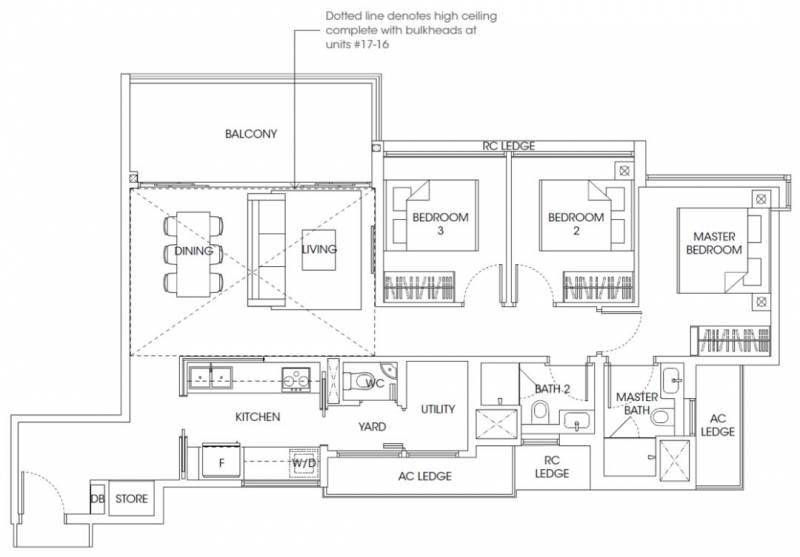
二卧室,套内面积61-82平方米(657-883平方尺),整套售价从1,125,000元起。特点是户型方方正正,布局合理,无浪费空间,客厅配备全封闭式阳台。两个卧室均配备衣柜,主卧室可放置King Size的大床,普通房也可放置双人床。这样的户型非常适合有个小孩的夫妻,以及相应的专业人士和学生,也适合喜欢与父母同住的年轻夫妇。除了自住,也适合出租给相应的高端专业人士。

星宇轩(The Antares)公寓的二卧室户型图
三卧室,套内面积82-127平方米(883-1,367平方尺)。整套售价从1,550,000元起。共同特点是,户型方方正正,所有房间均配备内置衣柜,主卧室可放置King Size的大床,其余2间普通房也可放置双人床。厨房相对独立,餐厅与客厅共享空间,并共享一个全封闭式阳台,拥有3个卫生间。这种房型特别适合有2个小孩的夫妻,以及专业人士和学生,或出租给相关高端专业人士。

星宇轩(The Antares)公寓的三卧室户型图
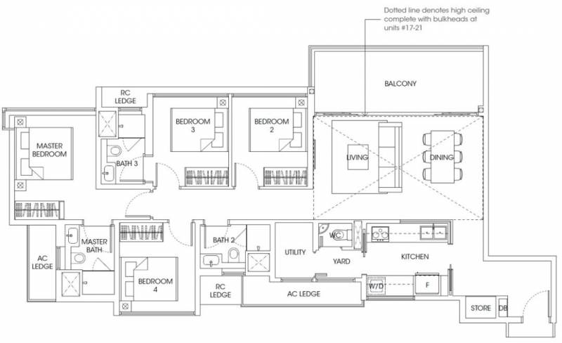
四卧室,套内面积127-149平方米(1,367-1,604平方尺)。整套售价从S$2,250,000新元起。四卧室户型方方正正,所有房间均配备内置衣柜。厨房相对独立,干湿厨房分开,还有储藏间,餐厅与客厅共享空间,并配备阳台。主人房可放置King Size的大床,并配备阳台,其余3间普通房也可放置双人床。三间普通房中有一间是准主人房,拥有相对独立的卫生间。这种房型特别适合有二三个小孩的夫妻,或与父母同住的家庭以及出租给相关高端专业人士。

星宇轩(The Antares)公寓的四卧室户型图
星宇轩(The Antares)的设计灵感来自浩瀚的宇宙、是少数以星体命名的公寓。星宇轩(The Antares)位于新加坡的心脏地带一样,正如心宿二星(Antares)位于天蝎座区位的心脏地带。公寓采用这样的设计可谓天人合一。
著名的美国哲学家和诗人Ralph Waldo Emerson曾经说,房屋由墙壁和横梁组成,而建造一个家需要爱与梦想。星宇轩(The Antares)坚信,公寓将建造坚实的墙壁和横梁,配以豪华的装备,制造爱的氛围,让这里的居民充满爱与梦想。公寓采用优质木制和大理石地板、特别设计的环形灯具、木制衣柜等打造优质家居。厨房配备齐全,如烤箱、炉灶、冰箱和洗衣机等,就连放碗筷的架子都配备好了。公寓靠近各种就业群,提供大量的工作机会,进一步提升出租回报率。公寓附近有6家政府小学,为期待自己的孩子能进入新加坡政府小学的外国朋友提供一个很好的选择。
评论