摩登生活,奢适兼得!Penrose(D14邮区 阿欲尼)
余量不多的品质大盘!
3-4室户型,99年产权,D14邮区,专为豪华且舒适生活而设计!



简介
Penrose公寓是由Hong Leong Holdings & City Developments开发的新型住宅,该公寓位于新加坡第14邮区,Aljunied。此公寓专为豪华和舒适生活而设计,非常适合钟情于现代风格的置业人士。室内空间宽敞而舒适。拥有温暖的内饰和诱人的氛围,为你打造真正美好的幸福家园。

楼盘所在位置


新加坡邮区分布图

楼盘概况
楼盘名称:Penrose
开发商:Hong Leong Holdings & City Developments
产权:99年
完成年份:2025年
单位数量:566
楼层数量:18
起始总价:新币 S$1,964,000 起
每平方英尺起始:新币 S$1,659 起










卖点
豪华与舒适共存的设计
生活便利
位于新加坡东部阿裕尼地区,与该地区接壤的有巴耶利巴,加冷等地区,为居民提供一切所需生活休闲设施
附近美食:
· Sims Vista Market & Food Centre
· Haig Road Market & Cooked Food Centre
· Old Airport Food Centre
交通方便
靠近Aljunied地铁站,步行5分钟
地铁1站即达Paya Lebar 地铁站
优质的教育资源
附近学校:
· Ceylang Methodist School
· Canossa Catholic Primary School
· Kong Hwa School
· St. Margaret's Primary School
· James Cook University Singapore
购物方面,满足日常需求
市中心离Penrose仅有6分钟的车程,历史悠久的购物中心很好的满足你的各种购物需求,不管电子产品,箱包,衣服到事物应有尽有
附近购物中心:
· Paya Lebar Quarter · Paya Lebar Square · SingPost Centre · KINEX · Kallang Wave Mall
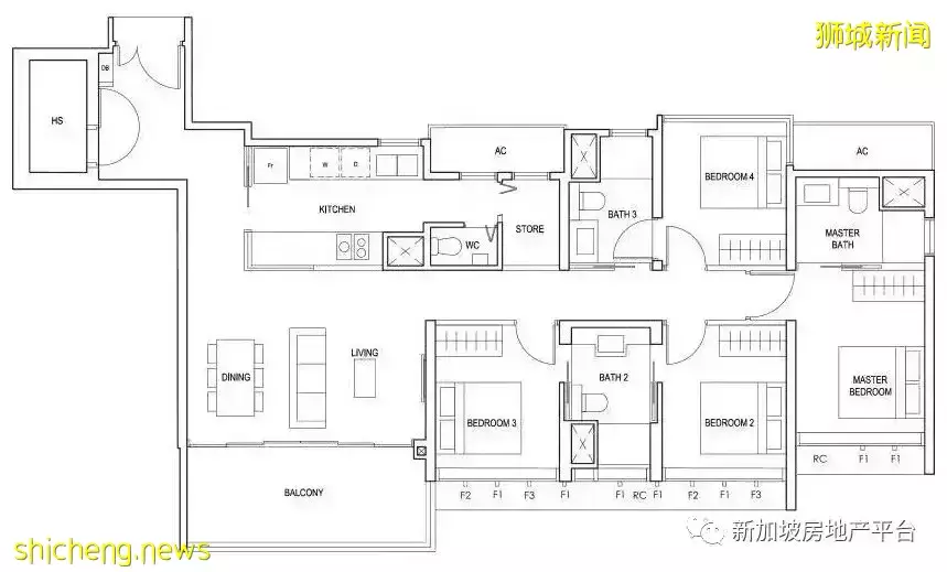
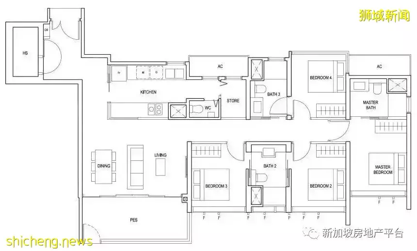
户型分布

主力户型
3室+书房
新币 S$1,964,000 起
(3+1)a1户型 3室+Study 1184平方英尺/110平方米
25%首付:S$491,000 / 75%贷款:S$1,473,000
30年贷款,2%利息,月供:S$5,444

3室+书房
新币 S$2,006,000 起
(3+1)c1户型 3室+Study 1173平方英尺/109平方米
25%首付:S$501,500 / 75%贷款:S$1,504,500
30年贷款,2%利息,月供:S$5,561

4室
新币 S$2,290,000 起
(4)a户型 4室 1389平方英尺/129平方米
25%首付:S$572,500 / 75%贷款:S$1,717,500
30年贷款,2%利息,月供:S$6,348

4室
新币 S$2,300,000 起
(4)a1户型 4室 1389平方英尺/129平方米
25%首付:S$575,000 / 75%贷款:S$1,725,000
30年贷款,2%利息,月供:S$6,376

4室
新币 S$2,355,000 起
(4)b户型 4室 1399平方英尺/130平方米
25%首付:S$588,750 / 75%贷款:S$1,766,250
30年贷款,2%利息,月供:S$6,528

评论