新加坡滨海湾豪华公寓South Beach
“南海滩住宅,新加坡“
许多人的图标,少数人的家
South Beach 是一个享有盛誉的综合开发项目,位于新加坡最繁华的地区中心。这个标志性的开发项目将拥有住宅和商业设施,其中包括带有公寓和顶层公寓(penthouse)的豪华公寓、高档办公空间以及零售商店等。除此之外,南海滩还将成为高端酒店和会员制会所的所在地,并提供众多娱乐设施。

当经过滨海艺术中心,可能只有少数人知道,这座独特的“波浪形建筑”背后是由一座五星酒店,高端商业空间和超豪华住宅组合而成,从而交织出一种独特的精英生活方式。South Beach 位于CBD地区,但周围没有令人窒息的高层建筑--也因此使得其成为了周边唯一一栋引人注目的新加坡豪华高楼。

South Beach 是一个主要的综合开发项目,将四座保守建筑与两座新设计的塔楼融合在一起,包括高级办公空间、32,000 平方英尺的餐饮和零售空间、一间带俱乐部设施的设计师酒店和 190 间豪华住宅,从 2 到 4 间卧室和 6 个顶层公寓单位不等。总面积达 510,000 平方英尺。

这是整个公寓的一张整体规划图,其中位于level22和level32的两个sky garden无疑是整个公寓的一大亮点。
其中位于level 22的sky garden是一个泳池甲板,这个巨型的空中无边泳池可以将滨海湾的靓丽风景尽收眼底。除此之外,泳池尽头专门为儿童设计的浅水区,也为儿童在愉快玩耍的同时提供了最大的安全保障。在这里,您不光可以躺在休息躺椅与座位上欣赏新达城区的景色,泳池边还有一个专门提供茶水,咖啡等茶点的柜台供您选择。在泳池旁边,穿过一个休息走廊,便是一间室内的健身房,健身房面积适中,提供不同的活动如有氧和力量训练组合等。因此,在这里,您将体验到多种多样的休闲娱乐方式。

接下来让我们来到位于level 33的sky garden,这是一个交互娱乐型甲板。这里将有一个小型的儿童泳池和一些娱乐设施专门供小孩子🧒玩耍。更为特别的是,这一层所特别打造的室外健身房,将能让您体会到与大自然密切接触的独特健身体验,同时也能观赏到更开阔的风景。在这一层还会有一个挑高设计的阅览室,您可以在这里进行办公,会议,阅读。除此之外,还包括其他一些休息和户外饮食的区域。

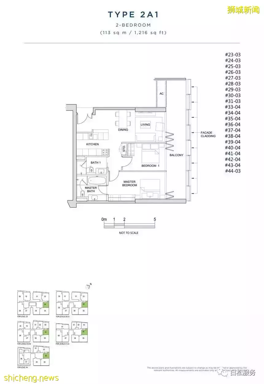
两室户型图

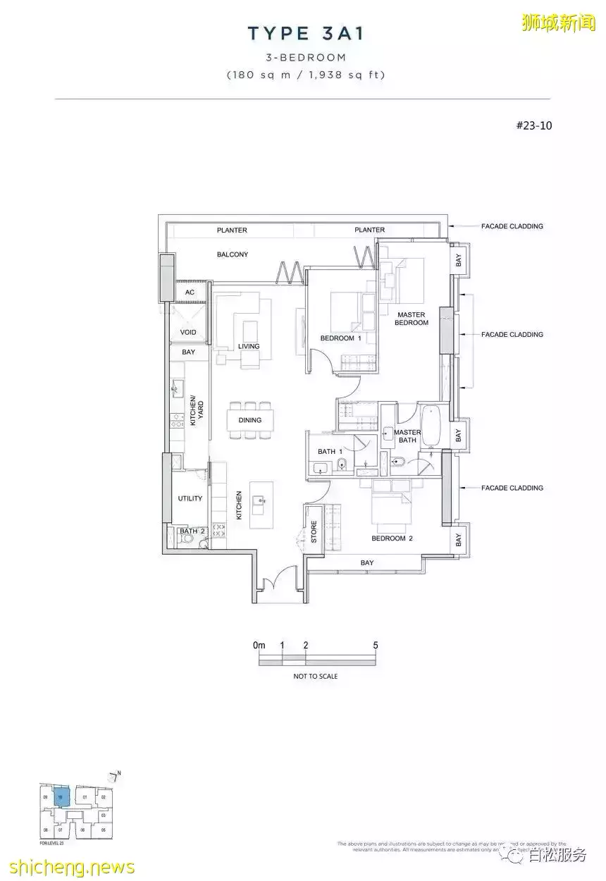
三室户型图

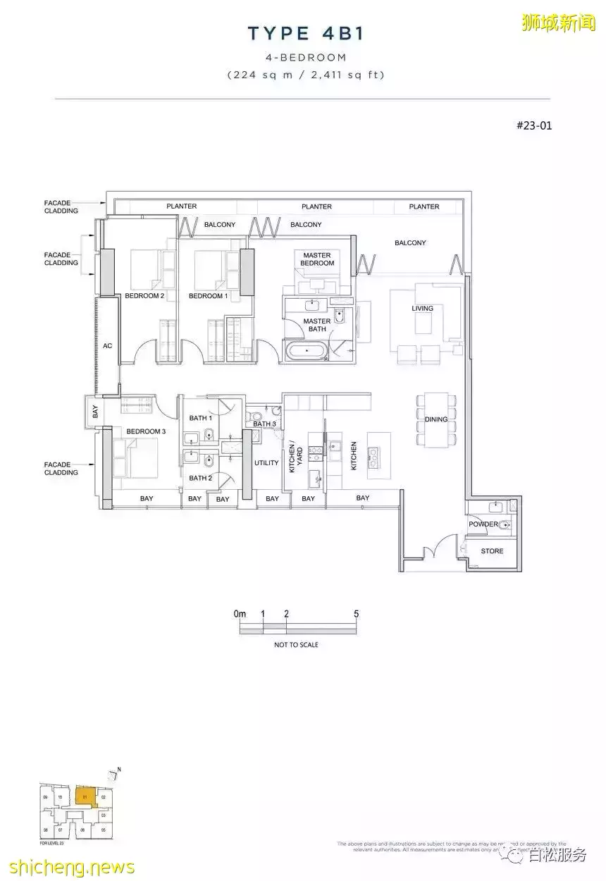
四室户型图

地理位置
除了优越的地理位置,其便利设施和零售店使南海滩成为了令人羡慕的工作和娱乐场所。滨海艺术中心地铁站就在这个主要开发项目的旁边,这个地铁站将您连接到环线(CCL),方便您前往多美歌,麦克弗森,实龙岗和荷兰村等地,它的中心位置使所有居民都可以通过捷运方式前往城市的重要地点。比如中央商务区的莱佛士坊距离酒店仅一站路程,而市政厅地铁站也仅需数分钟的步行路程。除此之外,南海滩的地理优势还体现在附近的人到南海滩的便利性,因为主要道路和无数辅助道路可以让人很容易找到通往南海滩的路……
当然,在这样一个繁华的地段,南海滩周围各种各样的餐饮场所也是应有尽有,其中Tan Quee Lan 和 Liang Seah 街都可以满足哪怕是最挑剔的口味。无论是寻求亚洲美食,还是更国际化的风味,总有一些出人意料的美食可以满足所有顾客。因此,除了一天的旅游或购物体验外,也不要忘记参观打卡该地区的多家餐厅哦。
它的中心位置使其前往新加坡管理大学只需一站捷运远。距离史丹福小学,花拉公园小学等也十分近。并且它离艺术学院的居民只有一站远,成为那些需要轻松进入这些教育机构的人的绝佳选择。
购物广场 与公寓的距离 预计步行时间 滨海艺术中心 170米 步行3分钟 莱佛士城购物中心 400米 步行5分钟 新达城 600米 步行9分钟 千禧年 650米 步行9分钟 城市广场购物中心 2.9公里 11分钟车程 乌节路购物带 5.9公里 15分钟车程


评论