今天,锦泰门第的样板房就关了
锦泰门第Parc Clematis的样板房也要关门了,新加坡市场上能看的好项目又少了一个。

优点就不详述了,户型,设施,视野,学区,交通,购物,没有缺点,属于六边形项目。
不知不觉这个1468间单位的霸级项目,已经卖了95.71%了:

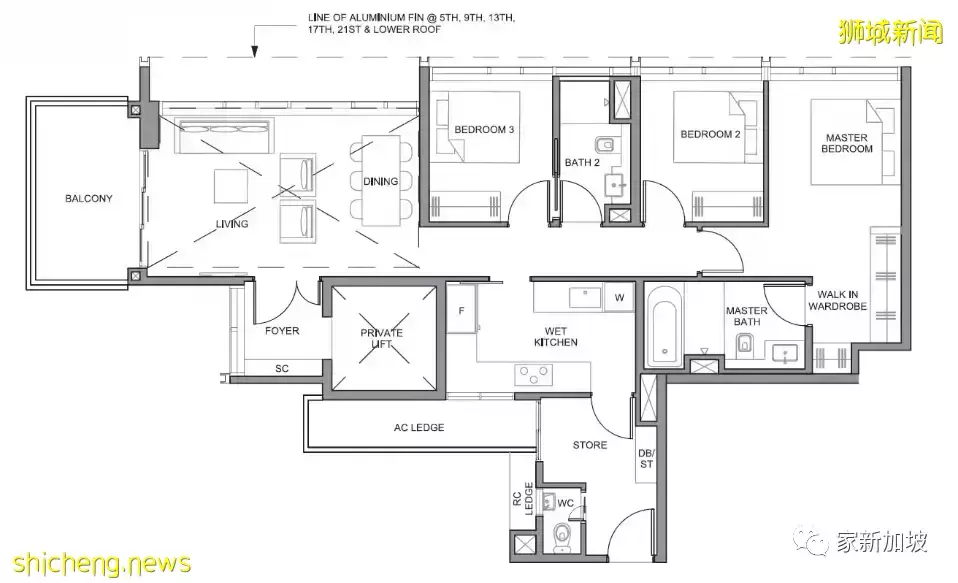
剩下的单位里,以大户型为主,还有几套别墅单位,每个户型都很符合自住的定位: 大三卧还有4间,面积116平方米,市场上少有的大面积。私人电梯,阳台面积刚刚好,客厅餐厅双面窗,主人房带衣帽间,普通房可以有自己的独立厕所:

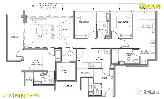
大四卧还有17间,面积139平米,同样是市场上少有的大面积。私人电梯,双主人房设计,适合三代同堂的家庭,客厅更加宽敞,俩娃一起玩没问题。

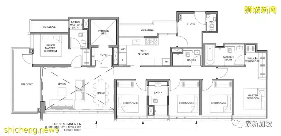
大五卧还有32间,面积159平方米,依然是市场上少有的大面积。除了私人电梯,双主人房之外,三个普通房面积一致而且都很宽敞,分用两个卫生间,特别适合三娃家庭。

自住买家不要错过这个项目,以后想在二手市场找到类似的单位是很难很难很难的。
外部设施也很重要,作为千户以上的霸级项目,本身自带的资源就很丰富,无论对于孩子的早期成长,还是大人的人脉发展都很有帮助。
巨大的沙滩泳池:

音乐厅和电影院,是小区公用设施:

共享厨房,秀厨艺的好地方:

娱乐室和会议室,朋友聚会首选地点:

值得拥有。
评论