靠地铁站和三个商场今年最便宜的项目将于2月26日开盘,户型图新鲜出炉,欢迎预约前来看房
1. The Arden 雅诗轩

The Arden是青建最新的一个项目,预计下周六2月26日开盘,开发商预示价$1500psf起,2房不到100万起,3房150万,可能是今年靠近地铁站最便宜的楼盘,这是项目简介视频:
这是主要卖点:
105个单位的中型项目,都是2到4房
由多次获奖的开发商开发-青建地产
成熟区99地契7万多平方英尺的稀有地皮
即将来临的Sugei Kadut的复兴计划,Downtown Line延长到南北线

前往Bukit Panjang MRT/三个Shopping Mall只需几分钟

一公里内是Teck Whye和West View小学

小区处于高地风水极佳,所有房型均南北朝向
2. 项目位置
The Arden靠近Bukit Panjang的别墅区,马路另一边是组屋,所以自身环境清幽,但是想享受组屋区设施比如巴刹或者食阁也方便。


小区对面就是Phoenix LRT,走7分钟就到Bukit Panjang MRT,那边也有Junction 10, Hillion Mall和Bukit Panjang Plaza等商场,未来靠近地铁站还会有一个居住和商场一体化的项目,估计尺价会超过2000psf。

现在Bukit Panjang地铁站去市区很方便

The Arden附近还有许多Bus站,去哪都很容易

3. 小区设计
The Arden的设计简洁大气,户型比较像Jadescape多些,也拿了个Best Boutique Condo的奖。

从照片看起来像豪华公寓

跟别墅区共用一条马路开进去

一共三排楼,中间有一片是蛮大的泳池

另一片是草地和Club House等设施

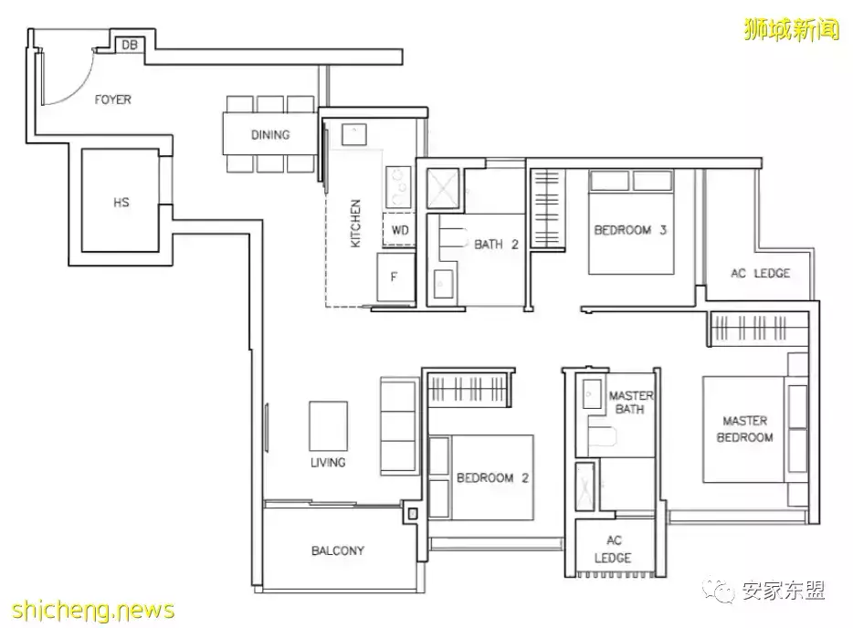
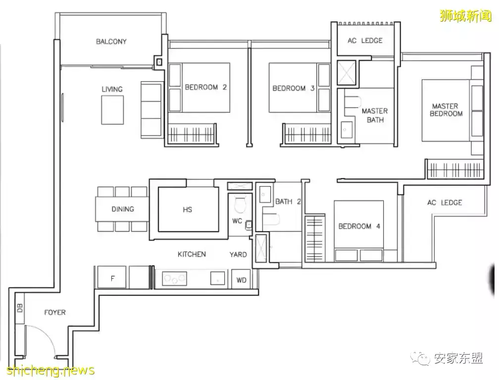
Site plan和户型图如下,要强调的就是这个房子层高3.2米,比一般公寓要高,而且柜子做到顶,很多储物空间

三排楼,都是南北朝向

二房一卫657尺,飞机型户型

二房二卫721尺,都是泳池朝向

小三房1012尺

大三房1109尺

小四房1206尺

这是预期的卖价,$1500psf起

这个价格相对于别的靠近地铁站楼盘,是相当便宜的了,跟Canberra的Watergardens和the Commodore差不多

开盘希望价格还有惊喜,因为这个盘地价当时蛮低的,比开发商后来标的Tampines EC还低。


评论