新春好运不断,购房大礼不停
The M新春促销期间备受购房者关注,推出多个购房红包,均已被秒抢。新春好运不间断,The M特此追加的3个价值新币$48,00的购房红包也仅剩最后2个,把握最后良机,享受高额折扣!
价值新币$48,000购房红包等您来抢!
任意2套单位 (不限户型)
截止日期:2022年2月20日

推荐户型
1房+书房户型鉴赏
#17-40 面积:527平方尺
价格:新币$1,537,000(折扣前)

样板房实景:https://my.matterport.com/show/?m=L7hc96KBsPj
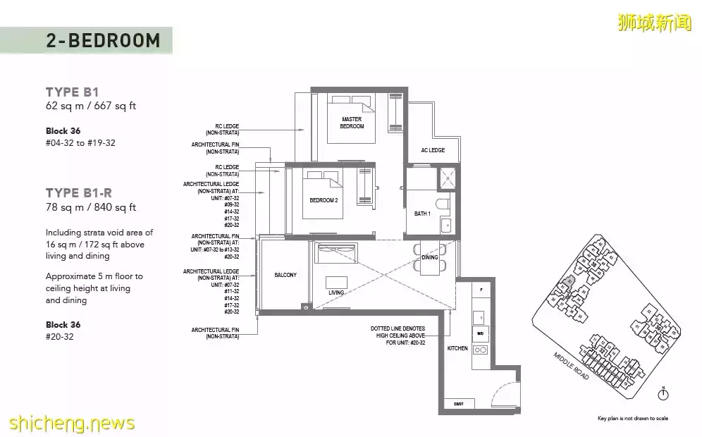
2房户型鉴赏
#16-32 面积:667平方尺
价格:新币$1,879,000(折扣前)

样板间实景:https://my.matterportvr.cn/show/?m=VcBBr2qXtNh
2房+书房户型鉴赏
#16-33 面积:753平方尺
价格:新币$2,179,000 (折扣前)

样板间实景:https://my.matterport.com/show/?m=LK9QB36zvy7

新加坡核心商圈精品公寓
中心之上 万象合一


绝佳联通
四条地铁线皆在步行范围内:步行4分钟至Bugis武吉士地铁站东西线(绿线)、市区线(蓝线)。步行6分钟至City Hall政府大厦地铁站南北线(红线)、东西线 (绿线)。步行8分钟至Esplanade滨海艺术中心地铁站环线 (黄线)。驾车大约5-8分钟车程就可以抵达购物天堂乌节路,大约5分钟到中央商业区(CBD)。

城市中心,生活不打烊
武吉士是一个极受年轻人欢迎的购物区和文化区,项目可步行至Bugis Junction购物中心,24小时畅想各国美食和丰富的休闲娱乐生活。著名的美食街连城街(Liang Seah Street)和陈桂兰街(Tan Quee Lan Street)也位于项目后方。附近还有网红打卡地: 哈芝巷(Haji Lane),聚集了新加坡设计师小店,缤纷房舍与壁画洋溢着浓厚的街头感,许多中东餐馆和具有特色的酒吧,可让住户忙碌工作后去那里放松心情。

文化生活 艺术传承
靠近国立博物馆与国立图书馆,与新加坡顶级三大艺术院校为邻。打造文化生活和艺术的传承,携手本地年轻艺术家共创文化艺术的圈层。

设计师团队
The M 是由著名的设计师团队进行打造的, 包括获奖无数的项目设计公司巴马丹拿集团,以及世界一流的室内设计,景观设计,灯光设计公司。

巴马丹拿的设计作品
项目设施
The M分别打造了两个露天平台,公寓的基础设施都分布在这两个地方。一个是停车场上方的区域,另一个则设立在了6层建筑的天台上。住户在露天平台可以随时观赏到城市的繁华景象,不论是白天的绿植覆蓋,还是大楼夜晚的灯光设计,The M也会成为这条热闹街道上标志性建筑之一。项目除了提供像50米泳池、健身房、瑜伽台和花园凉亭等设施外更是精心打造了一个M俱乐部,这是一个精心打造的共享生活空间,住户们可以在这里进行工作、健身、聚会等活动,或者是共享烘焙区制作一份喜欢的美食。



项目概述

项目名:The M
地址:新加坡第七邮区—30,32,34,36,38 Middle Road(密陀路)
总套数:522套单位(3栋20层高楼和1栋6层的低楼组成)
户型:1卧房—3卧房
面积:409平方尺—904平方尺
容积率:4.2
交房日期:2024年
地契:99年
评论