新加坡2600㎡超级豪宅,竟然会“隐形”

豪宅
2600㎡超级豪宅
灵活操纵建筑
时光与风格的艺术交叠







然而设计师并不打算单独以此制胜——为了致敬传统平房,Hidden House以木饰面和神似套图屋顶瓦片的铜板为主材,走进大门,红白相接的砖瓦房更是令人倍感亲切。


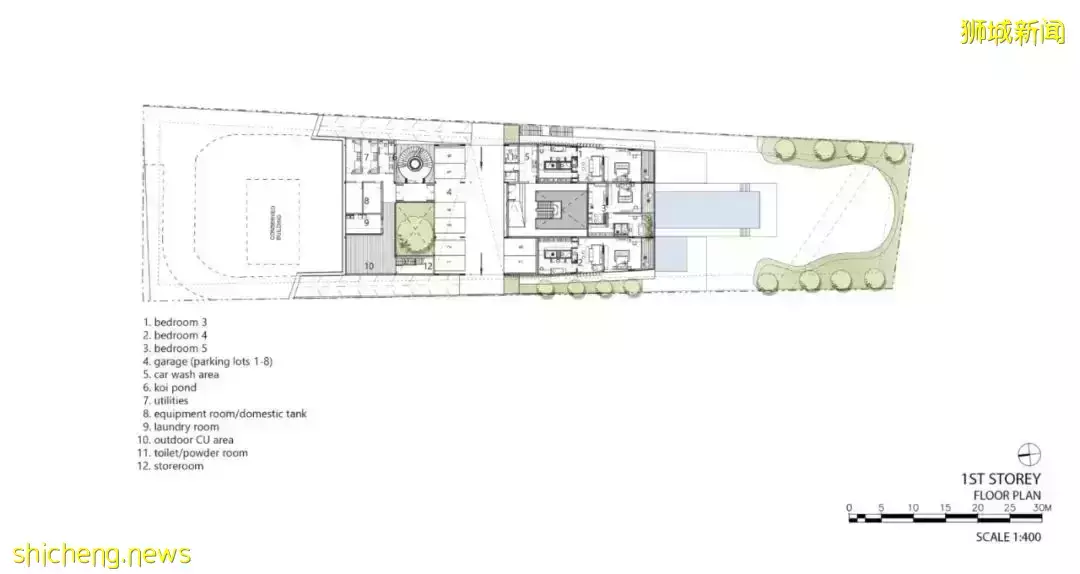
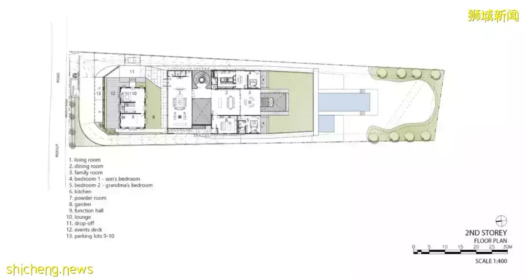
3处庭院
光内外合一 美好共赏

第三个庭院则位于车库旁,为居者铺就归家美好。

纯粹与奢华并行
写意格调空间

泳池水面“漂浮”著的楼梯被细长的金属格栅裹挟,兼具轻盈与稳固,整齐的竖直线条令人很容易联想到水流。


大门保持高度对称的形态,同时表面线条抽象组成了居者的家庭姓氏“林”字。





就餐区置于柔软的地毯上,后侧的大理石墙呈现出氤氲扩散的纹路,为这里奠定了静谧的生活基调。

旋转楼梯与电梯结合得恰到好处,黑白色系的搭配绅士而优雅。

卧室大多温馨淡雅,深色原木与留白淬炼时光,为简约之形中注入传统中式内涵。


扎根传统
自有新意衍生

电影院也是室内一大亮点,六边形元素打造出极具科技感的空间。







评论