新加坡永久地契公寓 喧嚣中的宁静家园 Tedge
项目简介
名称:Tedge
开发商:Malcy Capital Pte Ltd
产权年限:永久产权
规划类型:公寓
总单位:42户住宅,2间商店,2间餐馆
地址:新加坡樟宜路328号第14区。
主户型:。
2室:72平方米
3室:76-96平方米
4室:95-110平方米
单价:新币 S$1,600/平方英尺起
总价:新币 S$1,140,000(约562万人民币)起
付款方式(外国人):
首付:房款的50%
尾款/贷款:房款的50%
交付日期:2022年
物业设施:
25米长的泳池,Jacuzzi,⽇式烤肉台、健身房、2个露台花园等。
01 项目介绍

Tedge位于新加坡的东部第14区,毗邻两个地铁站Eunos和Kembangan,是⼀个低密度的综合发展项目。整个项目十分注重环保绿化,外墙有绿植环绕,此外还有2个露台花园,让你有⼀种在喧嚣的闹市中找到绿洲般心旷神怡的感觉。

项目亮点
地理位置
Tedge位于高档住宅区的中心位置,周边都是低层私人住宅,汇集了东部各类净化设施,住宅左侧是令人兴奋的生活方式飞地如切(Joo Chiant)和加东(Katong),南边是东海岸花园(East Coast Park),往东驱车几分钟就是樟宜机场(Changi Airport)。
交通方便
4分钟到德明熟食中心
5分钟步行至景巴岸地铁站
5分钟到百汇广场
5分钟车程至ECP
6分钟到马林百列中心巴刹与熟食中心
12分钟到友诺士地铁站
15分钟漫步到东海岸花园
实力雄厚
知名房企Malcy打造;
独家收藏了42套自然风格的房屋,天棚公寓和4个商业 单位 ;
令人兴奋的混合发展,拥有两家零售店和两家餐厅
极高的转售和租聘潜力;
环顾四周,投资良机,错过不再有

1公里内的学校:
OSAC International College
Tao Nan School
St. Patrick's School
2公里内的学校:
Tanjong Katong Girls' School
Victoria Junior College
Global Indian Int'l School
Rosemount Int'l School
Canadian Int'l School
02 项目环境
该项目的⼀楼是商铺及餐馆,2-5楼是住宅单位,5楼全部是penthouse单位。该项目有三层地下停车场,地下⼀层是商户停车场,地下2层/3层是住户停车场,其中地下三层有32个停⻋位全部是全自动AGV(Automated Guided Vehicle)停车。住户享受⾼科技同时也完全不用担心隐私及安全问题。
公寓在顶层配有⼀个25米长的泳池,Jacuzzi,日式烤肉台以及健身房。






03 样板间






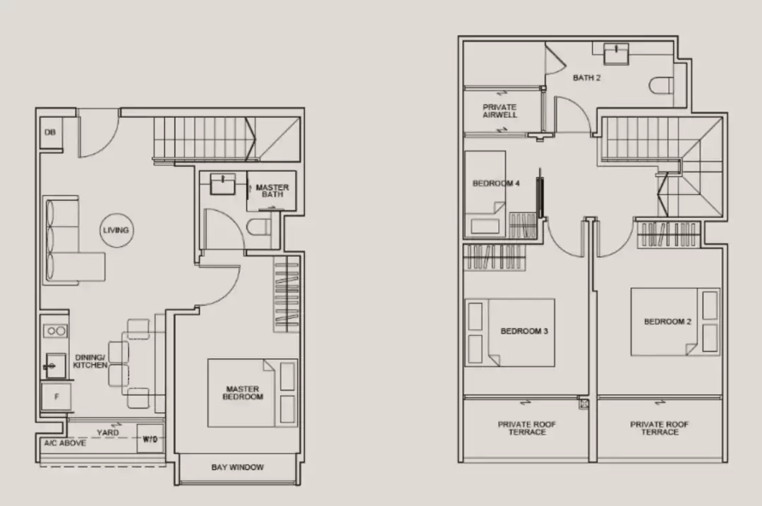
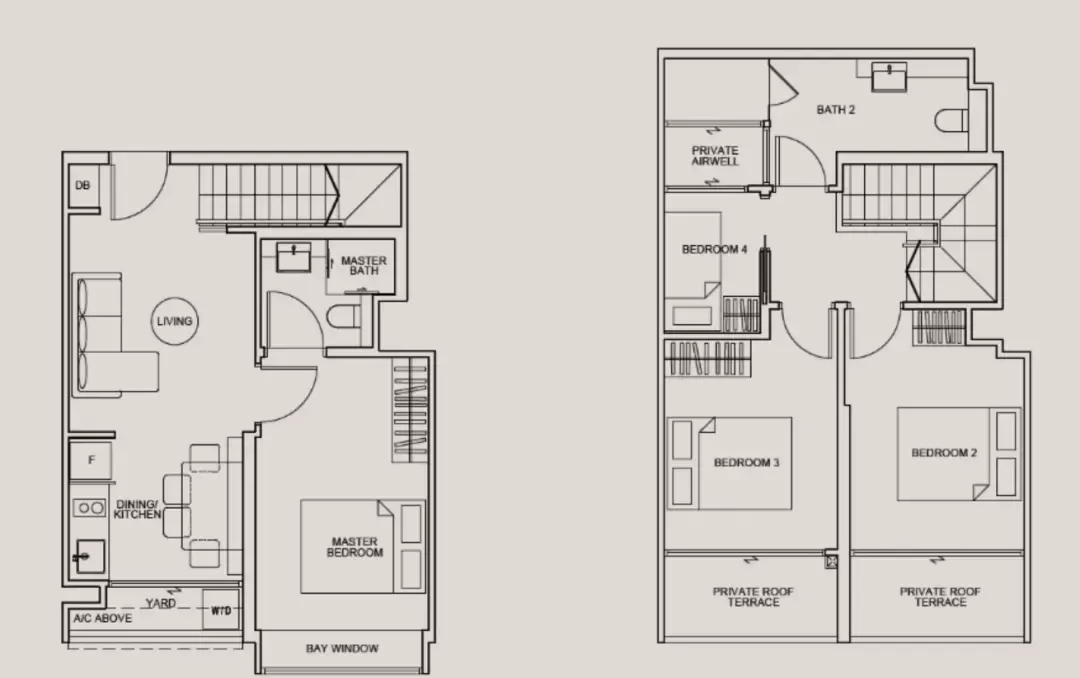
04 主力户型
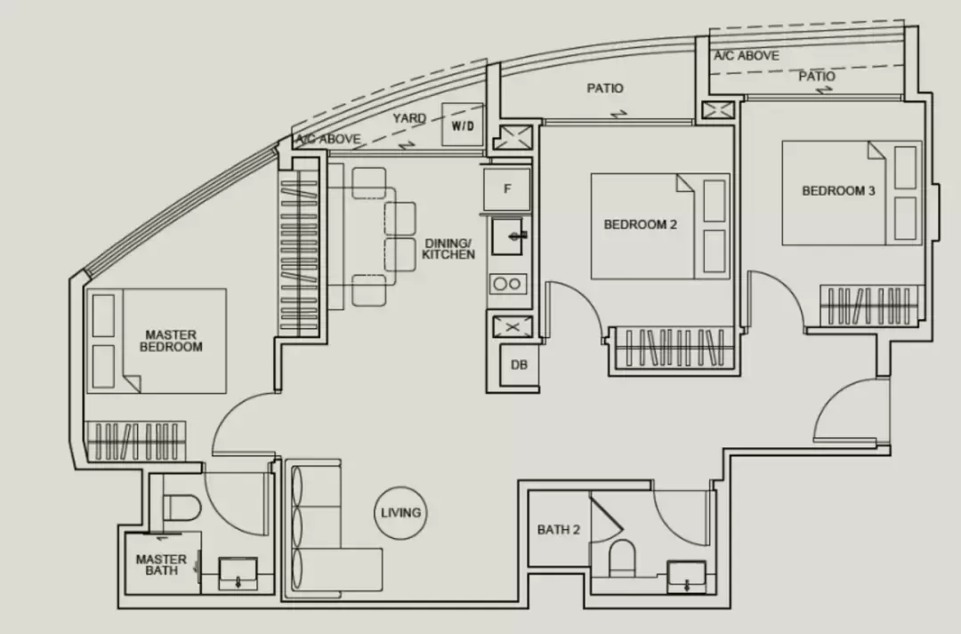
Tedge的户型方正,设计非常合理,整个面积利用率超⾼。拿展示单位来说,80平方米的面积的三房,客厅的宽度达到了3.6米(⼀般的新房现在是2.5米左右),层高也是较高的2.8米。
此外,每个卧室的面积都有13平米(⼀般的新房现在是9-10平方米),主卧室更是达到了19平方米,相当的宽敞。此外,摆放空调外机的地方发展商采用了独特的悬挂式设计,本来不可以使用的⼀块地方现在可以当作小阳台摆放洗衣机或是收纳空间,完全没有⼀丝⼀毫的浪费。
两居室

三居室












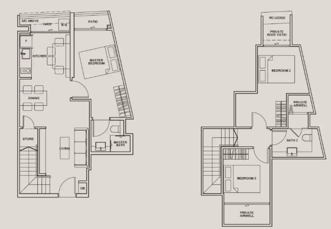
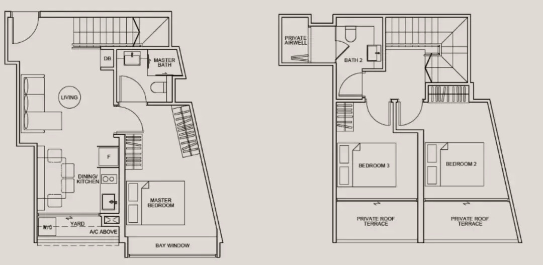
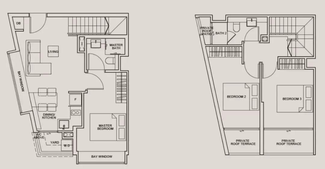
四居室









评论