新加坡高级公寓(特殊户型)鉴赏 没吃过猪肉来看看猪跑
继奇葩组屋户型的探讨之后,今天我们来扒一扒公寓中各种特别的户型。
不过公寓户型千奇百怪,我们也只能从各种设计中挑几个独特的。要是你发现了某个宝藏户型,请私信我们分享!
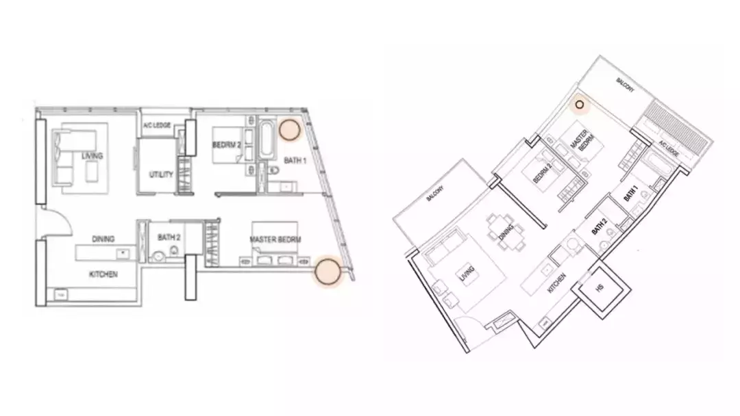
吉宝湾映水苑
Reflections at Keppel
论世间奇葩户型几多愁,逃不过柱子在房中随便留。

坐落在吉宝湾的这套高级公寓是美国知名建筑师Daniel Libeskind(丹尼尔·里伯斯金)在新加坡设计的唯二建筑之一。另一栋也在这栋附近,但是平平无奇。
Reflection的整体设计与公寓旁海湾口的游艇帆船相映成趣,旋转弧形的楼体设计也使得每一层都能看到角度不同的风景。

公寓旁便是私人游艇的港湾。
但现实跟不上大师那一骑绝尘的设计概念,旋转的楼体也在现实中给结构带来了很大的挑战。

最终,有些户型中出现了位置清奇的柱子:

说好听一点,这场灾难好像有颗树长得不太专心,一不小心就从你卧室穿过。
要是你不幸获得了一套这样的房子,装修时那可得好好规划一下如何处理柱子边的残留空间。(好像又暗示到了什么。)

丽敦豪邸
D’Leedon

相比之下,同为国籍知名建筑师Zaha Hadid(扎哈·哈迪德)设计的丽敦豪邸虽然也有些与众不同,但在结构的安排上就合理得多。

来自女大建筑师的凝视。

这位女建筑师也以圆弧的设计风格而出名,但细看公寓中弧度的利用,正好通过合理的房间分割而消化了。每间房中都只有一两处是斜的,衣柜的设计也把难摆平的角落收拾了一下。


这种为住户考虑的建筑师才是真正有人性的建筑师。建筑最终也是为了人服务的,美观还是要和实用相结合才是伟大的作品。
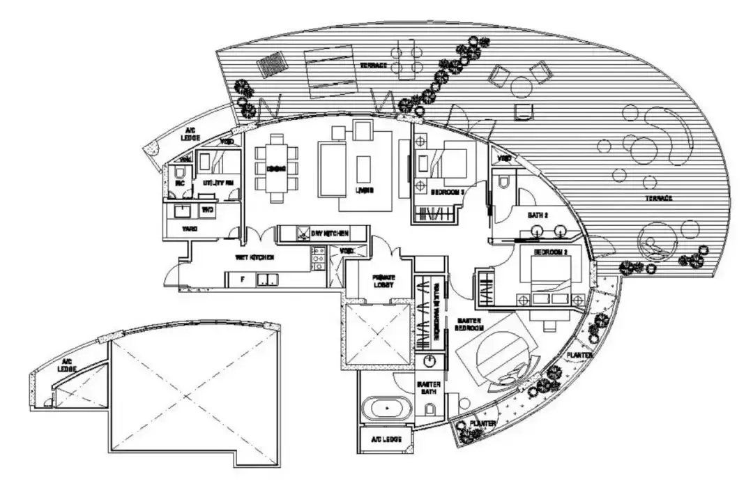
涛源湾
Seascape

说到弧度,那也可以联想到位于圣淘沙的涛源湾。这套高端公寓的每一层都按游艇设计为出发点,每一户都配有类似船头的弧形大阳台。

分分钟就可以在家上演不会翻船的杰克and肉丝。

因是高端公寓,大把的空间也意味着超大的客厅载量,在图右的豪宅中,还能实现空中的私人泳池。
iLiv @ Grange

说到放飞自我的阳台,那另一栋位于乌节路附近的高档公寓也可分一杯羹。

看看着阔绰的平面设计。

由意大利公司设计的这栋公寓的每个阳台都非常大,弯弯一圈,而且各不相同。除了阳台,每间房也由弧度构成。
再次找到方型家具的杀手户型,是不是让人联想到了上一篇中的四叶草组屋?
汉美登
Hamilton at Scotts

同为超豪华公寓,位于乌节路附近的汉美登著规整许多。但人家豪就豪在拥有亚洲最高的空中车库,每套公寓都配有两个空中车位,就算住在20层的高度,也能从自家的客厅观赏自家的豪车。

图中打叉叉的地方便是车用电梯以及空中车库
住户只需把车停在地下一层的指定位置,然后车子就会按照专门的电梯直达住户楼层。当户主人到家时,车子也正好到家。

你以为有钱人就一定快乐吗?
不,有钱人的快乐你根本想像不到。

优景苑
Goodwood Residences

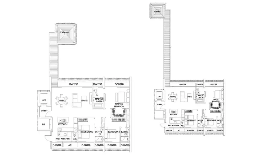
本地事务所Woha所建的优景苑乍一看上去中规中矩。每套均为四四方方的盒子,但仔细观察之下,发现好几套房子都像是有一支向外伸出去的膀子,膀子尽头是一间间小亭子。

原来,这是一些住户独有的半开放式空间(Cabana),且只能从住户的客厅进入。
承包不了鱼塘,亭子总能承包一个。

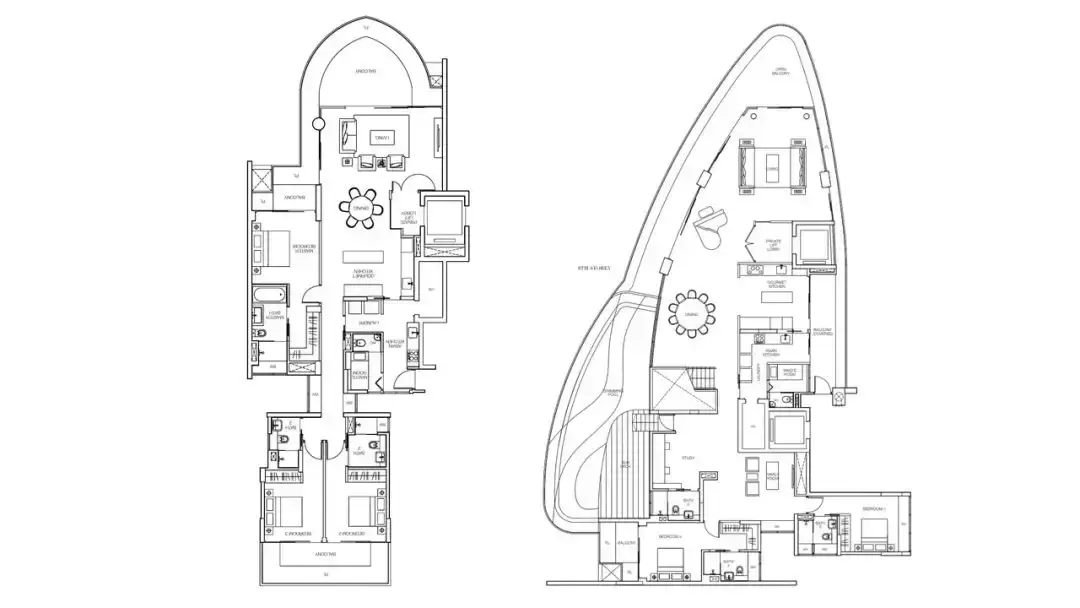
番外:新加坡面积最大的公寓——华利世家顶层公寓
Wallich Residence

坐落在丹戎巴葛地铁站之上的华利世家拥有新加坡最大的顶层公寓,总面积在1960平方米左右。
它也是新加坡最高的顶层公寓。所属的Tanjong Pagar国浩大厦也是新加坡现在全岛最高的建筑物。

这座套房子原属James Dyson(詹姆斯·戴森)所有,在去年以六千两百万的价格转手给了出生印尼的美国华侨Leo Koguan(廖凯原)。这套公寓除了“平平无奇”的私人泳池和酒吧之外,还配有可珍藏600瓶美酒的酒窖,娱乐室以及按摩浴室。


小结
做为一枚普通的社畜,这几栋公寓已经足够大开眼界的了。

但是你以为这就豪华了吗?并不是!
参考文献:
https://stackedhomes.com/editorial/most-expensive-condos-singapore/#gs.yubvvg
https://www.archigardener.com/2014/05/50-cool-condos.html
https://www.edgeprop.sg/property-news/8-most-awe-inspiring-condos-singapore
https://www.singsaver.com.sg/blog/best-luxury-condominiums-in-singapore
https://www.99.co/blog/singapore/unique-condos-conserved-buildings/
https://www.straitstimes.com/business/property/dysons-sell-3-storey-penthouse-at-wallich-residence-in-singapore-for-62-million
公寓图片均来自网络
评论