马上买马上住!新加坡难得的永久产权现房楼盘,到底长啥样
买房是一件让人充满期待的事情,但如果还要等上几年待它建好,也是有些磨人。

尤其是在这个疫情阶段,太多不确定因素。所以,要是在新加坡能够遇到个“马上买马上住”的楼盘,虽然不多,但是真香。
比如我要说到的这一个:
Royal Green 御景苑

武吉知马十几年来推出的为数不多的永久产权项目,位于新加坡第10邮区安娜马来道(Anamalai Avenue),附近就是优质洋房和别墅,妥妥的富人区。

背后的开发商——长春产业(Allgreen Properties),实力不容小觑,一直很青睐武吉知马这一区,这几年拿下黄金地皮打造了多个优质楼盘。

比起动辄高楼大厦的楼盘,Royal Green打造的是低密度居住环境,一共285套公寓,分布在8栋5层楼高的住宅楼里,户型则有两卧单位至四卧单位等多种。

让我们从其他方面再来看看:
地段
虽说这类高端住宅区,住户们大多都是自驾出行,但Royal Green选的位置还是相当不错的,第六道 (Sixth Avenue) 地铁站也就5分钟的步行距离。比如平时要带孩子和家人去个植物园,也就两站地铁而已。

如果是有车一族,可以经由武吉知马路、杜尼安路、快速路PIE轻松出行。12分钟车程就可以去乌节路,19分钟就能去往滨海湾金融区。
环境
就如同它的名字Royal Green一样,走进小区就是满眼的绿,仿佛城市绿洲。

高端住宅小区,也是考虑到了住户们的各种休闲需求,比如:
下班后到50米的泳池里畅游,壕嘛

来场网球赛

烛光晚餐

开个派对?疫情过后完全没问题
沿着空中桥梁散散步......

这样的环境与设施的确值得好好逛一逛,但如果是走出去,别忘了这里可是著名的武吉知马,有植物园、武吉知马自然保护区等多个天然氧吧,每天来场徒步也不是不可以嘛!

便利
附近的Bukit Timah Plaza、Coronation Shopping Plaza、Beauty World Centre足够满足你的日常购物需求。或者也可以一小段车程去乌节路或是荷兰村逛逛。

想感受下地道的南洋美食?武吉知马美食中心倒是个好去处。此外,附近还有好几家非常值得去打卡的餐厅。

教育资源充足
历史悠久的南洋女子中学,就位于Royal Green的1km范围内。

此外,美以美女校(小学/中学)、国家初级学院、华侨中学、莱佛士女子小学、南洋小学等等名校,都是2km范围内。

虽然名校两公里没啥用,中学要考试,但是住的靠近,小孩能多睡一会儿也是好的嘛。

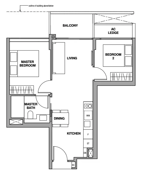
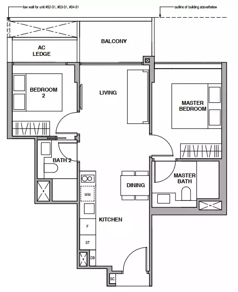
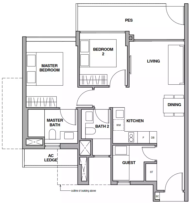
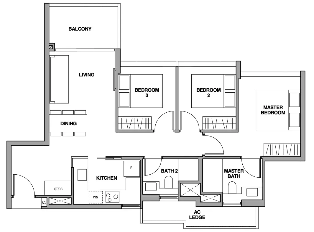
最后再来看看有哪些户型吧:
2卧房

2卧房豪华

2卧+书房

2卧+客房

3卧房

3卧+书房

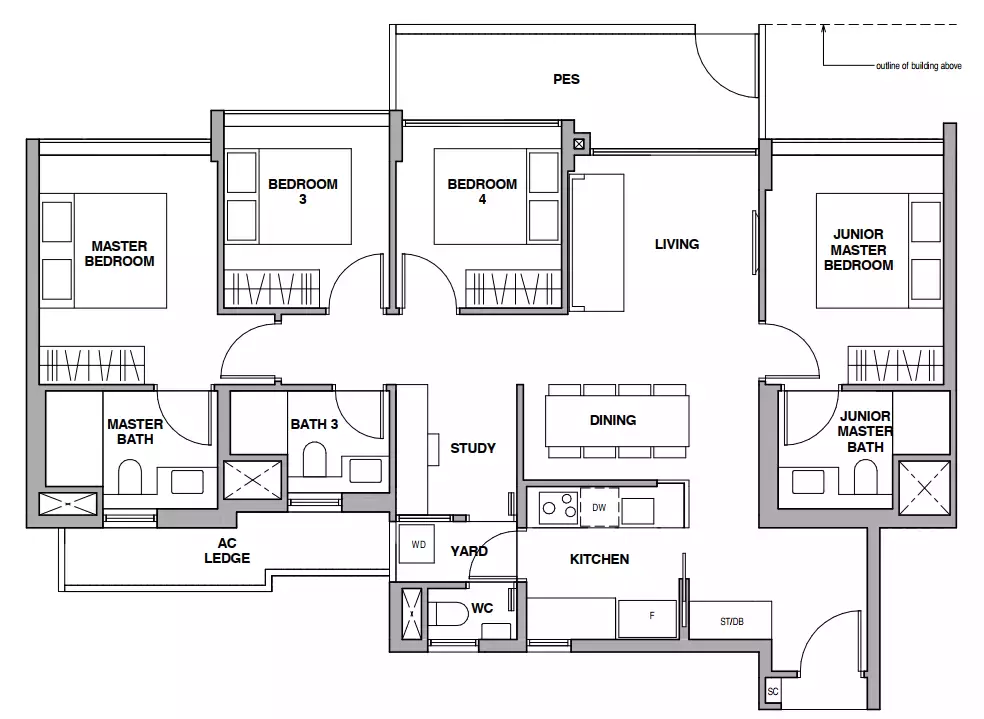
4卧+书房

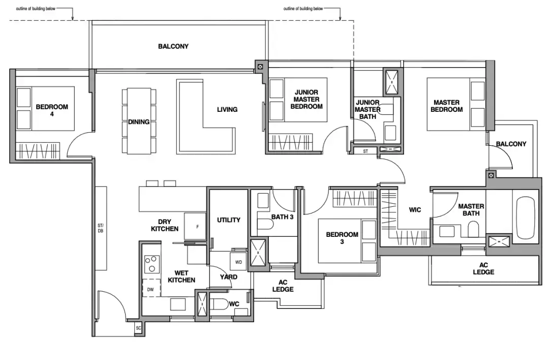
4卧房豪华

总结一下,Royal Green的主要优势在于:
罕见永久产权公寓,非常难得
武吉知马中心,地段好环境佳
地铁站就在附近,出行便利
周边名校多,教育资源充足
最重要的一点:即买即住

评论