SCDA 新加坡瑞雅嘉苑豪宅项目

The Riviere 项目设计解读 by SCDA
The Riviere(瑞雅嘉苑)公寓位于新加坡河沿岸,位于新加坡中央商务区(CBD)的中心地带。设计师将为这些宽敞,高天花板空间赋予新的生命,通过3个标志性结构,形成一个极具吸引力的河滨公寓,它集购物,餐饮,办公和公寓于一体,靠近克拉码头和罗伯逊码头。酒店门前就是Jiak Kim Bridge,可直接通往Kim Seng Park和Robertson Quay。


The Riviere(瑞雅嘉苑)公寓集现代与传统风格于一体,在保留整体性的同时也实现了个性化居住,使居民不仅能享受到市中心便捷、现代的生活方式,还能体验到大自然的静谧。The Riviere是一个罕见的混合开发项目,两座36层高的住宅楼、服务式公寓和3大仓库形成一个整体。
FCL新加坡最大的房地产公司,邀请了世界级新加坡本土事务所SCDA完成整个项目的塑造,这里原先是克拉码头最负盛名的zouk俱乐部!

概念草图
品牌定位
瑞雅嘉苑(Rivière)坐落在宽广辽阔区域内,包含三个保护仓库和酒店式公寓。该区域毗邻新加坡河,是现代化和活力新加坡的发源地。
从河流中获取灵感,采用了不同的质量(既柔软又坚硬)、状态(液体、固体和气体)和性质(温柔且有力)的水。水在许多方面展现了生活的两重性。
在众多方面,瑞雅嘉苑(Rivière)也呈现了它的两重性。
现代主义&传统风格;个人主义&团体主义;静谧安逸空间&全天候娱乐设施。

传统风格现代主义

遵崇个体感受的社区

静谧安逸空间全天候娱乐设施

单体平面

庭院透视
别具一格的销售特色
本豪华地标性小区沿着活力无限的新加坡河而建造,为新加坡历史添上崭新的篇章。
小区内的3个独特的保护仓库将会被翻新,成为该区域内丰富遗产的一部分。
瑞雅嘉苑(Rivière)将提供酒店型服务——特色杂货店、餐饮、晚宴餐厅、健康/生活方式理念、酒店式公寓接待处等。
提供酒店式服务——礼宾服务、家政服务和洗衣服务,在这里还能够以优惠价格预定毗邻瑞雅嘉苑(Rivière)的酒店式公寓。
声名远扬的建筑设计大家——SCDA
5分钟车程可达新加坡中央商务区(CBD),10分钟车程可达乌节路(Orchard Road)位于两个未来地铁站之间——汤申-东海岸线(Thomson East Coast Line)的大世界站(Great World MRT)和合乐站(Havelock MRT)

总平面图
热带气候的新加坡,SCDA将格栅用作幕墙的设计元素,将原有的建筑外又包裹了一层新的木饰面!。


木饰面幕墙可以调节日照对于室内温度的影响,左右摆动的设计细节,减弱阳光的直射,并将室内的隐私性大大提高。

木格栅元素不仅仅运用于建筑的外立面,它作为一个贯穿始终的元素也体现在室内设计的营造中!

豪宅的入户大堂
豪宅的入户大堂,以及内部的阅读区,都有木格栅元素的出现,与水景的结合也相当优雅。


SCDA的室内一直也是业界争相学习的标杆,在The Riviere的室内表现中,可用“惊艳”二字形容,内敛的精致感自有一股雍容华贵的气质。



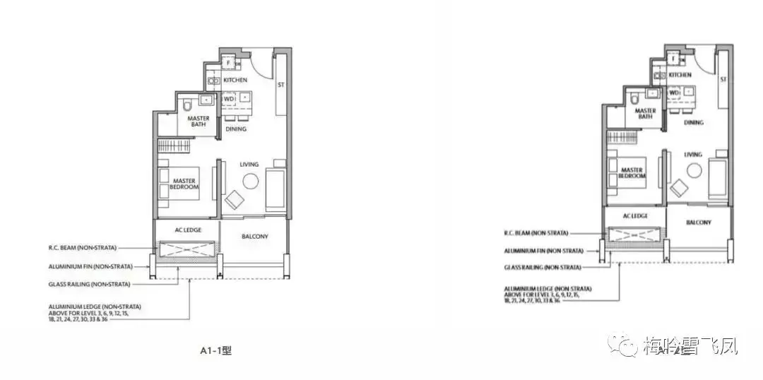
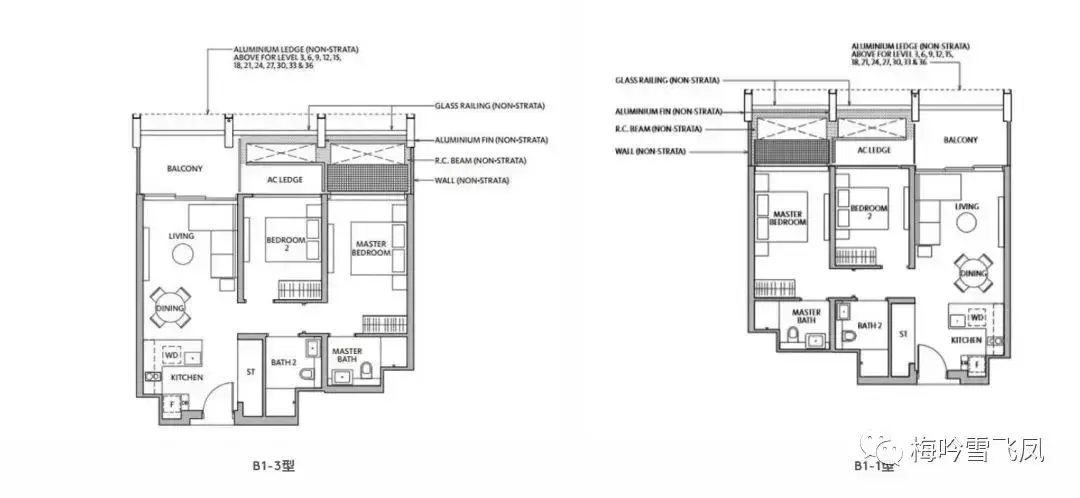
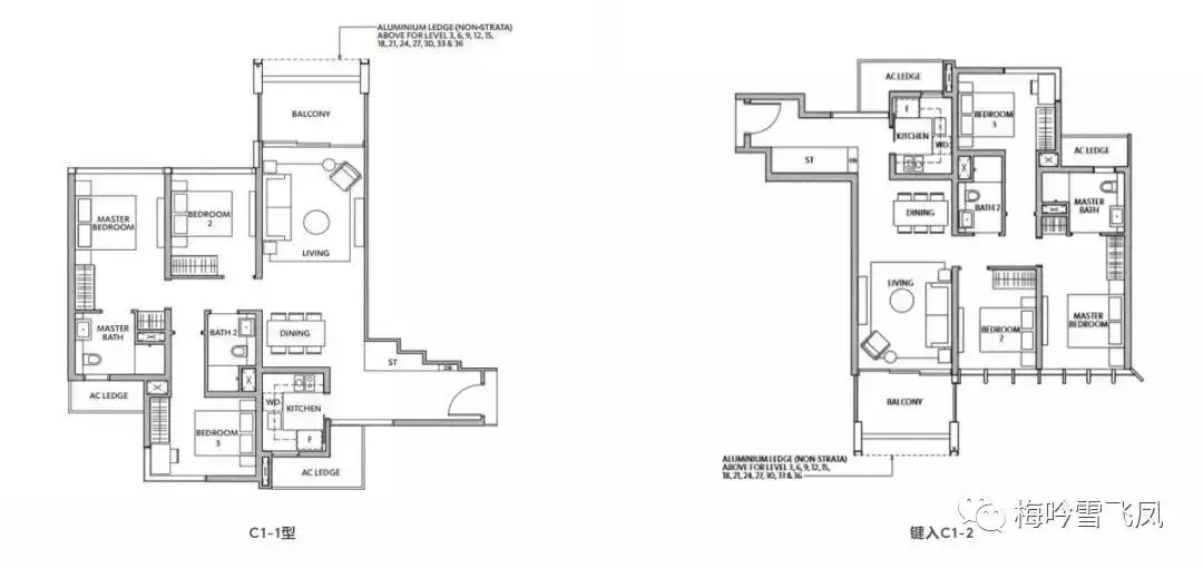
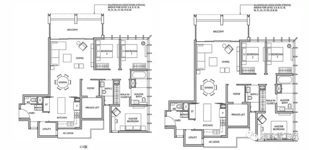
户型设计
1卧

2卧

3卧

4卧






评论