新加坡超好看的464㎡独栋住宅设计,回老家必盖的房子

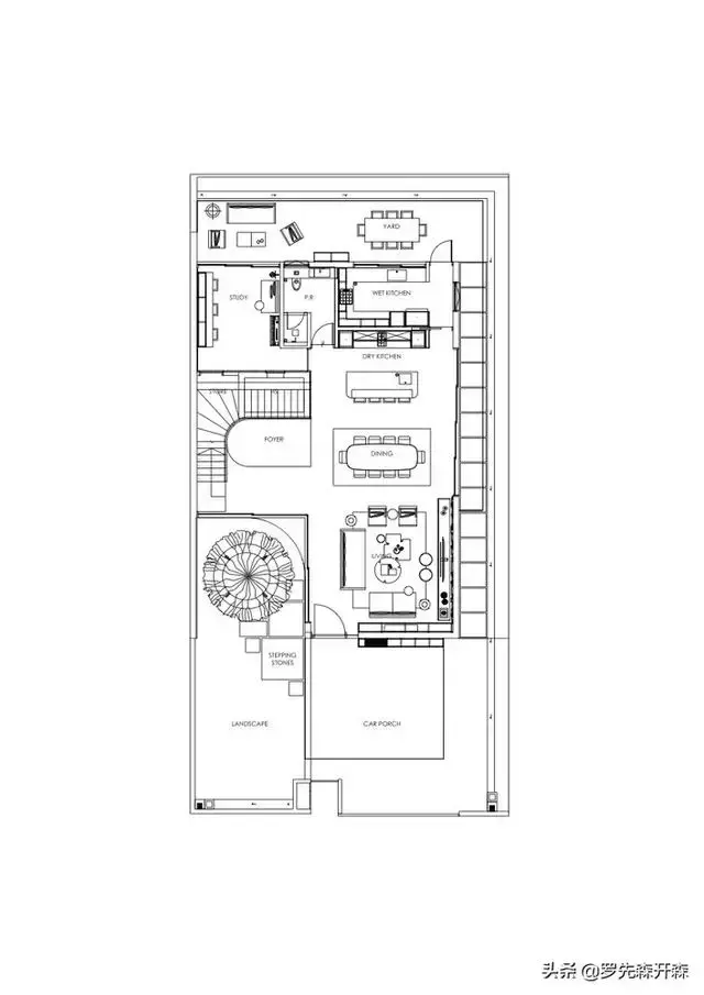
这个位于新加坡的家庭住宅最鲜明的特征是一个曲面围合的外部庭院。处于市郊高密度的建成环境中,庭院的设计意图是创造内向的视野,将光线和通风引入房子中,且不对隐私性造成负面影响。

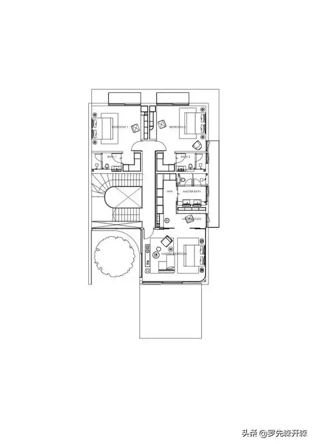
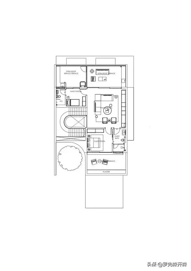
在典型的新加坡住宅中,房子的门窗都是朝向周围邻居和街道的。作为对这种城市环境的回应,这个房子采取的形式是一个内向的院子,高高的围墙保护了毗邻邻居间的隐私。庭院与主要起居空间和楼梯的中庭相连,这座房子的核心关注点是将自然光和景观引入内部。



“弦之家”的得名来自于曲线上两点以“弦”相连的关联方式,曲面的建筑形式用以强调设计概念:庭院的空间是从房子里挖出来的,就像一个花瓶状的负空间,其中种了树或者景观植被。房屋的其他部分主要是直线和矩形的形式,曲面的墙与之形成对比,更加强化了这一概念。这一概念一直延续到房子内部的弧线楼梯的设计上,楼梯与院子密切相关,楼梯的形式是庭院的延续。











建筑的外墙采用了浅色花岗石的材料,黑色的铝窗框在立面上与之形成对比。外部的石砖墙有意地继续延伸到内部的楼梯中庭,使内部和外部之间无缝接续。院子里的树从马来西亚采购和进口,在当地被称为 "豹子树"。它的底部定制了一个圆形水磨石的长凳。阳光会将树影投射到房子深处,并随着一天中时间的推移,在楼梯中庭的墙上投影出不同的图案。在室内,灰色的大理石地面和由深色浅色橡木组合而成的墙板形成了协调的材料组合。







评论