武吉知马上段,5分钟到山景道地铁站
项目卖点:
(1)只需5分钟步行到山景地铁站/Hillview MRT
(2) 著名新加坡发展商-丰隆集团
(3)周围环境清幽,靠近大自然武吉知名山
(4)发展商给出有吸引力的入场价,最低$1531/平方英尺起
(5)生活和交通便利
项目简介:
Midwood 位于第23区的武吉知马区上段(Upper Bukit Timah),只需5分钟可以步行到蓝色地铁站Hillview MRT,是属于新加坡的西区,位置是位于山景坡(Hillview Rise),商场HillV2就在旁边,是由新加坡著名发展商丰隆集团(Hong Leong Group)所开发的。
所处地段占地约14,296.1 平方米,容积率为1.8,属于99年地契。包括2栋29层高的私宅建筑和1栋6层楼高的多层停车场,共有564套私宅单位, 单位面积介于45平方米至117平方米,项目预计于2024年9月1日能取得临时入伙准证,交房日期可能会提前,有500平方米的幼儿托管中心和一些幼儿教育机构也正在发展,并且周围很多著名的公立学校,是名副其实的学区房。

地理位置
山景坡(Midwood)距离山景地铁站(Hillview MRT) 约400米,步行5分钟就可以达到。这条地铁线路为市区线(Downtown Line)可以直达中央商务区和东部的会展中心(Singapore Expo)和樟宜商务园区(Changi Business Park)。驱车20分钟就可以达到乌节路、中央商务区,这里连接武吉知马快速公路(BKE)和泛岛快速公路(PIE),可以方便连接到其他主干道非常方便。
生活配套设施
住山景坡Midwood的居民可以到附近的The Hillier和HillV2购物中心,这里可以满足日常的购物、超市和餐饮,附近的武吉班让巴刹与熟食中心(Bukit Panjang Hawker Centre and Market)也提供了很多当地美食和新鲜的水果蔬菜和肉类等。1站地铁到Beatuy World Centre、Bukit Timah Palza,5分钟车程到West Mall,10分钟车程到裕廊东的JEM、Westgate、IMM等大型商场

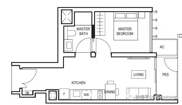
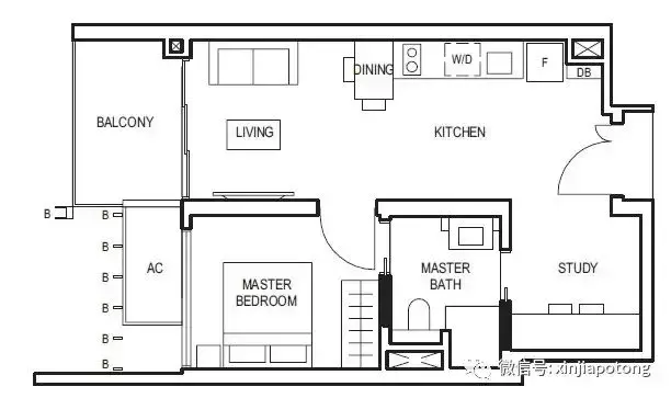
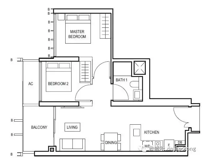
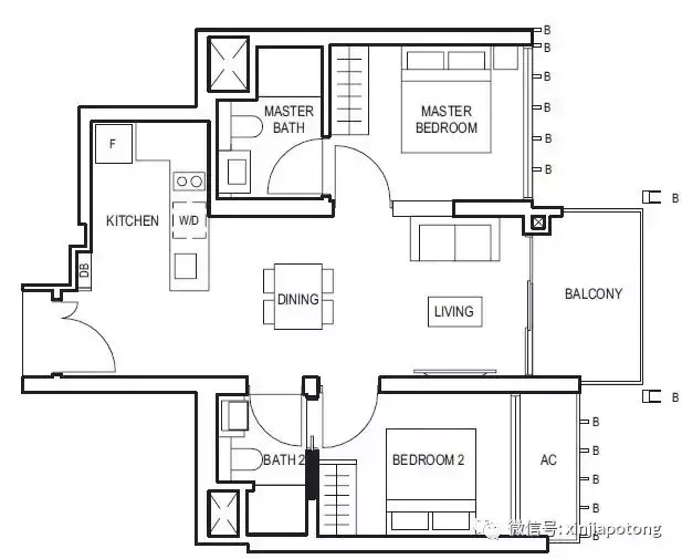
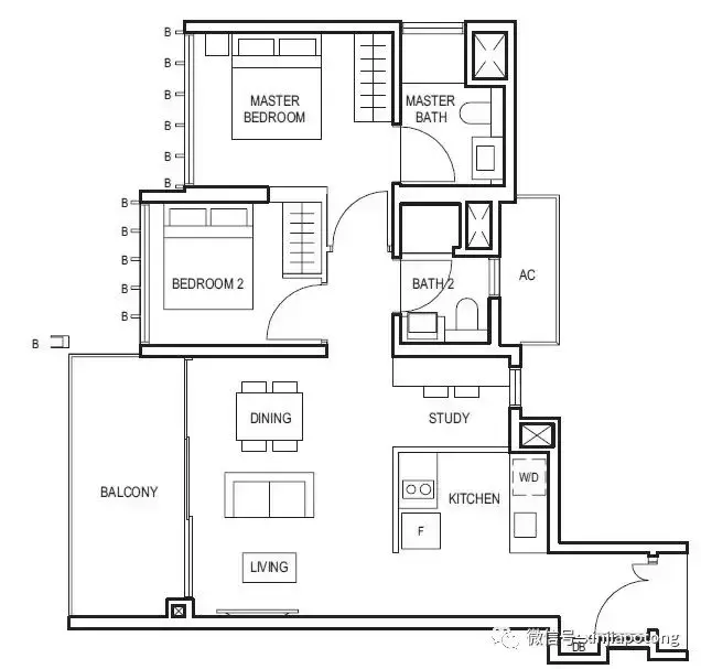
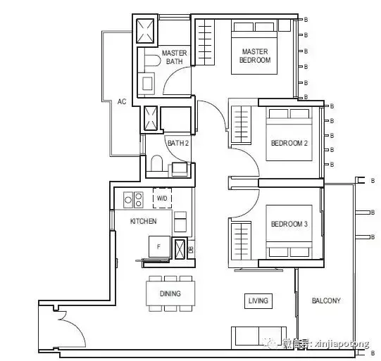
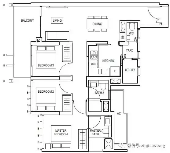
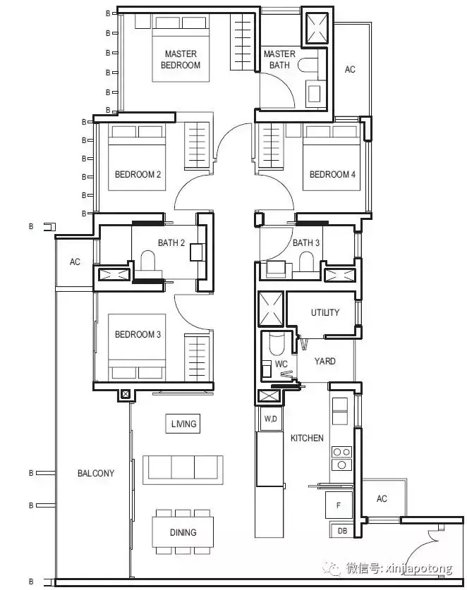
项目平面图:

项目漂亮图片大放送:






户型和参考价格:
一卧室,有45平方米,价格83万新币起,已售完

一卧室+书房,面积51平方米,价格98.3万新币起

两卧室入门款,面积59平方米,价格114.8万新币起

两卧室优质款,面积65平方米,可封闭式厨房,价格127.1万新币起

两卧室+书房,面积73平方米,可封闭式厨房,价格129.4万新币起

三卧室入门款,面积83平方米,明厨明卫,价格145.6万新币起

三卧室优质款,面积92平方米,带保姆房,价格160.4万新币起

四卧室豪华款,117平方米,大横向客厅配阳台,价格199.2万新币起

评论