二手EC:榜鹅最佳项目Prive
Prive是我认为目前榜鹅地区最棒的项目。


简单说有三个优点:位置好,房子好,价格好。 位置好:步行到地铁站8分钟,公寓后门就是邻里公园,一公里内有10所小学。

一切你所需要的设施都在附近。Waterway Point是东北部最大的商场,其中包括电影院。榜鹅水道公园是近年来政府花巨资打造的休闲项目,并且还在不断完善中。新开放的科尼岛现在还挺荒凉,但胜在自然。大型综合医院就在盛港,距离远近适度。到宜家淡滨尼店也仅需20分钟的公交。
未来还有新加坡理工大学和数码科技园的建设计划。虽然应该达不到NUS+纬壹科技园的高度,但是对榜鹅区域的房价,尤其是房租价格会有非常明显的提升。 房子好:小区设施齐全,布局开阔,楼间距大私密性好。作为EC,明厨明卫,普通房放得下双人床,都是标配。
小区的占地很方正,建筑布局成两条弧线:

这两条弧线,一方面是为了保证所有单位的南北朝向,避免西晒;另一方面也加大了楼间距,让视野更加开阔,整体环境更加舒畅。

东边的儿童泳池,经常有教练在这里教游泳:

西边的标准泳池:

北部角落的池塘,养了很多大鲤鱼:

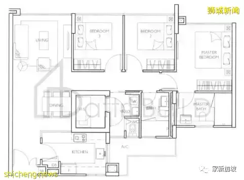
EC的户型一般都不至于太差,Prive更是有其独特的优点,比如这个三卧:

少有的无阳台设计,储藏室的开口和Yard(就是放洗衣机的地方)是连通的,可以灵活使用,比如作为书房。
下面这个三卧+书房,基本上是大多数家庭的理想户型了:

有能力的买家非常推荐这个四卧户型(大即是美:是时候关注大户型单位了):

宽厅大阳台,在疫情的状态下愈发显得珍贵。三间普通房都很宽敞,其中一间普通房自带厕所其实可以算是小主人房,夫妻两娃再加父母也住得下。
价格好:作为2013年7月TOP的EC单位,现在属于5年限售期已过,10年私有化未满的中间状态,也就是说,PR和公民可以购买,2023年以后外国人也可以购买。 对比周围的其他项目:

Watertown没法比,在商场上面,贵的理直气壮。
Parc Centros和A Treasure Trove都是公寓,地理位置和Prive类似,很靠近地铁站,都比Prive稍贵一点。
Ecopolitan(二手EC:榜鹅区的超高性价比项目Ecopolitan),Waterbay以及Twin Waterfalls都是最近刚刚满五年的EC单位,10分钟左右都能步行到地铁站,价格和Prive接近。
Prive现在这个价格,很合理,很划算。
总的来看,地点好,房子好,价格好,三好项目Prive,值得拥有。
评论