乌节三翠林:第10邮区豪宅,永久地契,值得您收藏,最新豪华四卧室样板房
一则新闻
刷爆了新加坡人的朋友圈
一名来自中国的买家
花了3150万新币
(合1.5亿+人民币)
买下乌节路的一套顶楼豪宅

(图源:商业时报)
快来看看这房子长什么样?
根据报道这个项目
叫做乌节三翠林

坐落新加坡黄金地段
第10邮区乌节林荫道
毗邻新加坡著名商业街和各种餐饮
娱乐和名牌旗舰店应有尽有

价格范围介于1500万到甚至上亿新币不等
可见第10邮区有多受到
国内外富豪和社会名流欢迎
新加坡第9和第10邮区
新加坡最好的两个邮区
就是高净资产人士们
和地产经纪们常说的中央核心区
第10邮区还是著名的
各国驻新加坡大使馆云集
靠近世界文化遗产的新加坡植物园
遛娃和锻炼身体好去处

武吉知马路上名校云集
如新加坡排第一的南洋小学
南洋女校,莱福士女校,英华中学,
新加坡华人女校,华侨中学,
华侨国际学校等等

不但位于新加坡最繁华的地段
而且它就在未来地铁
Orchard Boulevard 边上
预计2022年开通
步行只需3分钟
这个豪宅项目
3栋25层却只有77户
而顶楼公寓
有多奢华你可以想像了

(图源:海峡时报)
顶层公寓素有“房产之王”的说法
居住于顶层公寓可不仅仅
是购买一套昂贵的房产
也代表奢华的生活方式
更是一种特殊身份的象征
报纸上显示这套顶层公寓
不但非常宽敞有5个房间
而且视野很开阔
所有的装修和家具,都是超级名牌
如阿玛尼,Bocci,Ralph Lauren等等
而且还配备了现代家庭必不可少的智能家电
如节水洗碗机等

项目由意大利著名世界建筑师
安东尼奥.奇特里奥
和本地知名设计公司DP Architects共同打造
安东尼奥作为奢侈品牌BVLGARI
宝格丽酒店御用设计师
参加酒店项目设计15年
他理解的高端不是一时的流行或者豪华
而是在所有的细节的精致、高端

项目简介:
发展商:YTL WESTWOOD PROPERTIES PTE LTD
地点:乌节路林荫道,第10邮区
地契:永久地契(可传承给下一代)
总共单位:77个,3栋25层
配套设施:游泳池、健身房、儿童泳池、图书馆、花园、烧烤区等等
交房时间:2017年7月
户型:2房99-108平方米,3房165平方米,4房 210平方米和顶层单位
建筑设计公司
世界著名建筑设计师安东尼奥.奇特里奥和新加坡知名设计公司DP Architects
地理位置介绍
项目坐落新加坡黄金地段,第10邮区乌节林荫道-新加坡最尊贵的三大街之一,毗邻新加坡著名商业街,各种餐饮,娱乐和名牌旗舰店应有尽有, 靠近将来地铁站兴建中Orchard Boulevard,步行只需3分钟,等地铁开通后,将会更近一步提高交通便利性,外国人可以购买。
国际著名武打巨星李连杰、金融大鳄Jim Rogers罗杰斯、歌星孙燕姿、新加坡爱马仕一姐Jamie Chua,很多新加坡本地知名企业家都以公民身份购买第10邮区的优质洋房(最高等级洋房GCB),价格范围介于1500万-上亿新币不等,可见第10邮区受很多国内外富豪和社会名流欢迎,很多来自国外富豪和新加坡当地富豪喜欢定居新加坡第9和第10邮区,新加坡最好的两个邮区,就是我们常说的中央核心区。

为什么第10邮区这么受富豪和社会名流欢迎呢?第10邮区地处中央核心区,大使馆区,各国驻新加坡大使馆云集,众所周知大使馆区一般地处寸土寸金的核心地段。靠近世界文化遗产的新加坡植物园,遛娃和锻炼身体好去处。武吉知马路上名校云集,如南洋小学,南洋女校,莱福士女校,英华中学,新加坡华人女校,华侨中学等等,以上学校都是属于新加坡顶级好学校,华人自古来重视孩子教育,古有孟母三迁的典故,现代的父母同样重视子女教育,很多国内的父母每年花费不菲和时间陪孩子来新加坡接受优质的双语教育,这是为什么第10邮区受富豪和社会名流欢迎的原因之一。


新加坡2017年最贵的公寓成交价
来聊聊早报报道的2017年最贵公寓,最贵住宅Sculptura Ardmore位于乌节路附近的阿摩园(Ardmore Park),楼高36层,共有34个单位。其中,超级顶层豪宅单位包含第35层和36层,并设有私人游泳池。萨维林是新加坡本地富豪,脸书Facebook联合创始人之一,去年在《福布斯》(Forbes)的新加坡富豪榜上排名第二,身家估计达93亿美元。格美华庭顶楼复式价格以总价3000万新币卖出,还有TheMarq on Paterson Hill, 嘉峰豪庭的大户型价格2652-4000万新币卖出。下图中新加坡最贵的公寓住宅单位都地处第9邮区或第10邮区。

靠近乌节路购物商圈,如商场义安城,董厦Tangs,[email protected], [email protected],ISETAN,威士玛Wisma,乌节路购物街是全球10大购物街之一,喜欢购物的朋友必去之地,也是很多来自国外游客必经之地,什么名牌包包,名牌手表,香水,珠宝,名牌服饰等,应有尽有!可以随时逛街给您带来的快乐,女性朋友的最爱的逛街购物,买买买…

优质教育资源和俱乐部
新加坡当地名校莱福士女校,新加坡女子小学SCGS和英华小学(BakerRoad), ISS国际学校,东陵信托国际学校,英华国际学校,华中国际学校,Chatsworth国际学校都离项目不远,幼儿园这块伊顿国际教育EtonHouse和Pats School,全面满足您孩子教育方面的需求。

周围有东陵俱乐部(有高尔夫课程,餐馆等),美国会所有运动健身(高尔夫,网球等),儿童玩耍区,家人朋友一起品酒聚餐等,世界文化遗产的植物园(遛娃和室外运动好去处),邓普西山上有特色咖啡馆如PSCafe,海鲜餐馆如珍宝海鲜馆,长堤海鲜馆,享受有高品质的生活方式。

周围酒店林立,方便商务接待
五星级的香格里拉酒店,ST Regis瑞吉酒店,四季酒店就在附近,如果您有接待客户方面商务需求的话,可以安排附近的五星级大酒店。或者您有朋友或者亲戚来新加坡旅游的话,方便接待和酒店安排!

稀缺的永久地契,值得您长期收藏
项目为永久地契,永久地契,永久地契楼盘,重要事情说三遍,永恒、保值、长长久久。适合买来长期收藏,方便传承给您的下一代子女,方便财富的传承,长期来看资产保值。喜欢永久地契的朋友,这项目绝对是您的不二选择。

空中别墅的理念,绝对艺术品佳作
项目由意大利著名世界建筑师安东尼奥.奇特里奥和本地知名设计公司DP Architects共同打造,标志型设计特点为“空中别墅”的理念,最大限度展拓了绿色生态和光线设计,确保光线到房子每个角落,绝对一个艺术品。

意大利国宝级设计师安东尼奥.奇特里奥,是世界知名的建筑和室内设计师,作为奢侈品牌BVLGARI宝格丽酒店御用设计师,参加酒店项目设计15年。安东尼奥.奇特里奥理解的高端,不是一时的流行或者豪华,而是在所有的细节的精致、高端,追求的不是暂时的流行,而是可以传承下去的经典。用他自己的话说:“每个细节都像一件工艺品”。

绿化环保和可持续发展
公共区域采用LED节能灯,可省电达40%
电梯区,公用卫生间,楼梯都安装感应器
采用节能效率型电梯,当没有使用时进入睡眠模式,减少能量使用
在至少50%小区绿化区域采用自动灌溉系统和下雨感应器
分类回收垃圾桶在地下3层B3
每个单位提供节水洗碗机(评为节能“三颗星”)
使用绿色水泥和可再生混泥土为建筑材料
提供充电桩,自行车停车位,鼓励绿色出行
漂亮图片大放送,供您欣赏







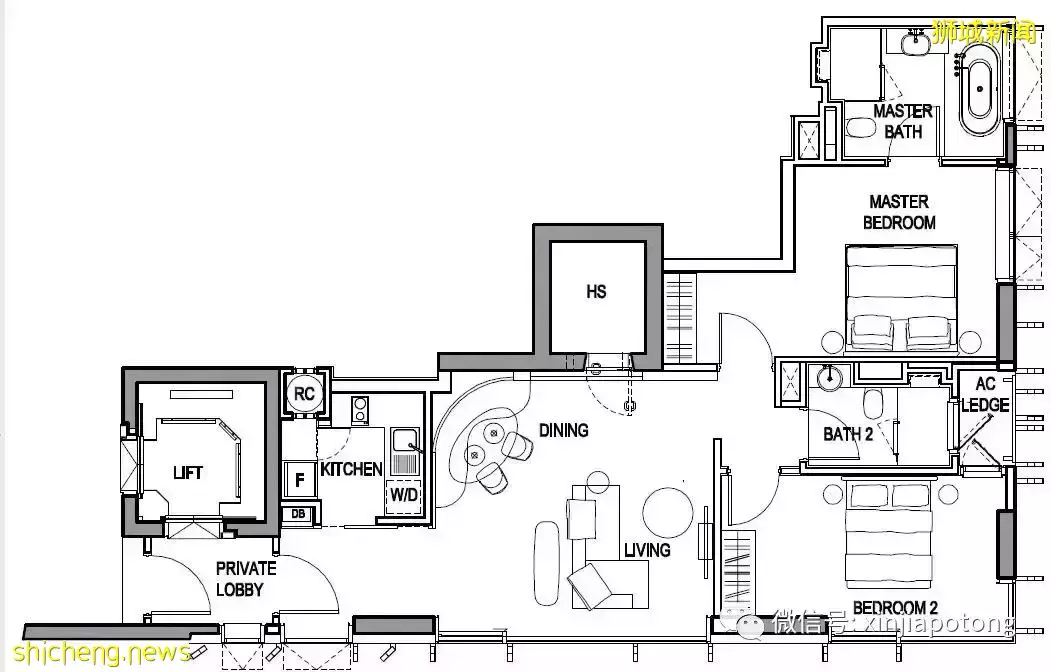
户型图和参考价格介绍:
2房普通型,面积为99平方米,私人电梯直接入户,连主卧卫生间带浴缸,价格415.7万新币起

3房豪华型,面积为165-173平方米,每个卧室都很大,主卧带浴缸,带大阳台,厨房分为干湿两区,私人电梯直接入户,价格670.2万新币起

4房豪华型,面积为210平方米,每个卧室都很大,主卧带大浴缸,厨房分为干湿两区,带保姆房,私人电梯直接入户价格813.6万新币起

4房豪华型,面积为302平方米,每个卧室都很大,主卧带大浴缸,厨房分为干湿两区,客厅为两层挑高,带保姆房,大平层住别墅式的体验,私人电梯直接入户价格1137.8万新币起
全新豪华四卧室样板房照片:






评论