新加坡跨岛线又多了11个站,位置曝光!这些地方房价要起飞
新加坡的公共运输一直以便捷、四通八达著称, 地铁主要就有红绿黄蓝紫咖啡六条线,通过它们之间的换乘基本没有到不了的地方!

图源:railway technology
但是新加坡东西线绿线在南部,很多人想要是中部也有一条横跨东西的线就好了。
没错,这就是新加坡官宣的第8条地铁线——跨岛线(CRL)

图源:新加坡陆交局
它的全长超过了50公里,建成后也会成为新加坡最长的全地下地铁线,该地铁线将由樟宜开始,经过白沙,罗央,后港,宏茂桥,武吉知马,金文泰,西海岸,终点站则是裕廊工业区。
这条地铁站也非常人性化——近一半的地铁站为换乘站,方便大家换乘不同的地铁线。
今年第四季度,地铁跨岛线第一阶段工程中的宏茂桥站已经在动土了!!
新的宏茂桥站将会联通南北线上的宏茂桥站,并有多个出口直通附近组屋、宏茂桥城,宏茂桥市镇东公园等人流量较多的地点。

图源:新加坡陆交局
最近又有进展!这次不是官宣,而是无意中透露了消息~
下两个阶段可能包括11个新的车站,服务于武吉知马、金文泰和西海岸,然后以大士为终点。
西段的暂定计划还表明,车站中有四个新站将成为换乘站,与现有或即将开通的铁路线相连接。
分别是亚伯特国王公园、金文泰、裕廊码头和Gul Circle!

(图源:海峡时报)
这是陆路交通管理局(LTA)最近作为虚拟展览的一部分,在网上公布的地铁系统地图,但是很快有拿下来了~
不知道是因为“偷跑”,还是信息未定。假如这是真的,让我们来数一数跨岛线上一共有几个换乘站 从东到西跨岛线上竟然有9个转换站了!
【樟宜机场站】转汤申东海岸线
【巴西立站】转绿线
【后港站】转紫线
【宏茂桥站】转红线
【光明山站】转汤申东海岸线
【亚伯特国王公园站】转蓝线(新!)
【金文泰站】转绿线(新!)
【裕廊码头站】转裕廊区域线(新!)
【Gul Circle站】转绿线(新!)
这条横跨新加坡东西的地铁有多方便?
从巴西立到后港,从原本要花40分钟的12站,直接缩短到了只需15分钟的3站!

图源:新加坡陆交局
到时候,只要你住的离地铁近,全岛可以轻松抵达。

在新加坡买房,所谓“Location、Location、Location”,地点为王。很多人都尽量买在靠近地铁的地方。
一来,住在交通方便的地方,直接就省下了买车的钱。在新加坡,拥车养车还是一件相当昂贵的事。
二来,地点好的房子明显升值更快。
我们来看看过去几年一些新加坡的综合项目公寓的涨幅。
裕廊坊楼上的The Centris增值10.8%,盛港地铁上方的Compass Height 增值52.3%,波东巴西地铁站的The Poiz Residence增值接近20%,义顺地铁站上方的North Park Residence增值12.3%。

买房找准地铁要开通的地点准没错,看来来这个靠近跨岛线的新项目吧

翠宁苑 Ki Residences
999年地契 学区房 靠近绿线金文泰地铁站 蓝线King Albert Park地铁站 未来规划有跨岛线经过
发展商最新更新 项目已经卖出78% 剩余单位有限!

项目介绍
项目靠近低密度的洋房住宅区,周围环境清幽,坐落新加坡的第21邮区斜阳大道(Sunset way)的布鲁克维通道,是这一带20年来第一个开盘的新项目。
属于稀缺的999年地契,和永久地契没差别。
项目总共660套,有10栋住宅,每栋12层楼高,户型从2卧室到豪华5房。

预计2024年6月交房,发展商已计划新修一条路直接通主干道金文泰/Clementi Road,可帮您节省6-8分钟的时间,周边有政府规划的地铁站待开通,更一步提高交通便利性,升值潜力大!
项目卖点
每一个单位都有景观,洋房景观或武吉知马山森林景观
地处低密度的洋房住宅区,周围环境清幽
低入场价格,999年地契只需$1720/英尺起
属于稀缺的999地契,类似永久地契,长期持有保值、增值
周边三个地铁站,将来地铁站待开通,坐等升值
户型设计高效实用,采用品牌电器和大理石地板(3房以上户型)
80%面积用来打造小区配套设施,建筑只占小区面积20%
100%的单位都南北朝向,所有单位无阻挡,国人喜欢的朝向
发展商巧妙用心的设计,打造更强更实用的产品(房子)


有吸引力的入场价格 只需每平方英尺S$1720起
翠宁苑价格非常有竞争力,只需每平方英尺1720起。 11月15月开盘的同样为永久地契小项目The Linq当天卖出96%,基本全部卖完,成交价格每平方英尺2150-2200元。
请参考下图,同这些项目对比,可见翠宁苑Ki Residence的价格相当有吸引力:
Mayfair modern属于99年地契成交均价位每平方英尺1958元
99年地契的Fourth Ave Residence成交均价每平方英尺2258元,最高成交价每平方英尺2584英尺起
永久地契的Royal Green成交均价每平方英尺2692元,最高成交价每平方英尺2787元

注重每个细节设计 打造更强更实用的房子
如下图,大门入口的电箱柜子巧妙的设计,柜子中间做凹槽的设计,可以让您放房子钥匙、车钥匙、门卡等(每天都要用到的),柜子下方做鞋柜设计。
厨房柜台巧妙做可以放杂志、书本的凹槽设计,厨房采用大片玻璃窗口设计,极好的保证了厨房采光佳。
四卧室的干厨房区柜子对酒柜,还有带电源接口,方便您用笔记本或者手机充电等。每个房间的衣柜带深铜色的金属衣架,还有内置LED条纹灯,显得挺有档次感。

完善的公寓配套设施
参考下图,公寓配套设施总共分为10个不同主题区, 会所有2个多功房、阅读室、图书馆、健身房、淋浴室、更衣室等,50米的游泳池两边都是郁郁葱葱的绿色包围着,有策略的安排舒适凉亭休闲区,会友有可以容纳10-12人聚会的就餐区,建在第二楼的健身房,可以看全游泳池景观和小区绿化景观,还设有红酒专柜。


发展商采用 高品质品牌
发展商在用料方面下足了功夫,采用德国劳芬卫浴(Laufen)的水龙头、花洒等用德国品牌汉斯格雅Hansgrohe。马桶这块用德国品牌Tece泰杰,豪华4房和5房户型厨具这块采用法国家用电器奢侈品牌帝泽De Dietrich,配备双门三星品牌冰箱,弗兰卡Franke大水槽,客厅采用大理石地板和房间采用耐用的实木地板,全部采用高品质品牌,保证您享受高品质的生活。

户型介绍和点评
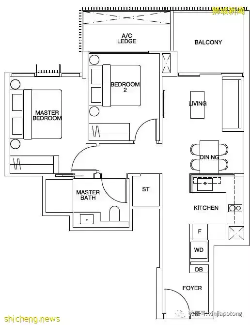
两卧室居然带有封闭式厨房设计,每款户型都高效实用设计,大主卧的面积可以轻松放双人床加梳妆台。

2卧室,65平方米,带可封闭式的厨房,大型阳台可以摆餐桌,主卧可以放双人床加床头柜,价格140.3万新币起

2卧室+书房,81平方米(顶楼),带可封闭式的厨房,书房可以灵活使用,很实用的格局,价格157万新币起

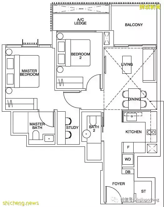
3卧室,80平方米,明厨明卫,主卧可放两个床头柜,大型阳台可以摆餐桌,价格165.1万新币起

3卧室,87平方米,明厨明卫,主卧可放两个床头柜,大型阳台可以摆餐桌,价格172.3万新币起

3卧室,91平方米,明厨明卫,主卧可放两个床头柜,价格182万新币起

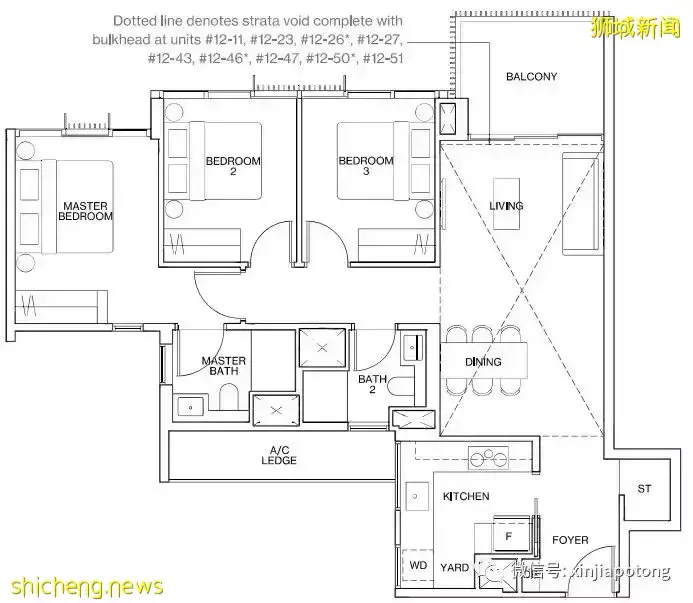
3卧室,103/109平方米,明厨明卫,多功能房可灵活转换为书房、保姆房或储藏室,大主卧可放一个梳妆台加床头柜,价格213.7万新币起


3卧室,111平方米,明厨明卫,横向大客厅配大阳台,大主卧可放一个梳妆台加床头柜,价格227.9万新币起

在环境优美的低密洋房区
拥有一片999年的住宅
这就是Ki Residences翠宁苑
拥有优美的环境
生活又非常便利
三个地铁站、几所名校环绕
赶快联系作者预约看房吧

评论