新加坡东北区新地标,全岛最期待的楼盘售价80万新币起
盛港嘉园综合体项目,是新加坡政府的东北区发展计划中一部分。未来,这里将成为盛港的地标和交通枢纽。

盛港嘉园综合体包含了一栋三层楼的商用建筑,内有占地3300平米的小贩中心、14871平米的零售区域、6000平米的民众俱乐部,生活设施一应俱全。
住宅区和休闲区建在商用建筑上,住户可以实现从住宅到商业上的无缝对接。

综合体项目楼下将建起新的巴士转换站,万国地铁站也是出门即达。楼盘周围有不少中小学、一站地铁外就是盛港综合医院和诊疗所,生活、教育、医疗和交通无比便捷。

戳视频了解项目介绍:
盛港嘉园共有九栋住宅楼,总共680个住宅单位。

盛港嘉园内有一个标准的50米长泳池以及一个spa水疗池,池外就是烧烤区,和亲朋好友在此聚会再好不过。

游乐场上的溜滑梯,孩子应该会很喜欢。还有一张蹦床让孩子玩乐,也是不出户的亲子游好去处。

多功能的宴会厅,可以在这开生日party~

还有健身房、育婴室等等......楼盘总共有41项完善设施,再加上底层的超市、民众俱乐部和小贩中心,住在这就像住进了一座小城市。
盛港嘉园里每个住宅单位都配备了名牌家电,完全可以直接拎包入住!厨房里的电磁炉(1卧室及2卧室单位)、煤气灶(3卧室及4卧室单位)、抽油烟机、烤箱和冰箱全部都来自法国殿堂级家电奢侈品牌帝泽De Dietrich。洗衣机烘干机二合一,既不占空间,也能节省时间。

浴室则配备了汉斯格雅Hansgrohe和德立菲Duravit,奢华感满满。

房子的户型从一卧室单位到四卧室单位都有,最低售价79万8000新币!
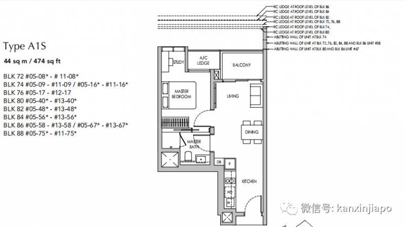
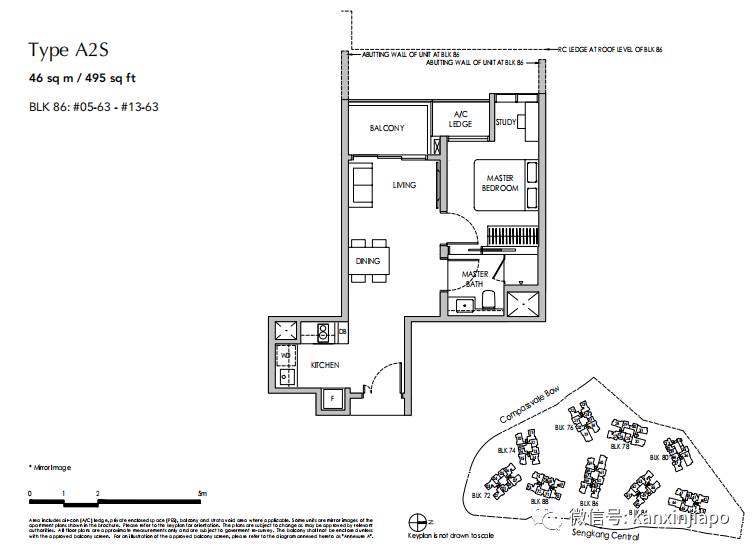
一卧室单位44平米起,适合刚刚结婚的小夫妻,一进门就是厨房和客厅,下班回家一起做饭休息好不惬意。楼层不同,房间的户型有些许改变,部分户型的卧室内自带小书房。在住宅区1楼的户型,阳台区域是私人花园。

厨房设在拐角的一卧室单位A2S,最大程度上避免了油烟散入客厅甚至卧室。

学习房在主人房外,以及浴室在主人房内等不同设计,贴近购房者的实际需求。
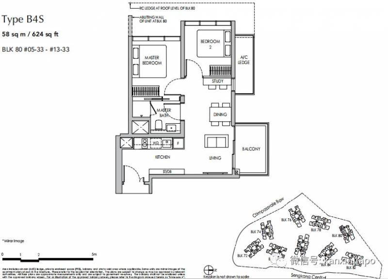
二卧室单位分为三种户型,58平米起,更适合两夫妻带小孩的核心家庭。多出来的一个房间,可以让孩子成长时有自己的空间,没有需求的,可以选择不带书房的户型。
二卧室单位的学习区不在主人房,主人房的空间可以稍微大些。

还有两个浴室的户型版本,一家人不用挤在一个浴室里洗澡刷牙,更节省时间。
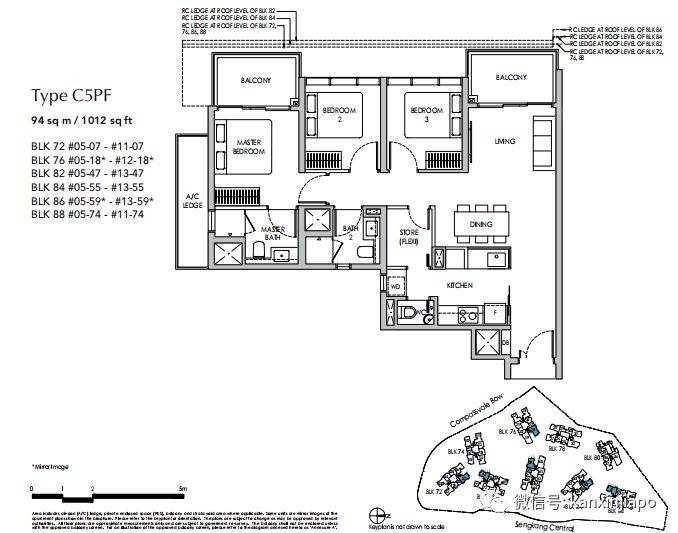
三卧室单位87平米起,适合三代同堂居住,房间更多,也为一大家人提供了更大的伸展空间,主人房里也多了个阳台。
另一种三卧室单位户型,则额外提供了一个多功能使用区(Utility)。
因为住宅楼的间距关系,有些户型虽然结构一样,但也可能有些许面积上的差异。

三卧室Flexi户型的储藏室所在区域是灵活的,大可以将它用作他途。

四卧室优质+Flexi单位的户型,则是为那些喜欢超大空间的人量身打造,面积在123平米左右。阳台相比其他户型要更大更宽敞一些,在上面喝酒聊天别有感觉。
不过,有些户型推出的比较少,要尽早预订,不然很容易被抢空。

处于盛港中心线上、又是综合体的项目少之又少。盛港嘉园预计在2023年交房,如果想要第一时间参观盛港嘉园的售楼部,可以添加微信 xinjiapoyan8 或拨打电话 9679 9448 咨询。
评论