东北部新地标,下楼就到地铁站,超级综合体项目,盛港嘉园
盛港嘉园
盛港嘉园(Sengkang Grand Residences)位于D19邮。由新加坡本地知名开发商【凯德置地】和【城市发展】联合开发。盛港嘉园是一个大型的综合性项目。
盛港嘉园就坐落在【万国 Buangkok】地铁站上方,整合了社区俱乐部,购物商城,食阁,小贩中心,托儿所,巴士转换站,地铁站等等,是一个大型的,综合性的项目,致力成为东北片区的新地标!
该项目打造精致生活格局,敬献绝佳生活体验!5个休闲区和2个会所,打造奢适人居,拥有50米游泳池、跑酷健身区、树顶步道、池边烧烤亭、蹦床乐园、水吊床、宠物乐园等40余个休闲设施,在享受优越视野的同时,营造无与伦比的社区配套,为生活增姿添彩。
盛港嘉园的另一大卖点,来源于开发商对现代精致生活的追求,优质施工,采用先进的预制体积建设技术(PPVC),幕墙系统多用于豪华开发项目,绿色环保,为业主的健康保驾护航;其高效宽敞的布局,配备De Dietrich品牌电器,以及Hansgrohe and Duravit的优质配件,衣食住行游,一站式尽情拥有,享受足不出户的便利!
盛港嘉园,共有680个单位,1卧室+书房至4卧室优质+Flexi单位任您选择, 起价79万8000新元。将舒适的空间尺度与贴心服务于一身,开启精英理想的优质住宅。







优越的地理位置:

这个位于Sengkang Central地带的综合用地,就在地铁站上方,下楼就是万国(Buangkok)地铁站和未来的巴士换乘站。
从地铁东北线到达多美歌地铁站只有9站,行程时间不到25分钟。该地点也可通过KPE,SLE和CTE等主要高速公路轻松到达,并与未来的榜鹅数码区(Punggol Digital District)和实里达航空园区(Seletar Aerospace Park)等主要枢纽良好相连。
作为唯一的混合商业和住宅区,与万国地铁站(Buangkok)和未来巴士换乘站无缝连接,该开发项目将通过沿着Sengkang Central 和 Compassvale Ancilla Park整个正面,以及连接住宅和其它开发项目的花园坡道开发,提供一个线性规划的公园,有助于提高邻里的步行性。
优越的设施:

社区俱乐部:这个社区俱乐部为万国(Buangkok)地区的居民提供服务,将充满活力和乐趣。
零售商店:零售商店位于该住宅项目下方的购物中心内。
小贩中心:这是新加坡首个将小贩中心纳入大楼内的综合发展项目。
巴士设施:位于住宅区下方的便利位置,将为万国地区(Buangkok)的人们提供便捷服务。
托儿所:对于双方都工作的家长来说,这个托儿中心就位于住宅区附近。
地铁设施:与万国地铁站直接相连,区内居民将享受无与伦比的连通性。
户型分布:
户型面积(平方英尺)单位数量1室+书房474-5061312室624-678952室+书房624102室Premium+书房732-7641363室936-9471483室Premium1023-1055563室Premium+Flexi1012554室Premium+Flexi1313-132449
主力户型:
1室+书房
新币 S$ 821,600起
A1S户型1室+书房 474平方英尺/44平方米
25%首付:S$205,400 / 75%贷款:S$616,200
30年贷款,2%利息,月供:S$
2,278

2室
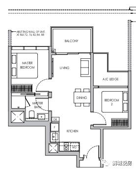
新币 S$1,099,200 起
B1户型2室 624平方英尺/58平方米
25%首付:S$274,800 / 75%贷款:S$824,400
30年贷款,2%利息,月供:S$
3,047

2室
新币 S$1,108,000 起
B2户型2室 678平方英尺/63平方米
25%首付:S$277,000 / 75%贷款:S$831,000
30年贷款,2%利息,月供:S$
3,072

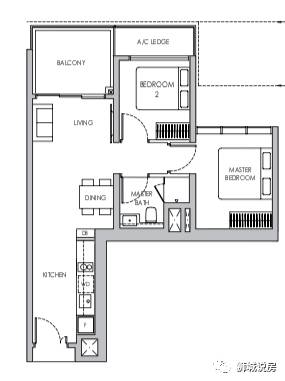
2室+书房
新币 S$1,051,200 起
B4S户型2室+书房 624平方英尺/58平方米
25%首付:S$262,800 / 75%贷款:S$788,400
30年贷款,2%利息,月供:S$
2,914

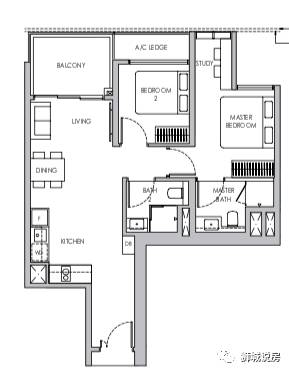
2室Premium+书房
新币 S$ 1,238,000起
B5PS户型2室P+书房 764平方英尺/71平方米
25%首付:S$309,500 / 75%贷款:S$928,500
30年贷款,2%利息,月供:S$
3,432

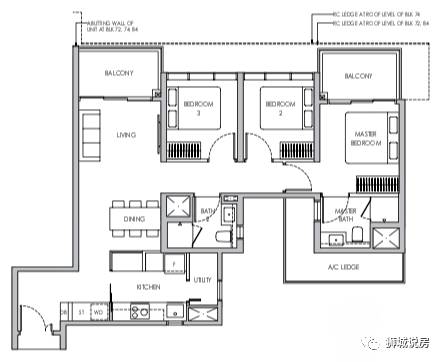
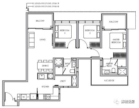
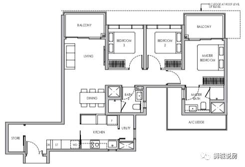
3室
新币 S$ 1,498,000起
C1户型3室 936平方英尺/87平方米
25%首付:S$374,500 / 75%贷款:S$1,123,500
30年贷款,2%利息,月供:S$
4,153

3室Premium
新币 S$1,681,600 起
C3P户型3室P 1023平方英尺/95平方米
25%首付:S$420,400 / 75%贷款:S$1,261,200
30年贷款,2%利息,月供:S$
4,662

3室Premium
新币 S$1,098,400 起
C3Pa户型3室P 1033平方英尺/96平方米
25%首付:S$274,600 / 75%贷款:S$823,800
30年贷款,2%利息,月供:S$
3,045

3室Premium
新币 S$ 1,717,600起
C4P户型3室P 1055平方英尺/98平方米
25%首付:S$429,400 / 75%贷款:S$1,288,200
30年贷款,2%利息,月供:S$
4,761

3室Premium+Flexi
新币 S$1,678,000 起
C5PF户型3室P+F 1021平方英尺/95平方米
25%首付:S$419,500 / 75%贷款:S$1,258,500
30年贷款,2%利息,月供:S$
4,652

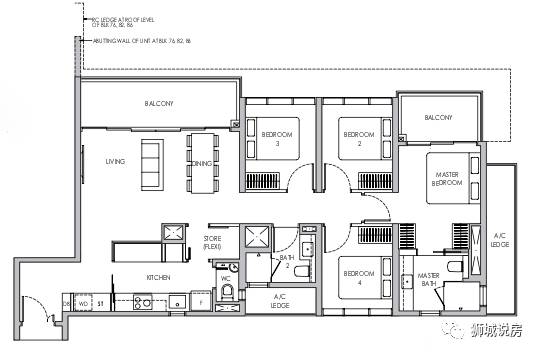
4室Premium+Flexi
新币 S$2,100,000 起
D1PF户型4室P+F 1324平方英尺/123平方米
25%首付:S$525,000 / 75%贷款:S$1,575,000
30年贷款,2%利息,月供:S$
5,822

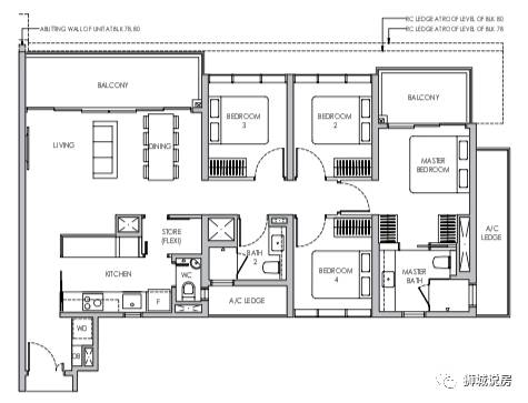
4室Premium+Flexi
新币 S$ 2,111,200起
D2PF户型4室P+F 1313平方英尺/122平方米
25%首付:S$527,800 / 75%贷款:S$1,583,400
30年贷款,2%利息,月供:S$
5,853
评论