疫情之下,为什么阿里巴巴和赵薇夫妇同时来新加坡“扫货”
最近大家都接连被国内大佬来新加坡扫货的新闻刷屏了,这次扫的“货”可不是一般的东西,而是价值千金的摩天大楼和顶层公寓!

尽管新加坡还处于“封城期”,中国互联网巨头阿里巴巴斥巨资16亿8000万新元(约84亿人民币)收购新加坡曾经的第一高楼,也是新加坡地标建筑,安盛大厦的50%股权。

太太太壕了吧!
这是阿里巴巴在海外完成的最大一笔房地产交易之一。
而且一旦该大厦所有租赁协议在未来几年内到期,这座商厦将被重建。

据说新建筑的规划现已获批,还将包括一家酒店或公寓。重建工程目标是在新加坡的中央商务区创造一个“地标”。

这和新加坡政府的规划不谋而合,去年The Draft Master Plan 2019新加坡城市规划草案揭示,将在新加坡中央商务区CBD建更多的住宅。

赵薇夫妇再购置新加坡房产
上周我们还被另一个新闻刷屏了,赵薇的老公黄有龙在新加坡出手了一套高档住宅。

(图源:商业时报)

他豪掷2765万新币(折合人民币约1亿3千800万元)买下香格里拉酒店附近的Ardmore Park公寓的一套顶层公寓
面积8740平方英尺的顶层公寓!(折合812平方米)

Ardmore Park靠近新加坡乌节路和使馆区,是黄金地段闹中取静高档住宅区,很多名人富商都喜欢在这里置产。

Ardmore Park这个公寓虽然其貌不扬,但是却是黄金地段中难得的永久地契项目。
2001年完工的时候,它是新加坡豪宅中的楼王,标杆之作。并且在过去19年一直保持坚挺的高价。
而黄有龙购入的顶层公寓, 无论从面积还是设施都是“顶配款”房型。

(图源:微博@赵薇)
据说,黄先生已是新加坡公民,以受托人的身份购买的该公寓。
其实大家都知道,为了女儿的教育,赵薇和黄有龙夫妇很多时间都在新加坡常住。
因为经常在新加坡,赵薇还一度被人误传已经不是中国籍。
据知情人士透露,这次的购入房产不是黄先生在新加坡的第一套房了。黄先生投资有道,非常看好新加坡的房产潜力。
入手房地产的好时机
值得令人深思的是,大佬们都纷纷逆市而为,购入新加坡房地产。
阿里巴巴是为了布局东南亚,赵薇夫妇为了孩子教育。
大佬们看得长远,新加坡的东南亚商业中心地位并不受到疫情的影响,亚洲顶尖的教育也不会因为暂时的疫情而发生什么变化。

换一个思维,现在倒是入手房地产的好时机。

从过去的经验来看,每当新加坡在危机之后(如2008年全球金融危机),房价都会迎来一波上涨期。
而且新加坡的房价和美国量化宽松政策有着紧密联系。

每次量化宽松政策都带动新加坡房地产上涨:QE1,QE2后新加坡房价上涨52%,QE3后上涨62%。
而2020年3月的QE4高达2.7万亿美元,超过了以往任何一次的数目。

美国央行打开启印钞厂印更多的美元,这些热钱流入全球市场后,势必带给新加坡房价上涨,受益的最终是私人公寓屋主们。
另外新加坡政府最近也出台一系列帮助地产发展商和买家的措施。其中包括对开发商和换房的买家实施6个月的宽限期。

(图源:8视界)
如果想要提升房产,今年就是好机会:从组屋提升到公寓、2房私人公寓提升到3房、3房提升到4房、4房提升到顶层复式。
或者买多一套房产作为投资!

(图源:Propertyguru)
接下来,要为大家推荐一个好项目。
荟景嘉园

2018年开盘的第一个新楼盘,是现在新楼盘项目中价格最低的楼盘之一,接近政府EC的价格,所以有兴趣买房的朋友尽快加文末微信哦。
荟景嘉园(TheTapestry)总共861个单位,占地面积多达21717平方米,属于大型楼盘。

大量公寓配套设施,由7栋15层的单位组成,户型包括有1房、2房、2+书房、3房、4房、4房双钥匙、5+书房双钥匙,下面会详细介绍户型,交房时间2021年10月(按照现在施工进度,预计可能会提早交房哦)


现在可以线上360度全景看房(复制下面连结用浏览器打开)
1卧室 43平方米
https://my.matterport.com/show/?m=aLwg7ZNWW1Y&brand=0
2卧室 65平方米
https://my.matterport.com/show/?m=Tjoiyndgbja&brand=0
3卧室 105平方米
https://my.matterport.com/show/?m=ALeeV1dzK58
【参考价格】1房68.6万起,1+书房75万起,2房79.8万起,3房119.3万起,4房已售完,5+书房215.2万起
项目要点
Ø 价格低达$1204/平方英尺起,2018年最佳销售公寓之一
Ø 发展商拿地较早,拿地价格相对便宜,高性价比
Ø 准现房,预计2021年第一季度交房
Ø 项目拥有超50多项公寓配套设施,长+达100米的游泳池

Ø 靠近著名圣西尔达小学、培青小学,还有UWC国际学校
Ø 新加坡最大的发展商之一城市发展有限公司打造项目,品质保证
Ø 著名建筑设计团队ADDP与新加坡大型承包商WOH HUP共同打造
Ø 小区提供一年巴士服务直达淡滨尼地铁站
Ø 大部分单位为南北朝向,户型设计方正,采光极佳,实用为主
Ø 4房和5房单位直接私人电梯入户
Ø 配备智能家居系统,引领国际家居时尚潮流
Ø 建筑设计与绿色环保相结合,荣获“绿色建筑标志白金奖”

生活便利,购物选择丰富
淡滨尼作为东部的商业中心,作为东部成熟的住宅区,大型购物商场林立。
包括淡滨尼商场Tampines Mall,世纪广场Century Square,淡滨尼1号商场Tampines 1,体育运动中心加商场One Tampines Hub。

如果您需要买家具或者生活类产品,可以去宜家在新加坡的最大旗舰店,需要买电器或者电子产品时,可以选择去Courts,还有一个大型超市Giant,里面的东西品种齐全,吃喝玩乐选择丰富。
著名发展商城市发展公司打造
来聊聊项目的发展商,城市发展公司新加坡最大型的发展商之一,已经有54年项目开发折扣,开发的项目在全球26个国家97个不同地点,在新加坡参与高档住宅、中档住宅、大众化住宅,同时新加坡最大的商业地产持有者之一。
旗下拥有大型商场,办公室,酒店,服务型公寓等。大型发展商打造的项目,品质保证,让您买得放心。

淡滨尼为新加坡东部美食天堂
喜欢美食的朋友,可以去Good Year海鲜村,他家的店门口经常排长队,推荐的食物包括辣椒螃蟹、娘惹式酸辣亚参鱼头、咸蛋鱼皮等。
可以去淡滨尼中心Tampines Hub品尝泰国美食,我就不一一列举了。

周围学府众多
小学这块附近有名校圣希尔达小学,还有培青小学,Junyuan小学,Eastview小学等。中学包括圣希尔达中学,淡滨尼中学,Junyuan中学等。
公寓附近有淡马溪理工学院(大专学府),淡滨尼初级学院(高中),还有在四美一带的新加坡科技大学STUD。国际学校有东南亚联合世界学院UWC, 从公寓只需步行约5分钟就可以到达。

政府也计划将淡滨尼发展为东部区域就业中心,旨在把工作机会带到住宅区,减少上班时在交通方面花费的时间。

东部商业园和工业区发展迅速,包括淡滨尼芯片园区、樟宜商业园、淡滨尼工业园、洛阳工业区、加上樟宜机场在扩建的第五搭客大厦,将为附近居民提供大量的就业机会。

每个单位都采用智能家居系统
每个单位采用智能家居系统,装有智能控制器,备有摄像功能和声控系统。包括一个大门感应器,一个智能电子锁,一个可控灯光,两个空调控制,一个智能语音助手。
当您在外面时也可以知道家里的情况通过手机App, 让每位业主享受惬意现代感十足的智能家居生活,还有提供贴心的管家服务。为您生活带来便利。

公寓配套设施
公寓提供52种配套设施,包括100米长的大型游泳池,还有一个标准的50米的游泳池,网球场,健身房,小孩的探险玩耍区,小孩泳池,一个可容纳100个小孩的托儿所。



免费提供一年的巴士去淡滨尼地铁站,满足业主的交通方面需求。

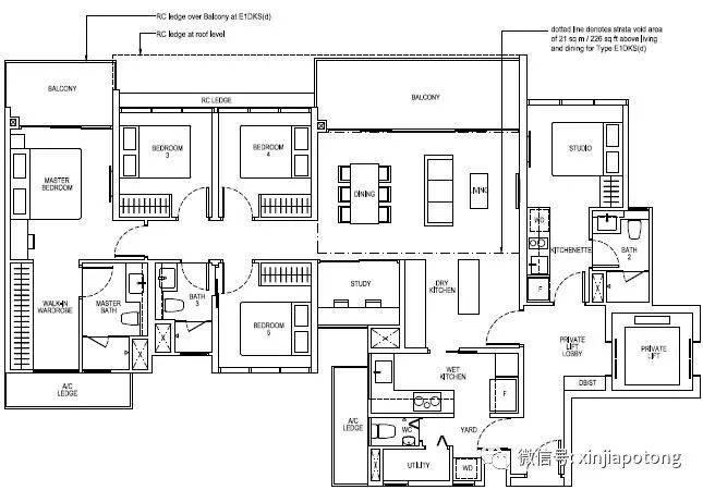
样板房图片(3房105平方米户型)


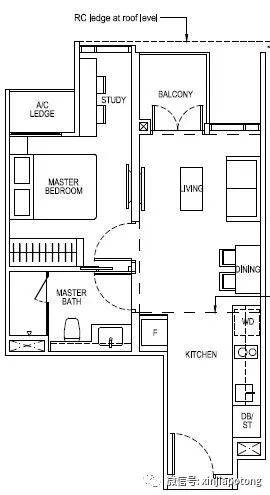
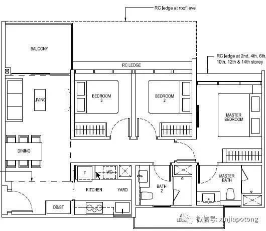
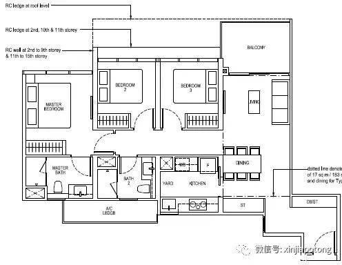
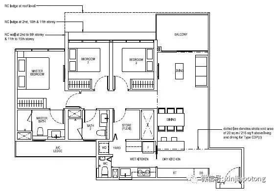
一房到五房户型图介绍
附注:以看房时选的单位价格为准,下面价格单位为新币
1房,41平方米/441平方英尺,价格68.6万起

1+书房,44平方米/474平方英尺, 价格75万起

2房,56平方米/603平方英尺, 价格79.8万起

3房普通型,86平方米/926平方英尺, 价格119.3万起

3房普通型,91平方米/990平方英尺, 价格123.5万起

3房豪华型,102平方米/1130平方英尺, 价格140.3万起

5房豪华型,164平方米/1765平方英尺, 价格215.2万起

房产作者介绍
张琼(Linda),新加坡最大房产经纪公司之一Huttons市场部高级董事,拥有丰富的房产行业经验,已入行热爱的房地产行业约10年.全心全意为客户考虑,致力于协助国人在新加坡置业,秉著细心周到的服务态度,以客户利益为出发点,诚信待人。服务过数百位中高档客户,广受客户们好评,包括企业家,企业高管,中小型公司老板,新移民,发展商老板等等。
一个电话过来就了解全岛各地段的项目,总有一款适合您!不跟买家收取中介费,专车接送看房,公司代理全岛各地项目(大众化、中档、高档豪宅项目)
为什么选择我?本人对市场项目很熟悉,可以更加专业帮您找到适合的单位,节省你看房所需花的时间,可以带您看全岛各地的项目,只选适合您的好项目.
真诚待人,通晓中英文双语,善于沟通,熟悉新加坡房地产市场。
协助您办理银行贷款(外国人可贷款),房屋推荐,律师咨询等,值得客户信赖的房屋经纪人。
总以专业的眼光推荐适合客户需求的房屋项目,始终客户优先.
欢迎需要买房或者卖房的朋友添加我的微信号(扫描以下二维码)
微信号:zhangqiong046456
电话:65-93397258

【相关阅读】
一个价值100万新的问题 | 2020年新加坡房价是涨是跌?新加坡贷款利率和新币汇率双双下跌,一大波人出手了!疫情期间,新加坡房价是会上涨还是下跌呢?
第一步长按扫码关注椰子

第二步在后台输入关键字在狮城椰子公众号后台回复关键字 病例获得目前全部确诊病患详情回复关键字 感染群地址汇总获得目前全岛感染群地址地图详情

移民留学工作新加坡病例教育肺炎洗手液口罩白卡护照遛娃



在看的你一定很好看!
评论