新加坡贷款利率和新币汇率双双下跌,一大波人出手了
最近汇率和贷款利率
双双暴跌!!!
这种百年难遇的
买房的好机会来了


最近一段时间新币对人民币
已然跌破了5
也就是说
同样的人民币
可以换更多的新币!

来源:xe.com
为啥会跌?新加坡金融管理局是调整新加坡汇率的重要机构,新加坡币大多数时候是和美元挂钩的货币,所以自然属于强势稳定货币。
当遇到金融危机、疫情等原因引发新加坡经济衰退的情况下,金融管理局会选择让新币一定幅度的贬值,以缓解经济危机影响,带动经济复苏。

从上图可以看出,2019年下半年人民币换新币汇率5.1-5.2,现在的人民币换新币汇率汇率到达4.8-4.94,同样的人民币现在可以换到更多新币,从而降低您买房的成本,所以您说现在是不是机会呢?
另外而美国联邦储备局
数次降息导致贷款利率下滑
新加坡银行的SIBOR
同行拆借利率降低
3月3号到17号降幅高达39.2%


打个比方
以100万新币贷款数目来计算
3月3号到3月17号时间段分析
贷款利息从1.807%跌到1.17%
相当于银行贷款利息打折了
我们来做过贷款利息演示
假如贷款30年
可以节省利息高达新币
$109,927

如果贷款本金数目
从100万增加到300万
贷款30年节省的利息自然就更多了

(图源:ERA)
随着贷款利率大幅降低
融资成本减少
预计会有更多买家进场买房
有部分预算够的买家
趁现在银行贷款利息低
借助银行杠杆的力量
考虑购买面积更大的房子

(图源:propseller)
如从三卧室升级到四卧室
可以是卖掉现有房子
升级到更大房子
或者从组屋升级到公寓等等
所以您说现在是不是机会呢?
这里有个特别适合
升级买家的项目介绍给您
- 锦泰门第 -

中文名“锦泰门第”,锦泰同金文泰的谐音,门第就会联想到书香门第的意思,符合金文泰是新加坡教育重镇定位。
【地段超好】地处金文泰,西部最成熟住宅市镇区,距离地铁站约600米,步行到地铁站约8分钟!
【超大型公寓】占地面积多达约58867平方米,属于超大型公寓小区,总共1468个单位,包括1450个公寓住宅、12个联排别墅、6个独栋别墅,户型有1卧室到5卧室供您选择,还有顶楼复式,1房最小面积42平方米到5房最大面积184平方米(不包括顶楼复式)
【预计交房时间】2023年第三季度

来看看视频介绍吧!
直播看沙盘!
01 PART 周围商场林立,生活极为便利 地铁站有金文泰广场Clementi Mall、金满地、321 Clementi。 多一站地铁就可以到达裕廊东,这里简直是西部的“乌节路”。大型商场有IMM Mall、Westgate、JEM、JCUBE、Bigbox等,让您出门购物方便、逛超市买生活必需品、银行办事、外出就餐有很多选择。

02 PART 教育资源丰富,名副其实的学区房 众所周知,金文泰是属于新加坡教育重镇,著名的南华小学Nan Hua Primary School (9所GEP天才教育计划小学之一,还有中文特选SAP小学) 就在公寓隔壁,所以锦泰门第项目为妥妥的学区房,金文泰教育资源丰富,这是为什么很多家长喜欢买金文泰一带房子的原因之一。
还有培童小学(PeiTong Primary School)、启发小学(Qifa Primary School)、锦文小学(Clemnti Primary School)等。中学这块有国立大学附属数理中学、南华中学、金文泰中学、英华自主中学Anglo-ChineseSchool (Independent) 等。

在国际大学排名很高的新加坡国立大学NUS就在金文泰一带,还有国际上排名很高的南洋理工大学NTU,新跃大学SIM,新加坡理工学院,义安理工学院。

国际学校有UWCSEA世界联合学院新加坡Dover校区,据说该校是新加坡排名第一的国际学校,UWC是一所世界一流的国际学校,毕业生为国际上众多名牌大学所青睐,还有Anglo Chinese国际学校。 小学、中学、理工学院、大学、国际学校全部都有,简直是一条龙服务,全方位满足您小孩教育方面的需求。

03 PART 裕廊商业区和创新区,区域转型中 裕廊商业区转型中,作为新加坡第二个CBD中央商业区,裕廊湖畔公园预计2019年分阶段完成,新的国家科学馆预计2020年中完工,还有新开发旅游项目预计2026之前完工。

2016年财政预算案中政府计划在南洋理工大学NTU附近的登加一带打造全新的裕廊创新区,这个园区将为先进位造业、机器人、城市方案、洁净科技和智慧物流等产业提供发展空间,裕廊创新区将成为超过10万人“居住、学习、工作、玩乐和创造”的聚集地,南大校园将化为创新区的一部分。 项目东边的纬壹科技城(靠近One North MRT )的Biopolis和Fushionplois办公楼,包括科技、生物制药研发、电信和媒体等公司,各大研究机构和跨国公司在这里,还有SciencePark科技园区、大学城、新加坡国大医院等,在这里上班主要是高收入专业人士为主,有买房和租房方面的需求。

04 PART 首个主打“共同生活空间”概念的私宅项目 公寓提供多达60种公寓配套设施,包括一个大型独家海滩度假村风格约100米游泳池、3个50米长标准泳池、儿童玩耍泳池、2个网球场、5个会所、烧烤区、健身房、水下健身器材、阅读主题草坪、野餐主题草坪、眺望星星主题草坪,各种不同主题的花园如雨林花园、社区花园、反射花园、多用途娱乐与游戏室、主题游乐场和洗衣间。

除了标准的公寓配套设施外,锦泰门第是新加坡首个主打“共同生活空间”(Co-livingSpace)概念的私宅项目,住宅住户将共享厨房、用餐住所和洗衣间等设施,多达约37160平方米的占地面积用来打造公寓配套设施、小区绿化等。


我通常和客户说买公寓不止买房子本身,还要看配套设施是否足够完善,等您以后打算出租或者出售时,公寓配套设施扮演重要的角色。


05 PART 配套智能家居系统 采用智能家居系统,装有智能控制器,备有摄像功能和声控系统。包括一个智能电子锁,一个可控灯光、空调控制、一个智能语音助手、智能插座等。

当您在外面时也可通过手机APP知道家里的情况,当您在外面时,可以通过手机遥控打开或者关闭关空调、调整空调温度;可以通过手机应用程序预定公寓设施、报读培训课程、生活服务、访客登记、智能解锁、车牌识别系统等。

让每位业主享受现代科技感十足的智能家居生活,享受现代科技给生活带来的便利。 06 PART 公样板房图片





07 PART 户型图介绍和参考指导价 【附注】由于户型太多,只会介绍几种常见户型,有兴趣了解其他户型可以微信问我 1+书房,42平方米,适合单身、情侣和退休人士,价格83.5万新币起(数量有限)

2卧室+书房,面积64平方米,价格105.6万起
2卧室,面积67平方米,大主卧加次卧房间放双人床,价格111.9万新币起

3卧室,面积77平方米,大主卧加次卧房间放双人床,带封闭式厨房,价格133.1万新币起

3卧室,面积82平方米,大主卧加次卧房间放双人床,带封闭式厨房,价格146.8万新币起(高楼)
3卧室,面积97平方米,大客厅加大主卧,带保姆房,价格164.8万新币起

3卧室,面积100平方米,大客厅加大主卧,带保姆房,还有115平方米户型(带私人电梯),价格171.4万起
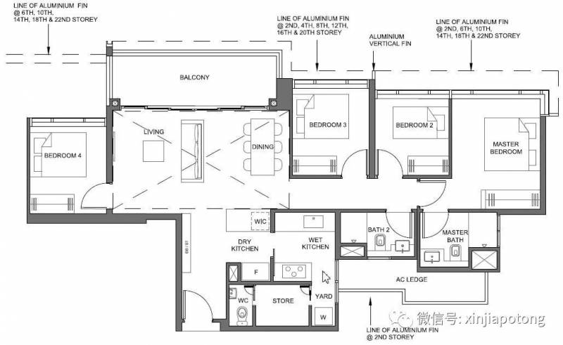
4卧室,面积为115平方米,大主卧加长型大客厅设计,厨房分干湿两区,带保姆房。还有带私人电梯的四卧室136-139平方米,价格197.8万新币起

4卧室,面积为120平方米,大主卧加长型大客厅设计,厨房分干湿两区,带保姆房。还有带私人电梯的四卧室136-139平方米,价格201.2万新币起
豪华5卧室,面积为159平方米,私人电梯直接入户,厨房分干湿两区,大厨房加大客厅,价格261.8新币万起,还有联排别墅这里不介绍了

评论