萝卜点评 | 新加坡市区新公寓火爆开盘,一个周末卖出70%单位
好房子~

二月的新加坡楼市杀出了一匹黑马。 位于武吉士(Bugis)繁华商业区中心的公寓新盘The M,以优越的地点、新颖的设计和合理的价位,在预售阶段就引发了大量的市场关注! 开盘当天,超过2000位潜在买家参观示范展厅。 一个周末成交了70%的单位。

销售非常强劲。下图标红色的都是已售单位。

开盘取得这么亮眼的销售成绩,跟The M楼盘自身的优越条件是分不开的。 楼盘地址距离武吉士地铁站仅230米。

热闹的白沙浮商场(Bugis Junction),连城街(liang Seah Street)美食,都在家门口,下楼就到。

the M楼盘的南面,是新加坡CBD区域。 新达城(Suntec City)距离仅350米。政府大厦地铁站(City Hall)仅仅8分钟步行距离。

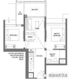
The M的发展商:永泰控股(Wing Tai),是新加坡本地上市公司,具有丰富的本地中高端楼盘开发经验。 The M楼盘的户型以一卧两卧为主,大多数单位面积在800平方尺以下。住户群以‘千禧年代’的年轻家庭为主。

户型方面,the M精心设计了家庭居住/办公的可调节模式。 必要时,可以把住家空间迅速转化为工作空间。比如说——可移动的衣橱。

还有——可拉伸的餐桌。

小区内的公寓设施设计,也包括了独特的共享工作空间 (Co-work Space),以及大量完备的健身设施。

拥有99年地契的The M公寓,占地7462平米。 整体预计兴建三栋20层高楼以及一栋6层小高层建筑,总共522个高级公寓单位,户型从一卧到三卧不等。 楼盘预计于2024年建成完工。




每个公寓单位,都会配备先进的智能家居设备,包括面部识别系统,智能社区系统等。

The M开盘周末销售火爆,最小的studio户型已经卖完了。一卧户型还剩高楼最后2间。 下图的一室一厅+书房单位,中低楼单位全卖完了,15楼以上还有少量单位待售。 面积49平米(527平方尺),15楼定价142万3千新币。

下图的两室一厅一卫户型,面积55平米(592平方尺)。15楼单位定价158万2千新币。

除了文章介绍的一卧+书房和两卧户型外,还有少量两卧+书房户型,以及三卧双钥匙户型待售。 如果想了解更多the M楼盘的相关信息,可以微信联系我,进一步询问细节。 感谢阅读本期的萝卜点评文章。

评论