新加坡的养老机构和养老社区
本文笔者Skipperego是一位在北京-新加坡两地生活的半职妈妈,适逢老师组织孩子们一起去探访周边社区的养老院,笔者作为志愿者家长得以同行。

(为了保护养老院客户隐私,不可以自行拍照,后文部分图片来自网络)和印象中的养老院不同,这所养老院是日托形式。

早上有班车将老人接至中心,白天可以得到照料,晚上再由班车送回家中。

在照顾老人身体状况的同时,这里每天都有丰富的活动帮助老人保护和恢复身体功能。

与同龄人、志愿者和孩子们进行互动,让他们获得归属感。

01
老龄人口快速增加
和许多发达国家一样,新加坡同样正经历著迅速老龄化,预计到2030年,新加坡65岁以上人口将翻番,超过100万,几乎占总人口的四分之一。

2008年和2018年新加坡人口年龄结构对比
为此,政府对养老机构也有所规划,目前有日托中心、康复中心和全天养老院等多种公立或私立机构提供服务。从2011年到2018年,日托中心容量已经增加了一倍多,从5900个增加到13000个,养老院床位1.49万张。

但服务容量仍然不足,普通日托中心的平均等待时间约为20天,失智老人护理中心的平均等待时间约为35天。MOH(卫生部)期望到2020年,日托中心容量达到6200人,家庭护理容量达到1万人,全天看护养老院床位达到1.7万,但这对于未来急剧增长的老年人口来说显得有些杯水车薪。

02
丰富养老机构服务
1.日托中心(Daycare centre)

服务对象:身体健康,具有活动能力的老年人。
服务内容:满足基本的护理需求,如日常生活的支持,营养管理,伤口管理,药物管理,并进行运动,艺术,游戏,音乐、节庆等活动。
费用:不同中心的差别很大,部分由AIC(卫生部综合护理署)运营的是免费的,其他私立活动中心每月价格大多在250新币-1200新币之间(1新加坡元=5.1843人民币)。
2.医疗康复中心(Healthcare centres )

服务对象:需要一定医疗护理的老人
服务内容:很多老人或多或少都有一些健康问题,他们不需要多密切的治疗,更多的是一些康复护理活动,这里就为患病或行动不便的老人提供医疗护理和照料。尽可能保护他们的身体功能,延缓因衰老而导致的病情恶化,最大限度地提高活动能力和恢复独立生活的能力。此外,还有专门的失智老人照料中心,可以帮助他们通过认知训练、物理治疗和社交活动,改善健康状况和生活质量。
费用:按疗程付费,一期疗程6新币-160新币(不含补助金)。政府为这些中心提供一定费用补助。
3.全天看护养老院(Nursing homes)

服务对象:行动不便、需要密切看护的老人
服务内容:提供7×24小时的看顾照料,目前全国大约有70家,提供全方位的护理和各种有益身心的活动
费用:每月1200新币-3500新币。在MOH运营的公立养老院和Medifund认可的私人养老院,可以用政府对住宿服务的补贴来支付费用。
4.居家养老(Live-in helper or nurse)

相对健康的老人可以请佣人到家中照料,他们经过一定培训,主要负责家务、饮食、陪伴外出等。如果老人需要更多照顾,还可以请专业护士或护理人员来到家里,但与佣人相比工作内容更倾向于辅助老人进行治疗。可以选择是否住家。
费用:600-3500新币/月,政府有相应的基金和补贴可以帮助支付。
03
养老方式发生转变
根据卫生部的数据,2017年底,大约有14000人选择居家养老或日间照料中心养老,比2016年多了2000人。全天看护养老院的人数则一直稳定在1万人左右。越来越多的人倾向于居家养老或是日托养老的方式。
但与全天养老院不同,日托和家庭护理没有统一认证的执照,管理的缺位势必将会影响护理水平。
未来政府还将增加夜间暂托护理的选择,包括在11间提供周末护理的养老机构,以及40多间提供短期(不超过一个月)过夜服务的志愿福利机构和私人养老机构。
04
探索开发养老社区
尽管居家养老成为更多人的选择,但居家养老成本却高于日托中心和养老院。Lien Foundation的一项研究发现,在不使用任何补贴的情况下,在家照顾一位严重残疾老人可达3100新币/月,而包括交通费用在内的日托服务的全部费用只有2500新币/月,全天养老院平均费用也只有2400新币/月。
因而,政府也在探索更好的居家养老方式。市区重建局曾经拨出一块地,招标兴建一个私人运营的退休村,但市场反应冷淡。
于是,住房和发展局(HDB)在2013年提出了养老社区项目,后由国家发展局(Ministry of National Development)于2014年10月正式启动了Kampung Admiralty的建设,2017年5月竣工,是新加坡建成的第一个养老社区。

将老年人住宅与医疗、餐饮、零售、服务设施相结合。旨在加强住区老年人之间、代际之间的交流联系,让老年人在此快乐、积极、健康地生活,以积极的方式来应对孤独、疾病、抑郁和自我中心等行为。

不同于私人开发运营的退休社区,这里由政府主导,由住房和发展局(HDB)与卫生部(MOH)、义顺健康园(YHC)、国家环境局(NEA)、国家公园管理局(NParks)、土地运输管理局(LTA)和幼儿发展机构(ECDA)共同开发。

委托WOHA进行设计,在2018年在阿姆斯特丹举行的世界建筑节(World Architecture Festival)上被评为年度世界建筑。

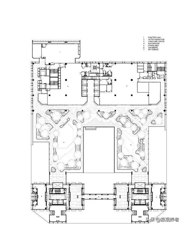
坐落在海军部地铁站旁一个限高45米,面积0.9公顷的地块,共11层的建筑综合体,最大限度的利用土地资源,打造了一个功能完备的“垂直村庄”。

采用三明治形式,下层为社区广场,中层为医疗中心,上层是带有社区公园的老年人住宅,为社区内各年龄段人群提供了各种便利设施和社区空间。

包括104间老年人公寓、一个医疗中心、一个整合了幼儿园、托老中心和零售餐饮的乐龄中心,以及一个小贩中心。 小贩中心可容纳900人用餐,大约40余个摊位,菜式丰富健康,每个摊位至少提供两种不足3新币的菜品。

总建筑面积53066.49平方米,总楼面面积32331.6平方米,容积率3.6,居住面积10030.39平方米,居住容积率1.12,绿色容积率1.25,配有2层停车场,252个车位,12个摩托车车位和364个自行车车位。

每间公寓面积大约38-60平方米,均采用无障碍设计,方便轮椅使用,还在细节上充分照顾老年人的生活,选用更安全的弹性乙烯地板,以更易清洁的电磁炉代替明火炉,可伸缩的晾衣架更省力。每间公寓的紧急警报系统可随时向社区乐龄中心求助。

乐龄中心可以在必要时帮助老年人处理家务或个人卫生,提供一站式服务,还将幼儿园与老人活动中心设计在一起,鼓励老人和孩子互动,未来还将以此为范本在其他地区继续建设9间乐龄中心。

医疗中心共两层,提供专科门诊咨询、内窥镜检查和日间手术程序,未来还将逐步增加外科、糖尿病等诊疗项目,让老年人足不出户即可获得医疗服务。

社区充分考虑人与自然的亲近感,处处绿植覆蓋,绿化面积甚至比占地面积还大。建筑内部尽可能保留自然光线和自然通风,增加窗户,使不便行动的老人也感受室外的绿色。

社区公园地势高,面积大,设有很多长椅,鼓励老年人走出家门,在此锻炼、聚会、聊天,还有屋顶农场可供居民享受种植和收获的乐趣。

采用环保设计,社区的雨水花园和雨水管理系统使雨水经过处理循环利用,用于景观的自动灌溉,每年节省约410万升的自来水。自动废物收集系统,利用真空管道网络收集生活废物进行处置,更有效率,更清洁,更环保,更卫生。太阳能电池板利用太阳能为两个住宅区的公共服务供电。

但是老年社区并不只是完善的硬件设施,还有社区精神的建立。社区内各种方便的通道和休息站让老人更愿意走出家门,健身角和儿童游乐场都是老人们交流活动的中心。

社区广场是一个真正意义的公共场所,上方有屋顶遮挡,地面采用了渗透性良好的材料,完全不会受天气影响。作为社区客厅,定期举办各类代际交流活动,包括户外活动、音乐和艺术活动、电影、嘉年华等,平均每月至少4场活动,鼓励老年人之间互相关心照顾,鼓励孩子、年轻人和老年人相聚在一起,紧密融洽的代际互动使社区充满活力。

104套公寓中有103套在2014年被预定,大多是30年租约,其中44套是根据“优先配屋计划”及“高级配屋计划”预定。这些计划优先照顾希望在熟悉环境中安度晚年的老人,或希望住在已婚子女或父母附近的老人。大约有60%的居民来自周边社区。

新加坡式养老在于创造健康城
融合各年龄阶层人士的宜居城市
把健康生活和医养从小带进人们意识里
这种设计对中国的养老院设计
有非常巨大的借鉴意义
文章来源公号:kidslanding
作者:Skipperego
评论