Artra | 红山地铁站旁备受青睐的高尚公寓, 混合型商住一体,学区房
点击上方蓝字,记得关注我们!

Artra 是由香港上市公司远东发展(Far East Consortium International Limited)和新世界发展有限公司(New World Development Company Limited)联合开发的新公寓。它坐落于新加坡第3邮区(紧邻新加坡乌节路所在的第9邮区)的红山。项目即位于红山地铁站旁。红山凭借着其优越的地理位置,舒适的居住环境以及周边相对成熟的配套设施,一直倍受买家及投资者的青睐。开车前往中央商业区以及乌节路购物街都仅需要十分钟。Artra是一个混合型的发展项目,拥有16间零售餐饮店,超过1000平方米的NTUC Finest,以及500平方米的托儿所。这意味着居民可以享受自家楼下就有零售店的便利。准现房,很快即可入住。
投资自住两相宜
十个理由告诉您为什么选择Artra!
1) 地段优越:Artra与红山地铁站无缝连接,红山地铁站位于东西地铁线上,东直达新加坡樟宜国际机场,西连接裕廊湖发展区,离新加坡中央商业中心莱佛士和金融中心滨海湾只有四站地铁之遥。到购物天堂乌节路和商业中心都是15分钟之内。
2) 周边环境:除了Artra,周边都是优质公寓,离使馆区也很近,保证了良好的环境素质。
3) 生活便利:除了自带的托儿所,商场,红山处于众所周知的成熟区。
4) 投资自住两相宜:户型选择多样化,既适合自住也是个投资的好地方。
5) 高端发展商:发展商以发展高端酒店与房产为主,保证了质量与舒适。
6) 稀有和更强的抗压力:即使新加坡每个市镇都有地铁,大部分地铁站附近也有公寓,可是真正做到无缝连接的还是不多。而商住两用的就更少了,数据显示此类楼比其它的楼有更高更稳定的租金收入。
7) 设计用心:发展商注重风水和隐私,所有的主人房都有走入式衣橱。
8) 无需担心SSD:预计交楼为最快2020,所以您完全不必担心被SSD(卖家印花税)所绑架。
9) 价格非常“惊喜”:最后,您最关心也是最大的惊喜所在了,当周边价格都是$1700-$1800psft 以上,而Artra指导价仅仅为$1530psft 起。
10)传统情怀:相信不少人知道,新加坡是一个移民的国家,最初的华人大都聚集在丹戎八葛,牛车水,中巴鲁,红山一带,随着人口的增多,新加坡也渐渐地发展为一个更大的更多居住市镇的地方,可是,红山这一带始终依然是一个情怀所在地,是本地人最喜爱的地方之一,同时也是各位国际旅居者和新移民最爱的地方之一,是一个既有人文又有生活气息的地方。就在地铁站对面的红山市场,也是常常能捕获新加坡最受爱戴的总理李显龙先生的地方。
项目资料
地址:10 Alexandra View(亚历山大景10号)
占地面积:约 90,400 平方尺
开发商:远东发展(Far East Consortium International)、新世界发展有限公司(New World Development Company Limited)
单位数量:400个私宅单位、15个商铺 、1间超市和1间托儿所
楼盘描述:1栋44层楼
户型:2卧室+书房,3卧室 ,3卧室+书房,3卧室+书房+私人电梯,5卧室+书房+私人电梯
公寓设施:游泳池、网球场、儿童游乐设施
公寓位置
地铁站
红山地铁站(0.05公里)
中峇鲁地铁站(1.28公里)
女皇镇地铁站(1.28公里)
乌节林荫道地铁站(1.57公里)(2021年建成)


楼下即直达红山地铁站(徒步1分钟)
驾车
亚逸拉惹高速公路(AYE)
中央高速公路(CTE)
5分钟车程到达东陵购物中心
5分钟车程到达宜家
7分钟车程到达爱雍.乌节
8分钟车程到达世界城
9分钟车程到达狮城大厦
11分钟车程到达怡丰城
12分钟车程到达莱佛士城
15分钟车程到达滨海湾
商场
中巴鲁购物中心(1.1公里)
华丽岭商场(1.2公里)
亚历山大宜家(1.3公里)
艾格坊购物广场(1.3公里)
亚历山大中心(1.4公里)
女皇道购物中心(1.6公里)
世界城(1.7公里)
教育机构
小学
颜永成小学(0.52公里)
亚丽山大小学(0.83公里)
女皇镇小学(1.16公里)
彰德小学(1.26公里)
圣婴女校(客乐)
布兰雅坡小学
拉丁马士小学
立化小学
中学
克信女中(0.37公里)
女皇道中学(0.53公里)
红山中学(0.62公里)
达善中学(0.65公里)
颜永成中学(0.81公里)
圣玛格烈中学
初级学院
英华初级学院(3.8公里)
大学
新加坡PSB学院(1.0公里)
国际学校
ISS国际学校(1.63公里)
环球印度国际学校(1.66公里)
查茨沃斯国际学校
东陵信托学校
多佛苑国际学校
莱士国际学校
东南亚联合国国际学校
公寓规划图




Artra 的塔楼建筑风格硬朗,线条分明。项目共有44层楼,包括两层地下停车场; 1 – 2楼包括1间托儿所,1间大型超市(NTUC Finest)和16间由发展商统一管理出租的店铺; 3 – 4楼为公寓设施; 5楼以上为公寓住宅,总共38层居住楼加上24楼整层为空中花园和顶楼空中花园,其中还有四个较小型的空中露台供休闲和聚会用途。
ARTRA拥有齐全的公寓设施,其中包括:三个大小不同的游泳池和戏水池,按摩浴缸,茶园,一个网球场,齐全的儿童游乐设施,以及宽敞的公共区域,可以满足住户各种各样的休闲娱乐需求。




24层:健身房

9层,17层,29层及37层:公共休闲区域

屋顶:空中花园
公寓单位
户型
面积
(平方尺)
单位数
2卧室+书房
786 - 829
190
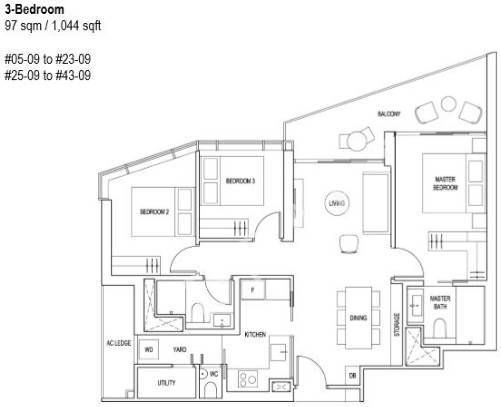
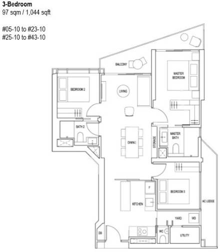
3卧室
1,044 - 1,119
108
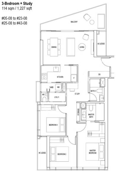
3卧室 +书房
1,227
64
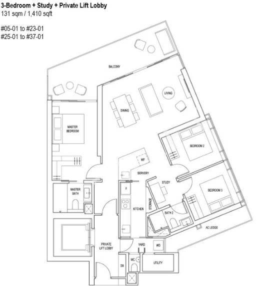
3卧室 +书房+私人电梯
1,410
32
5卧室 +书房+私人电梯
2,583
6




9种户型供您选择
宽敞居家,每个面积都全方位使用,没有虚浮角落
设计独特的单位
所有主人房都有步入式衣帽间
观景窗,观景台
平面图
2卧室+书房


3卧室



3卧室 +书房


3卧室 +书房+私人电梯

5卧室 +书房+私人电梯

公寓价格
户型
(2卧+
书房)
面积
(平方米/
平方尺)
价格
(新元)
#38-04
(A1)
73平方米/
786平方尺
$1,663,000
#39-04
(A1)
73平方米/
786平方尺
$1,663,000
#40-04
(A1)
73平方米/
786平方尺
$1,671,700
#43-06
(A2)
77平方米/
829平方尺
$1,768,100
户型
(3卧室)
面积
(平方米/
平方尺)
价格
(新元)
#38-09
(B1)
97
平方米/
1044
平方尺
$2,142,400
#40-09
(B1)
97
平方米/
1044
平方尺
$2,153,300
#38-10
(B2)
97平方米/
1044平方尺
$2,095,200
#39-10
(B2)
97平方米/
1044平方尺
$2,095,200
#34-11
(B3)
104平方米/
1119平方尺
$2,158,300
#35-11
(B3)
104平方米/
1119平方尺
$2,168,800
#36-11
(B3)
104平方米/
1119平方尺
$2,179,500
户型
(5卧+家庭+私人电梯)
面积
(平方米/
平方尺)
价格
(新元)
#40-01
(E)
240
平方米/
2583
平方尺
$4,700,000
#41-01
(E)
240平方米/
2583平方尺
$4,731,500
*5卧仅剩最后两套

金牌经纪人
林胤铭( Adrian Lim )
最大的房地产公司区域董事
楼市观察者,分析者,投资者
纵横新加坡地产界15年的老司机一枚
关于我
- 2006年以一等荣誉学位毕业于新加坡南洋理工大学
- 2008年加入老字号ERA房地产公司,同年拿到最佳新人奖
- 2013年加入博纳房地产公司,同年拿到最佳新人奖
- 荣获百万新元俱乐部成员
- 自2008年加入房地产公司, 至今连续10年拿最佳销售王奖
- 持续每年在有7600个销售人员的博纳地产保持top50的名次
- 2018年加入博纳产业唯一授权的中国精英组
在新加坡土生土长的我,了解本地风土民情,掌握政府政策变化史,经济发展策略,自新加坡成立后的房地产变迁史。精确,敏锐,专业地为您量身打造并挑选最佳的产业。为您在新加坡的房产投资保驾护航!!!
为新移民承诺一条龙免费服务,包括接送机,学校挑选及报名,公司注册,开设银行户口,兑换外币,房屋装修,保险医疗…… 亲力亲为解决您买房前后的一切后顾之忧!
了解更多买房信息,请关注我联系电话:+65 91015050

微信:a91015050
新加坡房产投资顾问

声明:文章图文均来源于网络,转载出于传播更多行业资讯之目的,不代表本公众号观点,如涉及侵权,请留言联系我方删除。
评论