【房产资讯】靠近(UWC学校)等知名学校的新楼盘
2019年很多家长问我有没有在UWC学校附近的新楼盘,因为UWC学校在新加坡是很有知名度的一所国际学校,得到很多高净值人群的青睐,有的家长希望买个离学校近一点的住宅,以下这个楼盘是新加坡高端知名开发商CDL的项目之一。以下做一个简单详细介绍,具体细节还是要以实地考察为准。

中文版

淡滨尼最新的优质住宅项目。
荟锦嘉园,一座无与伦比的建筑艺术。它现代感十足,独树一帜的建筑风格,
配上壮丽的玻璃幕墙外观,在众多豪华公寓中更为引人注目。

实景外观图
项目坐落于淡滨尼
第86街,邻近设施发达的淡滨尼区域中心和巴西立市镇中心。
迎宾楼大堂
迎宾楼大堂设有独特的雕塑品,情切友善的礼宾服务员
迎接每位住户和访客的到来。
荟锦嘉园会所
荟锦嘉园会所设有厨房设施,为您的派对和聚会烹调顶级
美食。主办活动将易如反掌。
中央公园
在公寓的中央公园散步,漫步在绿意青葱的美景和包揽
无边际泳池的壮丽。
水上世界
尽情陶醉在水池中,享受无比清爽的宁静。100米无边际
泳池和50米泳池就是您的选择。
水疗亭
在水疗亭放松身心,享受从头到脚的舒适。
聚会亭
在聚会亭招待家人朋友,和他们一起聚餐畅饮,享用自家烹
调的铁板烧和BBQ烧烤。
梦幻花园
公寓的社区花园可用来种植可烹调的香料与植物。
健身区
下沉式网球场、慢跑道和健身站,满足您的健身需求。
儿童探险乐园
让孩子在探险游乐园和泳池让孩子尽情发挥想像力,遨游
在奇趣探险世界之中。
宠物庭院
专为您的宠物而设,这里拥有让宠物自由活动的空间。

各大名校如培青学校、圣希尔达
小学和圣希尔达中学、淡马锡理工学院和东南亚联合世界学院(东部校园)也在周围。商业园区如淡滨尼工业区 和 樟宜
商业园也都在附近。

每一个单位都备有精美的高品质装潢,如 Haiku吊 扇 和 家 居 装 饰 ,让 您 享 受 完 美 的 时 尚 生 活 。主卧室设有配饰橱柜,为您提供更多的储藏空间。单位内也搭配了可遮盖百叶窗和窗帘装置的窗帘盒,为您打造优雅的绚丽家居。
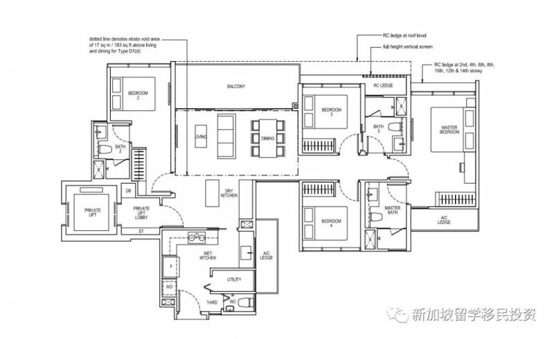
4卧室、4卧室“双钥匙”(Dual Key)和5卧室“双钥匙”(Dual Key)+ 书房的公寓单位都设有专属电梯。公寓单位的厨房设施齐全,设有 Teka 抽油烟机、炉 灶 、烤 箱 、冰 箱 、洗 衣 机 和 烘 干 机 。此 外4卧室、4卧室“双钥匙”(Dual Key)和 5卧室“双匙”(Dual Key)+ 书房的单位都附加Teka二合一蒸汽烤箱。厨房和卫浴间的配件都来自Grohe和Duravit知名品牌。这就是您梦寐以求的完美之家。所有公寓单位都设有智能家庭系统,包括智能语音 助手,让您无后顾之忧,安心远程监控单位安全。


需要众多资料,请加我微信:jason-liu0065 索取
关于公司
我们公司坚持“以客户为中心”,发挥团队专业优势,提供个性化、多元化的财富管理、资产配置、移民留学解决方案,为客户提供从商业到生活全方位的一站式服务。致力于帮助、陪伴成功人士积累、创造、传承家族财富与精神价值。
看完本篇文章,对各国移民、留学、投资感兴趣的朋友,请关注我们的微信公众号。也欢迎各位朋友前往我们公司咨询移民、留学、投资等事项。
新加坡开户或者注册公司做全球化发展企业:实现企业全球发展,为国际业务提供更多便利
评论