View at Kismis |武吉知马高尚住宅区的全新低密度楼盘,新币S$88万起(二卧室),全岛仅此一家
点击上方蓝字,记得关注我们!
摘要
View at Kismis公寓位于第D21邮区的武吉知马上段(Upper Bukit Timah)。该公寓拥有99年地契,由著名发展商乐斯太平洋控股(Roxy-Pacific Holdings Limited)开发。
View at Kismis公寓将建6栋5层楼高低密度建筑,提供186个私宅单元和2间商铺。
私宅户型包括55套两卧室、75套两卧室+客房、5套三卧室、31套三卧室+客房、1套四卧室和19套五卧室单元,面积介于48-120平方米(517-1292平方尺)。两间店面的面积分别为17和18平方米(183-194平方尺)。
该项目就在The Creek @ Bukit公寓的旁边,对面是吉米斯阁(Kismis Court)公寓。
项目距离滨海市区地铁线(Downtown MRT Line)的美世界地铁站(Beauty World MRT)约800米,步行即可抵达。四周拥有大量休闲娱乐、购物用餐等设施,如美世界购物中心(Beauty World Plaza)、武吉知马购物中心(Bukit Timah Shopping Centre)、美世界中心(Beauty World Centre)和武吉知马购大厦(Bukit Timah Plaza)等。公寓连结多条主干道和高速路如泛岛高速公路(PIE)和武吉知马高速公路(BKE),交通便利。公寓附近教育资源丰富,一公里范围内有幼儿园5所、小学2所,也靠近义安理工学院(Ngee Ann Polytechnic)和新跃社科大学(Singapore University of Social Science),是典型的学区房。该公寓价位合理,升值潜能大,租金回报力高。
这是一栋欧洲风格的公寓,追求完美、激情、古典、精致、细腻和浪漫。
引言
中国唐代诗人杜甫的名诗《茅屋为秋风所破歌》曰,“安得广厦千万间,大庇天下寒士俱欢颜,风雨不动安如山。”此诗道出了居者有其屋的重要性。
新加坡是全球极少数尽全力推动“居者有其屋”租屋政策的国家,基本实现了人人拥屋的计划。是的,新加坡的组屋质量可靠,透气通风,但购买租屋也有一些政策上的限制,如一个家庭只能拥有一套组屋。不少工薪阶层购买租屋后还希望进一步提升住房条件,想购买一套私人公寓。但不少二卧室或以上公寓单元的售价均在新币S$100万以上,可能超出了原本的预算。还有一些外国朋友,特别是来自中国的朋友,也希望可以在新加坡购买一套二卧室或以上的公寓单元,为自己的子女就读新加坡学校,享受新加坡全亚洲数一数二的教育资源做好准备。这部分组屋提升者或外国买家也希望所购买的房产不会太偏僻,应位于市区边缘。
这样的公寓就是位于代表中档公寓的其他中央区(RCR,Rest of Central Region)。位于RCR区的房产位置适中,价格合理,住户方便,因而租金回报率也较高。这样,这类公寓也得到房产投资者的兴趣。然而,要在RCR区用少过新币S$100万购买一套二卧室期房单元,是几乎不可能实现的。因此,这里为您隆重推荐这样的期房,一个低密度的中西部楼盘,View at Kismis公寓。
楼盘精华
坐落在武吉知马高档住宅区;
位于成熟的住宅地段,低密度建筑,充分享受绿色空间;
步行即可到达美世界地铁站(Beauty World MRT);
公寓配备店铺,四周零售、餐饮和生活用品设施丰富;
靠近名校,如培华长老会小学和卫理公会女子学校(小学);
价格合理,有升值潜能;
租金回报潜力高;
著名发展商乐斯太平洋控股(Roxy-Pacific Holdings)开发,有信誉保障;
紧邻铁路走廊和现有自然保护区的新开发项目,享受附近的生活方式和休闲活动。


View at Kismis公寓效果图
位置剖析
View at Kismis公寓位于新加坡第D21邮区的武吉知马上段(Upper Bukit Timah)。武吉知马是新加坡传统意义上的高尚住宅区,是富豪们喜欢聚集的地方,建造了不少的独立式或半独立式洋房以及高档私人公寓。
该项目就在The Creek @ Bukit公寓的旁边,对面是吉米斯阁(Kismis Court)公寓。
项目距离滨海市区地铁线(Downtown MRT Line)的美世界地铁站(Beauty World MRT)约800米,步行即可抵达。乘搭该地铁线可直达市中心地铁站(Downtown MRT)和位于东部的博览地铁转换站(Expo MRT)。附近100米范围内还有公交车站,居民们可乘搭巴士如173路前往新加坡各地。驾车人士可轻松快速连接到泛岛高速公路(PIE)和武吉知马高速公路(BKE),由此通往全岛各地。居民朋友只需15分钟车程就可抵达乌节路商圈,25分钟车程前往中央商业区(CBD)。

View at Kismis公寓位于武吉知马富人区
公寓四周有多家购物、餐饮和休闲设施。步行即可抵达位于美世界地铁站旁的武吉知马中心(Bukit Timah Central)。这个中心有4个购物商场,包括美世界购物中心(Beauty World Plaza)、武吉知马购物中心(Bukit Timah Shopping Centre)、美世界中心(Beauty World Centre)和武吉知马购大厦(Bukit Timah Plaza),可以在这里度过一整个周末,购物、健身、休闲、娱乐、餐饮,一应俱全,商场内还设有超市,提供住户所需的日常用品。著名的武吉知马巴刹与熟食中心(Bukit Timah Market and Food Centre)也在附近,居民们可以在那里购买到新鲜蔬菜、水果和肉食,以及本地美食。

View at Kismis公寓附近的购物中心
教育资源
View at Kismis公寓附近教育资源相当丰富,属地道学区房产。1公里范围内的幼儿园就有5家。小学也许是家长们最为关心的。
在View at Kismis,1公里范围内的小学就有2所,包括武吉知马小学(Bukit Timah Primary School)和培华长老会小学(Pei Hwa Presbyterian Primary School),这2所小学均是新加坡的名校,2公里范围内还有美以美女子小学(Methodist Girls’ Primary School)和克明小学(Keming Primary School)。附近的中学有尤索夫依萨中学(Yusof Ishak Secondary School)和美以美女子中学(Methodist Girls’ Secondary School)。附近的大专学府有义安理工学院(Ngee Ann Polytechnic)和新跃社科大学(Singapore University of Social Science)。义安理工学院是新加坡较有名气的理工学院,而新跃社科大学是新加坡法定的六间公立大学之一,它们均是新加坡政府培养人才的得力学府。
此外,公寓附近还有多家国际学校如博伟教育学院,武吉知马学院(Dimensions International College,Bukit Timah Campus)、伊顿国际幼儿学校,武吉知马上段学院(Etonhouse Pre-School,Upper Bukit Timah)和德国人学校,小学学院(German European School Singapore,Primary School Campus)等。

View at Kismis公寓附近1公里范围内的名校培华小学
公寓乾坤
如果您有幸购买到View at Kismis公寓的一套单元,您将会有怎样的体验呢?首先,您将感受到酒庄山谷的氛围。公寓设计根据现有的地形地貌来创意定位,创造性地分为三个主要层次,从最高点下降到令人印象深刻的低点,并将低层浸入各个层次,模仿山谷的效果,营造俯瞰郁郁葱葱的景观和水流,模仿山谷中的溪流;公寓正门通过颜色调和,给人一种质朴感,旨在将建筑融入周围景观,营造温馨的氛围。

View at Kismis公寓入口处

View at Kismis公寓美景
其次,您将感受到欧洲风格的生活。在阳台引入屏幕不仅可以提供遮挡阳光的屏障,还可以为住宅单元制作室外私人空间。屋顶露台为开发创造了一个风景如画的景观,并提供了一个户外生活方式与壮丽的景观。景观概念汲取了托斯卡纳环境的精髓,精致细腻,融合现代古典建筑,在花园城市中创造华丽生活方式。欧洲风格的生活从口感的质朴色彩中渗透出来,从托斯卡纳环境中汲取重要细节,并非常谨慎地插入,形成一种宁静的存在感,这是山谷和葡萄酒院的代名词。

View at Kismis公寓的泳池

View at Kismis公寓俱乐部一角
第三,您将对公寓的娱乐设施和独特的功能叹为观止。景观甲板上引入了一系列设施,人们可以沉浸在清澈的海水中游泳,甚至可以参加悠闲的活动,如沿着游泳池闲逛,欣赏惊人的景色如山谷中的最高点。对于那些想要在身体和心灵上工作的人来说,宁静的环境健康的良药和保健区,而瑜伽起到调解作用,公寓木板和水的结合,为感官和心灵提供平衡和安静的地方。屋顶露台采用贴心的比例设计,给人一种统一的外观和内部感,您可以在屋顶露台享受餐饮,也可以在这里烧烤。

View at Kismis公寓的烧烤台
公寓的设施设计旨在让您与自然互动,这样的设计有人称之为梦,而这里的居民则认为是他们的特权。公寓拥有超过30个设施,为居民提供永恒的幸福时刻。您可以在一个豪华的50米长的游泳池游泳,远离喧嚣的城市,在修饰路径上漫步,观赏修剪植物的壮丽景色,而孩童则在游乐场或游泳池嬉戏。您也可以在放松身心的平静按摩馆享受,或到让您与大自然融为一体的冥想甲板,让时尚的温文尔雅激发您的白日梦并呵护您的精神。
升值潜能
作为不动产,私宅的升值潜能是买家考虑的因素之一。公寓的升值潜能与公寓本身的设计与建造质量有关,也与公寓的地理位置、出租回报率等有关。
View at Kismis公寓位于富人居住区,周边均为私人住宅,环境安静,而又拥有丰富的便利设施,购买该公寓本身就是一种身份的象征,这也间接提升了该公寓的转售潜能,提高升值潜能。另外,由于位置好,公寓提供高质量的设施,室内设计合理,采用高质量建材,将吸引众多租户,提高租金回报率。
此外,据摩根史坦利(Morgan Stanley)的研究,购买新加坡政府组屋住满5年后出售自己的组屋而有意提升住屋条件者在未来4年(2019-2022)将提升3倍。出现这种趋势的原因之一就是这些提升者从出售组屋中获利,无需额外现金或有足够的余钱购买一套新公寓。而这种趋势对私宅市场的影响之一就是潜在买家增加,私宅价位提升。
总的来说,新加坡的总体房价的稳健上升的,自去年7月新一轮降温措施推出,价位稳定一段时间后,现在又开始回升了。而到了2030年,有不少房产相关机构的分析认为,新加坡的房产价格将翻番,达历史新高。因此,长远来看,购买View at Kismis公寓,升值潜力是有保障的,而租金回报率也将保持相当稳定。
室内设计
View at Kismis公寓由著名发展商乐斯太平洋控股(Roxy-Pacific Holdings Limited)开发。乐斯太平洋控股是一家可追溯至1967年的成熟的物业及酒店业务集团,自2008年起在新交所主板上市。集团主要从事开发和销售亚太地区的住宅、商业物业、酒店和其他投资物业。自2013年以来,集团业务已扩展到新加坡以外的国家,如马来西亚、澳大利亚、泰国、日本和马尔代夫等。
View at Kismis公寓的室内设计灵感来自大自然固体形式之间的孤独感、岩石峭壁、青翠的绿色和半透明的雾气。这些自然景观创造出的大胆的固体形状的幻觉,慢慢消失在背景中的白色层面上,采用调色板唤起坚定不移的形式和自然柔软感之间的平衡。而葡萄园是设计灵感的又一个来源,用来塑造低调的奢侈感,因为葡萄园是自然环境与追求激情的完美结合,是愉悦和微妙愉悦的微妙表达。在宽敞的内部空间内提升您的感官。优雅的布局突出了现代空间,以最精致的方式提供精致的生活,体验时尚精致和现代舒适的缩影。每间豪华公寓均配有进口配件和电器,为奢华生活设定了新标准。

View at Kismis公寓设计灵感的源泉
家居材料的选择灵感则来源于木质材料的纹理与灯光的交错效果以及空间的大小。一切的材料,追求完美,追求效果。如主浴室具有相对较大的空间,因此使用较暗的配色方案来引入灯光,产生更宏伟的感觉,如意大利'Gessi'品牌淋浴套装和水龙头,石英台面与质朴的图案。厨房的设计也令人惊讶不已,宛如一间艺术品,就连冰箱和冰柜也成了艺术装饰,还有那看似不一般的抽油烟机、燃气灶和传统烤箱以及内置LED灯等,尽显奢华。衣柜外观设计为黑色并配以灯光,里面有质朴而明亮的浅橡木纹理;双滑动门,节省空间,便于操作。所有这些,似乎难于言尽,欣赏实体,一饱眼福。

View at Kismis公寓的卫生间


View at Kismis公寓的厨房

View at Kismis公寓的高档衣柜
户型欣赏
View at Kismis公寓的前身是卡斯米景(Kismis View)。Kismis View是一个只有43个单位的小型公寓,于2018年集体出售时由新加坡发展商乐斯太平洋控股(Roxy-Pacific Holdings)旗下的子公司RP Venture和TE Development以新币S$102,750,000元联合夺标。View at Kismis公寓占地约9,321平方米(100,300平方尺),拥有99年地契。
项目将建造6栋5层高低密度建筑,提供186个私宅单元和2间商铺。私宅户型包括55套两卧室、75套两卧室+客房、5套三卧室、31套三卧室+客房、1套四卧室和19套五卧室单元,面积介于48-120平方米(517-1292平方尺)。两间店面的面积分别是17和18平方米(183-194平方尺)。
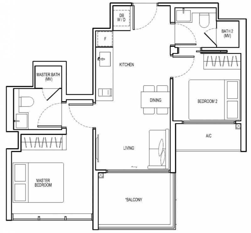
二卧室,套内面积48-56平方米(517-603平方尺),整套售价从新币88万元起。特点是户型方方正正,布局合理,无浪费空间,客厅配备阳台。两个卧室均配备衣柜,均可放置双人床。这样的户型非常适合夫妻情侣享受二人世界,也很适合有个小孩的夫妻,以及专业人士和学生。除了自住,也适合出租给高端专业人士。

View at Kismis公寓的二卧室户型图
二卧室+客房,套内面积62-66平方米(667-710平方尺),整套售价从110万元起。特点也是户型方方正正,布局合理,无浪费空间,客厅配备开放式或全封闭式阳台。两个卧室均配备衣柜,均可放置双人床。客房可放置单人床,也配备一个小型衣柜。这样的户型非常适合有一个孩子的夫妻,或与父母同住的家庭,以及专业人士和学生。除了自住,也适合出租给高端专业人士。

View at Kismis公寓的二卧室+客房户型图
三卧室,套内面积75平方米(807平方尺),整套售价从130万元起。共同特点也是,户型方方正正,所有房间均可放置双人床,配备内置衣柜。厨房相对独立,餐厅与客厅共享空间,客厅配备开放式或全封闭式阳台。这种房型特别适合有2个小孩的夫妻或与父母同住的家庭,以及专业人士和学生,或出租给相关高端专业人士。

View at Kismis公寓的三卧室户型图
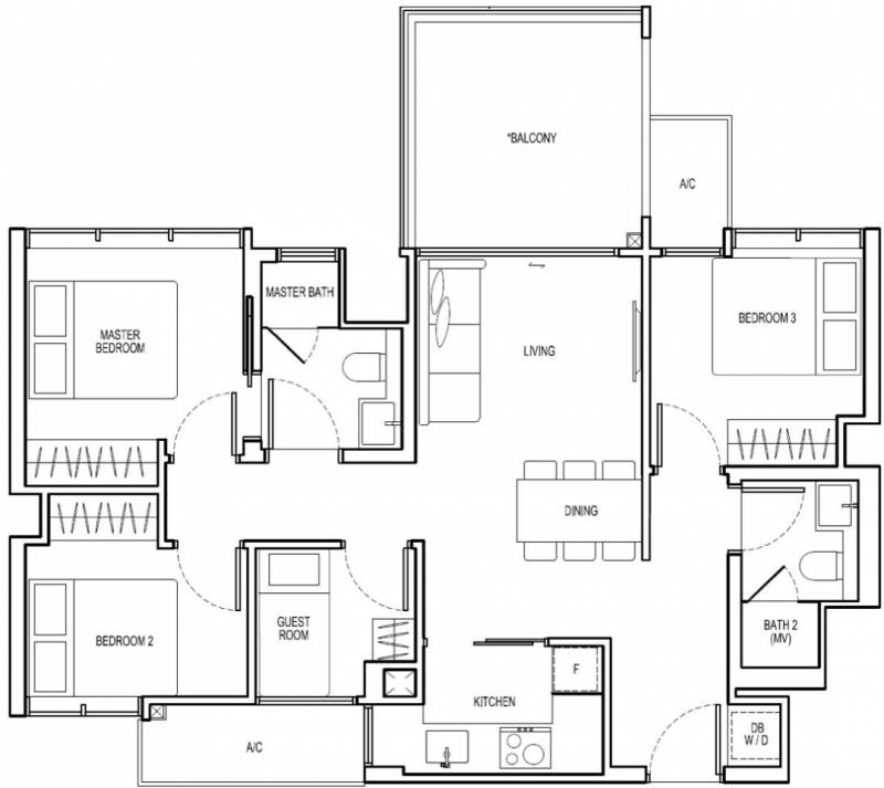
三卧室+客房,套内面积82-83平方米(883-893平方尺),整套售价从142万元起。共同特点也是,户型方方正正,三个卧室均可放置双人床,配备内置衣柜。客房可放置单人床,也配备一个小型衣柜。厨房相对独立,餐厅与客厅共享空间,客厅配备开放式或全封闭式阳台。这种房型特别适合有2个或以上小孩的夫妻或与父母同住的家庭,以及专业人士和学生,或出租给相关高端专业人士。

View at Kismis公寓的三卧室+客房户型图
四卧室,套内面积94平方米(1012平方尺),四卧室只有一套,位于一楼,整套售价从172万元起。四卧室户型方方正正,所有房间均可放置双人床,配备内置衣柜。厨房相对独立,餐厅与客厅共享空间,客厅和其中一间普通房配备一个全封闭式阳台。这种房型特别适合有3个小孩的夫妻,或与父母同住的家庭以及出租给相关高端专业人士。

View at Kismis公寓的四卧室户型图
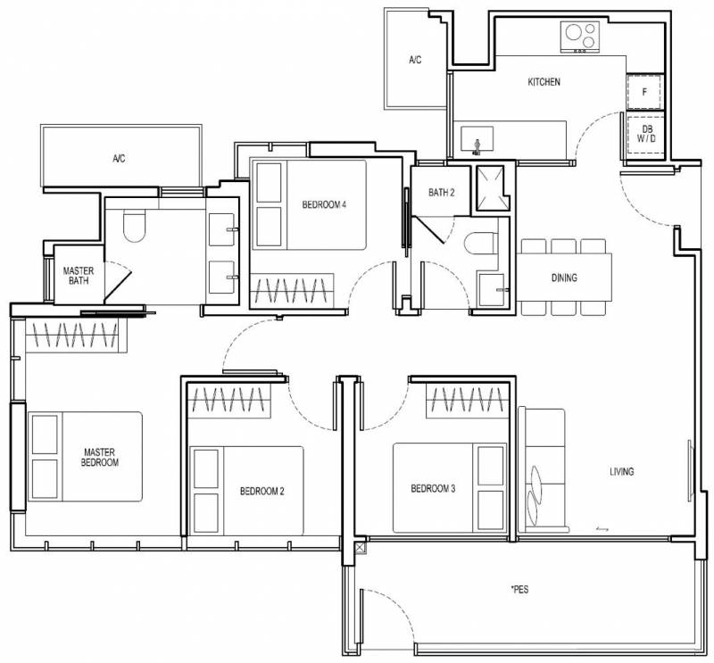
五卧室,套内面积118-120平方米(1,270-1,292平方尺),整套售价从197万元起。五卧室户型方方正正,所有房间均可放置双人床,均配备内置衣柜,其中一间为准主人房,配备室内卫生间。厨房相对独立,还有储藏间及小卫生间。餐厅与客厅共享空间,客厅和其中一间普通房配备开放式或全封闭式阳台。这种房型特别适合有3个或以上小孩的夫妻,或与父母同住的大家庭以及出租给相关高端专业人士。

View at Kismis公寓的五卧室户型图
小结
武吉知马区是新加坡有名的富人居住区,在这个区拥有一套私宅本身就是一种身份的象征。作为一个富庶地带,价位自然不便宜。然而,View at Kismis公寓的推出,让组屋提升者和工薪阶层晋级富人居住区成为可能。
该公寓位于RCR区,距离市区较近,又位于私宅集中区,环境安静,拥有理想的居住环境。
View at Kismis公寓的设计灵感源于大自然的独特景观以及自然环境与追求激情的完美结合,设计讲究色调的协调,灯光的整体效果。家私的挑选灵感则来源于木质材料的纹理与灯光的交错效果以及空间的大小。一切的材料,追求完美,追求效果。欧洲风格的设计汲取了托斯卡纳环境的精髓,精致细腻,融合现代古典建筑,在花园城市中创造华丽生活方式。每套单元均配有进口配件和电器,为奢华生活设定了新标准。
View at Kismis公寓就是那么完美,无可挑剔,永恒发光,爱不释手,外国人可低利息买房贷款,您值得拥有。

金牌经纪人
林胤铭( Adrian Lim )
最大的房地产公司区域董事
楼市观察者,分析者,投资者
纵横新加坡地产界15年的老司机一枚
关于我
- 2006年以一等荣誉学位毕业于新加坡南洋理工大学
- 2008年加入老字号ERA房地产公司,同年拿到最佳新人奖
- 2013年加入博纳房地产公司,同年拿到最佳新人奖
- 荣获百万新元俱乐部成员
- 自2008年加入房地产公司, 至今连续10年拿最佳销售王奖
- 持续每年在有7600个销售人员的博纳地产保持top50的名次
- 2018年加入博纳产业唯一授权的中国精英组
在新加坡土生土长的我,了解本地风土民情,掌握政府政策变化史,经济发展策略,自新加坡成立后的房地产变迁史。精确,敏锐,专业地为您量身打造并挑选最佳的产业。为您在新加坡的房产投资保驾护航!!!
为新移民承诺一条龙免费服务,包括接送机,学校挑选及报名,公司注册,开设银行户口,兑换外币,房屋装修,保险医疗…… 亲力亲为解决您买房前后的一切后顾之忧!
了解更多买房信息,请关注我联系电话:+65 91015050

微信:a91015050
新加坡房产投资顾问

声明:文章图文均来源于网络,转载出于传播更多行业资讯之目的,不代表本公众号观点,如涉及侵权,请留言联系我方删除。
评论